Выполненные проекты
Проект отопления дома в ТСН «Русский лес»
Объект: частный дом из газобетона, общей площадью 200 м.кв., расположенный в ТСН «Русский лес» Истринского района Московской области
Вариант отопления: «Комфортный»
Цена проекта отопления и водоснабжения: 38 926 руб. со скидкой 10%, проект котельной - бесплатно.
Проект котельной, отопления и водоснабжения выполнен: 19.07.2023
Состав проекта котельной, отопления и водоснабжения дома в ТСН «Русский лес»:
1. Пояснительная записка проекта, общие данные по системам отопления и водоснабжения дома 200 м.кв. в ТСН «Русский лес».
2. Тепломеханическая схема котельной с размещением оборудования в отдельном помещении дома из газобетона.
3. Комплект поэтажных чертежей радиаторного отопления дома в ТСН «Русский лес».
4. Комплект чертежей теплого пола на площади 108 м.кв.
5. Комплект чертежей водоснабжения и канализации частного дома из газобетона в ТСН «Русский лес».
6. Типовые схемы системы отопления канализации и водоснабжения дома 200 м.кв.
7. Теплотехнический расчет отопления дома из газобетона.
8. Спецификация материалов и оборудования по котельной, отоплению, канализации и водоснабжению дома в ТСН «Русский лес».
Объем проекта отопления и водоснабжения дома в ТСН «Русский лес»: 41 лист.
Описание проекта отопления, котельной и водоснабжения частного дома 200 м.кв. в ТСН «Русский лес».
Котельная частного дома в ТСН «Русский лес»(проект котельной бесплатно).
o Размещена в отдельном помещении первого этажа дома 200 м.кв.;
o Теплогенераторы - основной настенный газовый котел BAXI ECO Life 1.31F, мощностью 24 кВт, резервный - электрический котел ZOTA MK, мощностью 9 кВт;
o Контуры теплоснабжения котельной – радиаторное отопление дома, теплый пол дома и горячее водоснабжение, для которого предусмотрен накопительный бойлер STOUT, объемом 200 литров;
o Расширительные баки отопления и бойлера Flamco, объемом 25 и 18 литров, соответственно;
o Дымоудаление принудительное, дымоход раздельный, комплект для вертикального прохода через кровлю, диаметр 80 мм;
o Распределительный коллектор - STOUT с насосными группами и гидравлическим разделителем;
o Автоматика котельной – контроллер ZONT Climatic 1.2 со встроенным GSM-модулем.
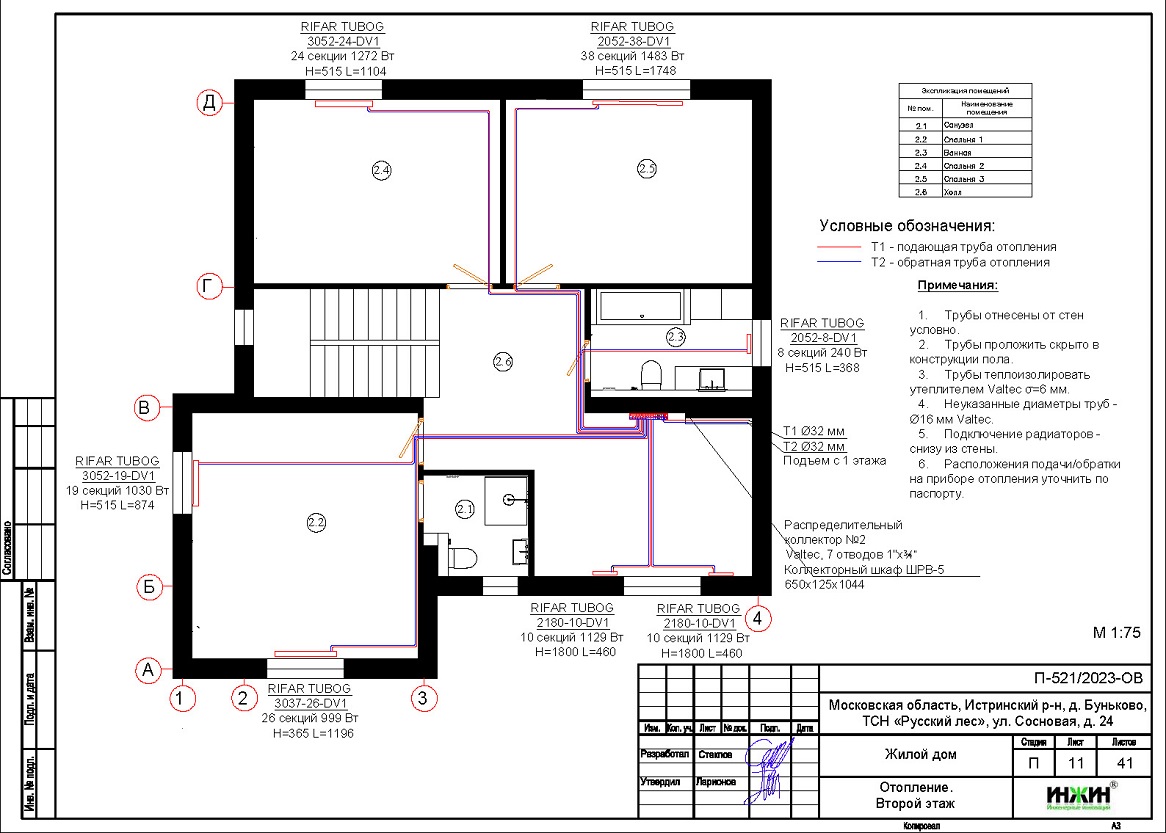
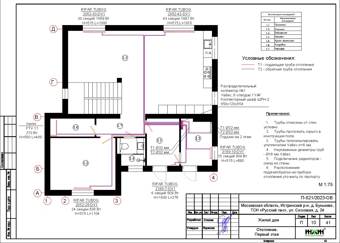
Отопление дома в ТСН «Русский лес» (проект отопления дома).
o Выполнен теплотехнический расчет отопления дома (утеплитель кровли дома - базальтовая вата 200мм) с учетом теплопотерь через ограждающие конструкции при наружной температуре -28°С для Москвы (по СП 131.13330.2012), расчетный расход тепла на отопление дома составил 14,9 кВт, удельные теплопотери 79,1 Вт/м.кв.;
o Подобраны приборы для отопления дома: стальные панельные радиаторы Kermiс нижним подключением;
o Схема радиаторного отопления основного и гостевого дома двухтрубная, коллекторно-лучевая, с принудительной циркуляцией теплоносителя и температурным графиком 80/60°С;
o Трубы отопления из сшитого полиэтилена Valtec;
o Теплоизоляция трубопроводов отопления Valtec, толщиной 6мм;
o Теплоноситель в системе радиаторного отопления дома – вода.
Водяной теплый пол дома в ТСН «Русский лес» (проект теплого пола).
o Водяной теплый пол в доме предусмотрен на площади 108 м.кв., коллекторы теплого пола Valtec на 9 и 2 отводов, всего 11 петель;
o Предусмотрен насосно-смесительный узел для теплоснабжения водяного теплого пола дома в составе насосной группы;
o Трубопроводы теплого пола из сшитого полиэтилена Valtec;
o Регулирование температуры теплого пола - общее, регулятором на смесительной группе.
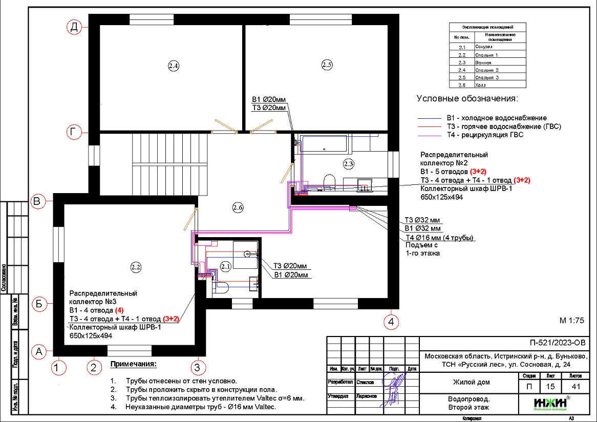
Внутренний водопровод дома в ТСН «Русский лес» (проект водоснабжения).
o Схема внутреннего водоснабжения дома – коллекторно-лучевая с рециркуляцией горячей воды через водяные полотенцесушители, выполнен расчет 31-й точки водоснабжения и полотенцесушителей;
o Трубопроводы системы водоснабжения – из сшитого полиэтилена Valtec;
o Теплоизоляция трубопроводов Valtec, толщиной 6мм.
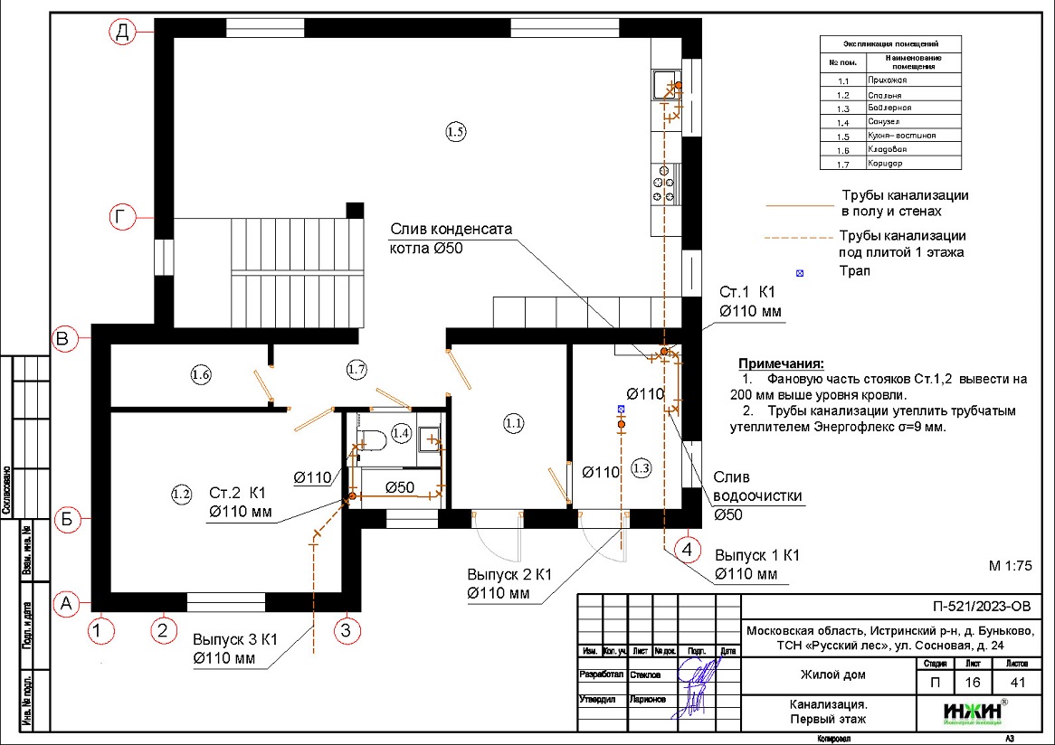
Внутренняя канализация (проект канализации) дома в ТСН «Русский лес».
o Безнапорная, отвод стоков от санитарно-технических приборов предусмотрен в септик;
o Произведен расчет 15-ти точек бытовой канализации, предусмотрено 3 трапа с горизонтальным отводом и "сухим затвором";
o Канализационные трубы Синикон, раструбные, из полипропилена.
Заказать в нашей компании проект отопления, водоснабжения и канализации загородного дома дистанционно со скидкой.
Для этого дома в ТСН «Русский лес»выполнен проект электрики.






















