Выполненные проекты
Проект электрики дома с бассейном в дер. Коргашино
Объект: трехэтажный частный дом с бассейном (из блоков Porotherm), общей площадью 430 м.кв., расположенный в дер. Коргашино, Мытищинского района Московской области
Цена (стоимость) проекта электрики (электропроводки): 51 471 руб. со скидкой 10%, проект слаботочных кабельных линий - бесплатно.
Проект электрики выполнен: 27.09.2023
Состав проекта электрики дома в дер. Коргашино:
1. Пояснительная записка. Общие данные по электроснабжению и освещению частного дома в дер. Коргашино.
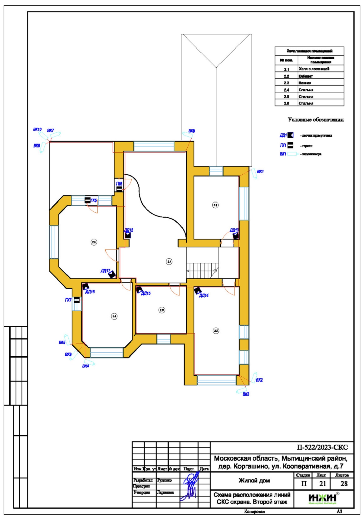
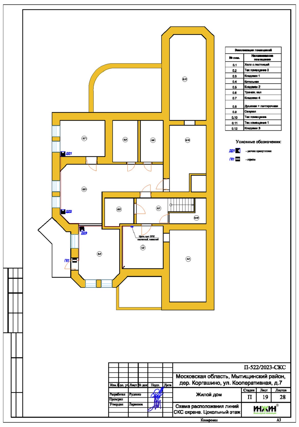
2. Однолинейные схемы вводного распределительного устройства и электрических распределительных щитов дома 430 м.кв.
3. Чертежи электропроводки дома в дер. Коргашино
4. Чертежи групповых осветительных сетей дома в дер. Коргашино.
5. Спецификация материалов и оборудования по электрике и электропроводке дома в дер. Коргашино.
Объем проекта электрики дома 430 м.кв.: 28 листов.
Проект электрики дома площадью 430 м.кв. в дер. Коргашино- подробное описание.
Расчетные показатели по электроснабжению и освещению дома в дер. Коргашино.
o Расчетная электрическая мощность дома составила 25,58 кВт, с учетом коэффициента спроса 0,5, принятого согласно СП 256.1325800.2016;
o При расчете учтено силовое оборудование: кондиционеры, газовый котел, привод ворот, сауна, скважинный насос, водоочистка.
Распределительные электрические щиты дома площадью 430 м.кв.
o Проектом предусмотрено три распределительных электрических щита, размещенных по одному на каждый этаж;
o Автоматические выключатели, дифференциальные автоматы, рубильники и УЗО в щите – ABB, в количестве 54 шт. размещены во встраиваемых корпусах.
Силовая кабельная сеть (электропроводка) дома в дер. Коргашино
o Электропроводка дома предусмотрена с использованием кабелей ВВГнг с медными жилами в ПВХ-оболочке (не поддерживает горение);
o Общая протяженность линий электроснабжения и освещения – 2 070 метров, вводные кабельные линии выполнены на объекте;
o Электропроводка предусмотрена скрытым способом, в гофрированной ПВХ-трубе;
o Запроектировано 245 точки подключения розеток и выключателей освещения в доме;
o Предусмотрены слаботочные линии телевидения, видеонаблюдения, локальной вычислительной сети, систем охранной и пожарной сигнализации протяженностью 1 420 метров.
Предусмотрена система резервного электропитания с использованием однофазного бензинового генератора Mitsui ZM1100E, 11000VA/8800W.
Заказать проект электрики дома дистанционно.
Для этого дома с бассейном в дер. Коргашино выполнен проект отопления, водоснабжения и канализации.




























