Выполненные проекты
Проект электрики дома с баней 338 м.кв.
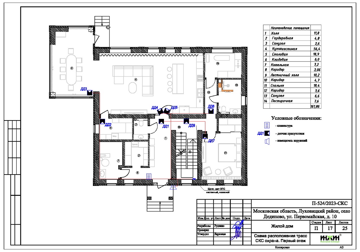
Объект: газобетонный общей площадью 338 м.кв., расположенный в с. Дединово Луховицкого района Московской области
Цена (стоимость) проекта электрики (электропроводки): 40 459 руб. со скидкой 10%, проект слаботочных кабельных линий - бесплатно.
Проект электрики выполнен: 13.11.2023
Состав проекта электрики дома в с. Дединово:
1. Пояснительная записка. Общие данные по электроснабжению и освещению частного дома в с. Дединово.
2. Однолинейные схемы вводного распределительного устройства и электрического распределительного щита дома 338 м.кв.
3. Чертежи электропроводки дома в с. Дединово.
4. Чертежи групповых осветительных сетей дома в с. Дединово.
5. Спецификация материалов и оборудования по электрике и электропроводке дома в с. Дединово.
Объем проекта электрики дома 338 м.кв.: 25 листов.
Проект электрики дома площадью 338 м.кв. в с. Дединово- подробное описание.
Расчетные показатели по электроснабжению и освещению дома в с. Дединово.
o Расчетная электрическая мощность дома составила 22,85 кВт, с учетом коэффициента спроса 0,55, принятого согласно СП 256.1325800.2016;
o При расчете учтено силовое оборудование: септик, газовый котел, скважинный насос, электроплита.
Распределительные электрические щиты дома площадью 338 м.кв.
o Проектом предусмотрен один распределительный электрический щит, расположенный в помещении котельной;
o Автоматические выключатели, дифференциальные автоматы, рубильники и УЗО в щитах – ABB, в количестве 46 шт. размещены в пристраиваемом корпусе.
Силовая кабельная сеть (электропроводка) дома в с. Дединово.
o Электропроводка дома предусмотрена с использованием кабелей ВВГ нг -LS с медными жилами в ПВХ-оболочке (не поддерживает горение);
o Общая протяженность линий электроснабжения и освещения – 2 700 метров, вводная кабельная линия - бронированный кабель 340 метров;
o Электропроводка предусмотрена скрытым способом, в конструкции пола и стен помещений;
o Запроектировано 285 точек подключения розеток и выключателей освещения в доме;
o Предусмотрены слаботочные линии телевидения, общая протяженность - 1 470 метров.
Система резервного электропитания - с использованием инвертора CyberPower CPS 7500 PRO с АКБ.
Запроектировано применения технологии удобства - дистанционного открывания въездных ворот, калитки и включения освещения входной группы при помощи одного радиобрелка.
Заказать проект электрики частного дома дистанционно. 
Для этого дома в с. Дединово выполнен проект отопления, водоснабжения и канализации.
По этому проекту выполнен монтаж электрики дома в с. Дединово.



















