Выполненные проекты
Проект отопления дома во Владимирской области (244 м.кв.)
Объект: двухэтажный частный дом из керамоблоков Porotherm, площадью 244 м.кв., расположенный в дер. Сычево Ковровского района Владимирской области
Цена проекта отопления: 23 510 руб. со скидкой 10%, проект котельной - бесплатно.
Проект котельной и отопления выполнен: 27.11.2023
Состав проекта котельной, отопления и теплого пола дома в дер. Сычево:
1. Пояснительная записка проекта, общие данные по системе отопления дома 244 м.кв. в дер. Сычево.
2. Тепломеханическая схема котельной с размещением оборудования в отдельном помещении дома из керамоблоков Porotherm.
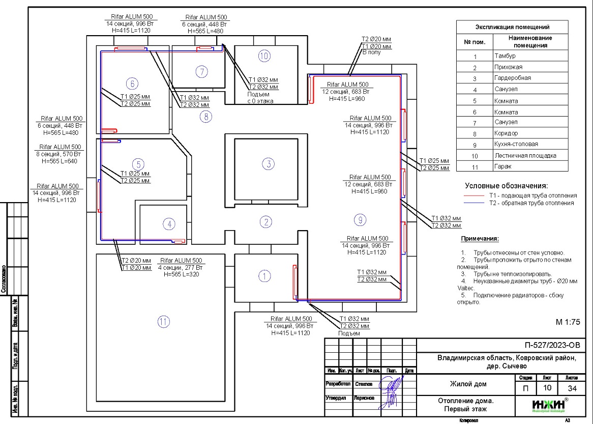
3. Комплект поэтажных чертежей радиаторного отопления дома в дер. Сычево.
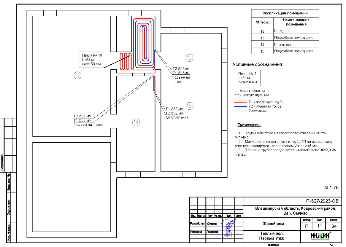
4. Комплект чертежей теплого пола на площади 78 м.кв.
5. Типовые схемы системы отопления дома 244 м.кв.
6. Теплотехнический расчет отопления дома из керамоблоков Porotherm.
7. Спецификация материалов и оборудования по котельной и отоплению дома в дер. Сычево.
Объем проекта отопления дома в дер. Сычево: 34 листа.
Описание проекта отопления, котельной и теплого пола частного дома 244 м.кв. в дер. Сычево.
Котельная частного дома в дер. Сычево(проект котельной бесплатно).
o Размещена в отдельном помещении дома 244 м.кв.;
o Теплогенератор - напольный газовый котел Лемакс Clever, мощностью 20 кВт;
o Контуры теплоснабжения котельной – радиаторное отопление дома и теплый пол;
o Расширительный бак отопления Flamco, объемом 25 литров;
o Дымоудаление естественное, дымоход из керамических блоков TonRohr, диаметр 140 мм, размещение - в строительной шахте;
o Распределительный коллектор в котельной не предусмотрен;
o Автоматика котельной встроена в котел.
Отопление дома в дер. Сычево (проект отопления дома).
o Выполнен теплотехнический расчет отопления дома из керамоблоков Porotherm (утеплитель кровли - арболит 200мм) с учетом теплопотерь через ограждающие конструкции при наружной температуре -28°С для Владимирской области (по СП 131.13330.2012), расчетный расход тепла на отопление дома составил 19,09 кВт, удельные теплопотери 91,0 Вт/м.кв.;
o Подобраны приборы для отопления дома: алюминиевые радиаторы Rifar ALUM с боковым подключением;
o Схема радиаторного отопления дома двухтрубная, с принудительной циркуляцией теплоносителя и температурным графиком 80/60°С;
o Трубы отопления из полипропилена Valtec;
o Теплоизоляция трубопроводов отопления не предусмотрена;
o Теплоноситель в системе радиаторного отопления дома – подготовленная вода, предусмотрены средства защиты от образования накипи.
Водяной теплый пол дома в дер. Сычево (проект теплого пола).
o Водяной теплый пол в доме предусмотрен на площади 78 м.кв., коллекторы теплого пола Valtec на 11 отводов;
o Трубопроводы теплого пола – сшитый полиэтилен Valtec;
o Регулирование температуры теплого пола - общее, на смесительном узле.



















