Выполненные проекты
Электропроводка газоблочного дома 135 м.кв, проект
Объект: газобетонный дом общей площадью 135 м.кв., расположенный в дер. Гавшино Серпуховского района Московской области
Цена (стоимость) проекта электрики (электропроводки): 16 160 руб. со скидкой 10%, проект слаботочных кабельных линий - бесплатно.
Проект электрики выполнен: 29.01.2024
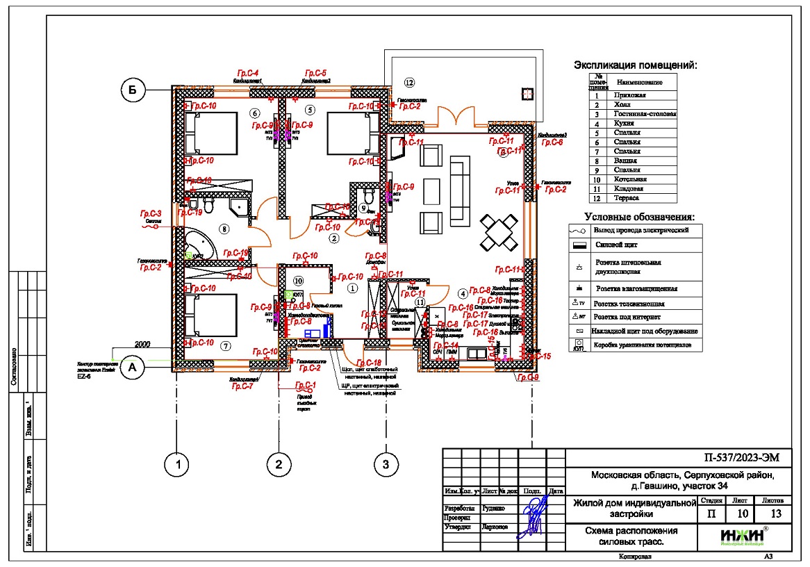
Состав проекта электрики дома в дер. Гавшино:
1. Пояснительная записка. Общие данные по электроснабжению и освещению частного дома в дер. Гавшино.
2. Однолинейные схемы вводного распределительного устройства и электрического распределительного щита дома 135 м.кв.
3. Чертежи электропроводки дома в дер. Гавшино.
4. Чертежи групповых осветительных сетей дома в дер. Гавшино.
5. Спецификация материалов и оборудования по электрике и электропроводке дома в дер. Гавшино.
Объем проекта электрики дома 135 м.кв.: 13 листов.
Проект электрики дома площадью 135 м.кв. в дер. Гавшино- подробное описание.
Расчетные показатели по электроснабжению и освещению дома в дер. Гавшино.
o Расчетная электрическая мощность дома составила 8,38 кВт, с учетом коэффициента спроса 0,65, принятого согласно СП 256.1325800.2016;
o При расчете учтено силовое оборудование: септик, газовый котел, скважинный насос, кондиционеры.
Распределительные электрические щиты дома площадью 135 м.кв.
o Проектом предусмотрен один распределительный электрический щит, расположенный в техническом помещении;
o Автоматические выключатели, дифференциальные автоматы, рубильники и УЗО в щите – Schneider Electric, в количестве 27 шт. размещены в пристраиваемом корпусе.
Силовая кабельная сеть (электропроводка) дома в дер. Гавшино.
o Электропроводка дома предусмотрена с использованием кабелей ВВГ нг -LS с медными жилами в ПВХ-оболочке (не поддерживает горение);
o Общая протяженность линий электроснабжения и освещения – 780 метров, вводная кабельная линия - бронированный кабель 55 метров;
o Электропроводка предусмотрена скрытым способом, в конструкции пола и стен помещений;
o Запроектировано 67 точек подключения розеток и выключателей освещения в доме;
o Предусмотрены слаботочные линии ЛВС и телевидения, общая протяженность - 160 метров.
Система резервного электропитания предусмотрена на базе однофазного инвертора CyberPower CPS 3500 PRO с АКБ.
Заказать проект электрики частного дома дистанционно.
Для этого дома в дер. Гавшиновыполнен проект отопления.


















