Выполненные проекты
Проект отопления дома в пос. Рязановское
Объект: двухэтажный частный дом из кирпича, площадью 138 м.кв., расположенный в г. Москва, пос. Рязановское, мкр. Гора
Цена проекта отопления: 22 232 руб. со скидкой 10%, проект котельной - бесплатно.
Проект котельной и отопления выполнен: 23.1.2024
Состав проекта котельной, отопления и теплого пола дома в пос. Рязановское:
1. Пояснительная записка проекта, общие данные по системе отопления дома 138 м.кв. в пос. Рязановское.
2. Тепломеханическая схема котельной с размещением оборудования в отдельном помещении дома из кирпича.
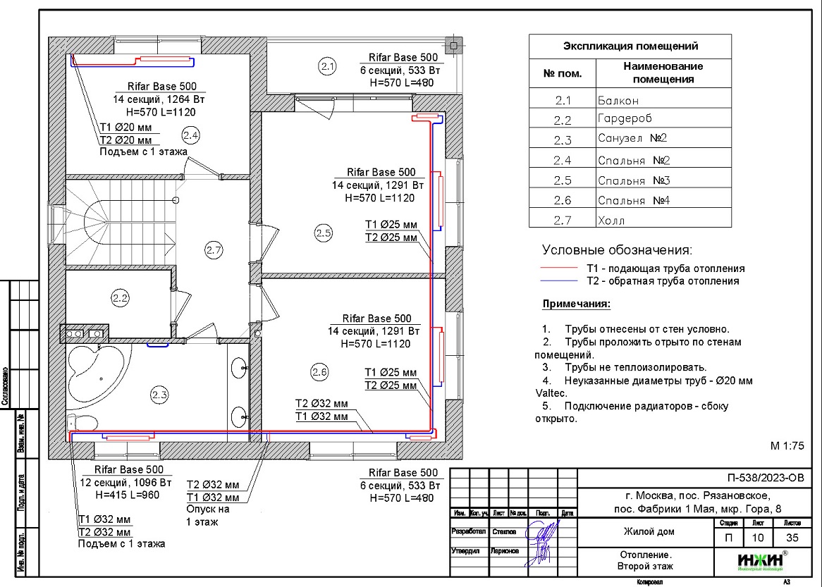
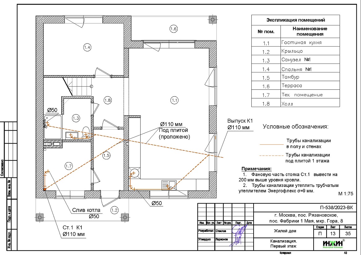
3. Комплект поэтажных чертежей радиаторного отопления дома в пос. Рязановское.
4. Типовые схемы системы отопления и водоснабжения дома 138 м.кв.
5. Теплотехнический расчет отопления дома из кирпича.
6. Спецификация материалов и оборудования по котельной и отоплению дома в пос. Рязановское.
Объем проекта отопления дома в пос. Рязановское: 35 листов.
Описание проекта отопления, котельной, водоснабжения, канализации частного дома 138 м.кв. в пос. Рязановское.
Котельная частного дома в пос. Рязановское(проект котельной бесплатно).
o Размещена в отдельном помещении дома 138 м.кв.;
o Теплогенератор газовый настенный котел Mizudo, мощностью 24 кВт;
o Контуры теплоснабжения котельной – радиаторное отопление дома и горячее водоснабжение, для которого предусмотрен накопительный бойлер STOUT, объемом 150 литров (подключение к колу);
o Расширительные баки отопления и бойлера Flamco, объемом 18 и 12 литров;
o Дымоудаление принудительное, дымоход коаксиальный, через стену;
o Распределительный коллектор в котельной не предусмотрен;
o Автоматика котельной – встроена в котел.
Отопление дома в пос. Рязановское (проект отопления дома).
o Выполнен теплотехнический расчет отопления дома из кирпича (утеплитель кровли - минвата 200) с учетом теплопотерь через ограждающие конструкции при наружной температуре -28°С для Московской области (по СП 131.13330.2012), расчетный расход тепла на отопление дома составил 12,13 кВт, удельные теплопотери 96,8 Вт/м.кв.;
o Подобраны приборы для отопления дома: секционные радиаторы RIFAR BASE с боковым подключением;
o Схема радиаторного отопления дома двухтрубная, с принудительной циркуляцией теплоносителя и температурным графиком 80/60°С;
o Трубы отопления из полипропилена Valtec;
o Теплоизоляция трубопроводов отопления не предусмотрена;
o Теплоноситель в системе радиаторного отопления дома – подготовленная вода.
Водяной теплый пол в доме проектом не предусмотрен.
Внутренний водопровод дома в пос. Рязановское(проект водоснабжения).
o Схема внутреннего водоснабжения дома – тройниковая с рециркуляцией горячей воды через тройники и полотенцесушители, выполнен расчет 17-и точек водоснабжения;
o Трубопроводы системы водоснабжения – из полипропилена Valtec;
o Теплоизоляция трубопроводов Valtec, толщиной 6мм.
Внутренняя канализация (проект канализации) дома в пос. Рязановское.
o Безнапорная, отвод стоков от санитарно-технических приборов предусмотрен в септик;
o Произведен расчет 10-и точек бытовой канализации;
o Канализационные трубы Синикон, раструбные, из полипропилена, утепленные трубчатым утеплителем Энергофлекс Супер, 9мм.






















