Выполненные проекты
Проект электрики дома 137 м.кв в г. Жуков
Объект: газобетонный дом общей площадью 137 м.кв., расположенный в г. Жуков Калужской области
Цена (стоимость) проекта электрики (электропроводки): 16 398 руб. со скидкой 10%, проект слаботочных кабельных линий - бесплатно.
Проект электрики выполнен: 11.03.2024
Состав проекта электрики дома в г. Жуков Калужской области:
1. Пояснительная записка. Общие данные по электроснабжению и освещению частного дома в г. Жуков Калужской области.
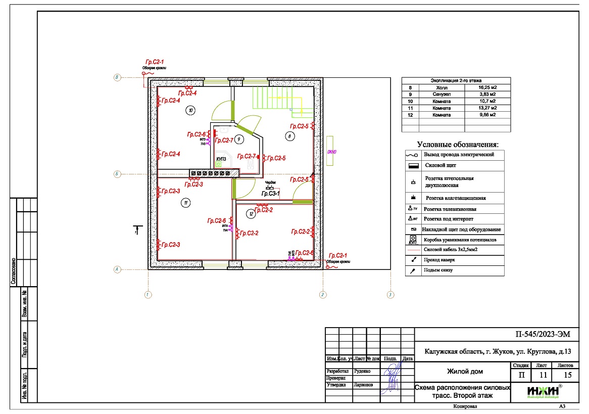
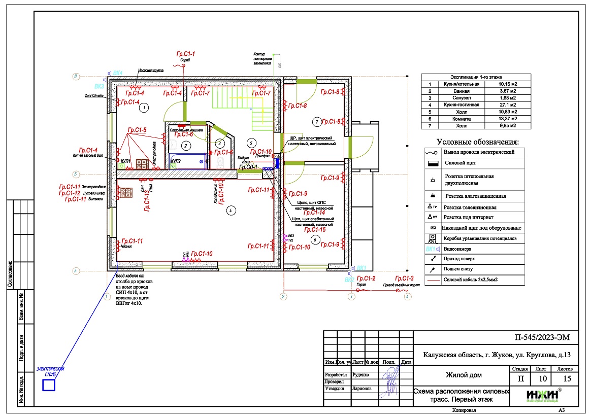
2. Однолинейные схемы вводного распределительного устройства и электрического распределительного щита дома 137 м.кв.
3. Чертежи электропроводки дома в г. Жуков Калужской области.
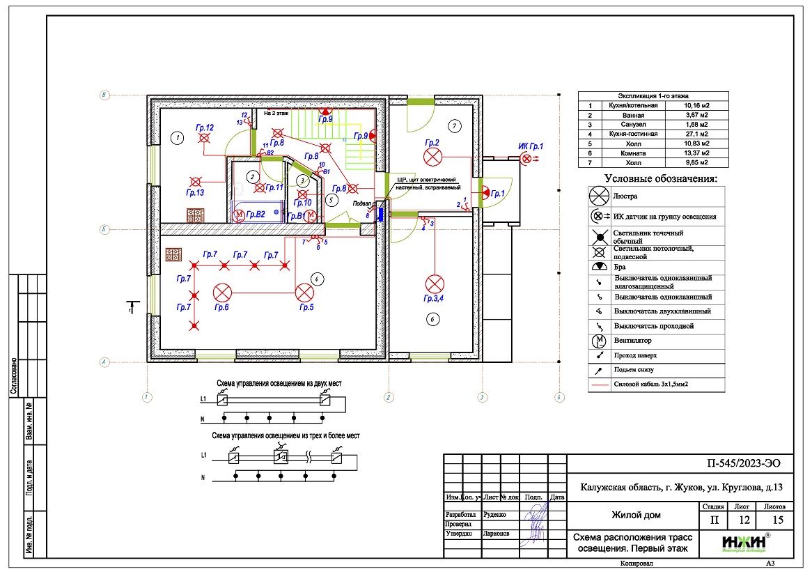
4. Чертежи групповых осветительных сетей дома в г. Жуков Калужской области.
5. Спецификация материалов и оборудования по электрике и электропроводке дома в г. Жуков Калужской области.
Объем проекта электрики дома 137 м.кв.: 15 листов.
Проект электрики дома площадью 137 м.кв. в г. Жуков Калужской области- подробное описание.
Расчетные показатели по электроснабжению и освещению дома в г. Жуков Калужской области.
o Расчетная электрическая мощность дома составила 15,2 кВт, с учетом коэффициента спроса 0,65, принятого согласно СП 256.1325800.2016;
o При расчете учтено силовое оборудование: септик, газовый котел, скважинный насос, кондиционеры.
Распределительные электрические щиты дома площадью 137 м.кв.
o Проектом предусмотрен один распределительный электрический щит, расположенный в техническом помещении пристройки;
o Автоматические выключатели, дифференциальные автоматы, рубильники и УЗО в щите – ABB, в количестве 38 шт. размещены в пристраиваемом корпусе.
Силовая кабельная сеть (электропроводка) дома в г. Жуков Калужской области.
o Электропроводка дома предусмотрена с использованием кабелей ВВГ нг -LS с медными жилами в ПВХ-оболочке (не поддерживает горение);
o Общая протяженность линий электроснабжения и освещения – 580 метров, вводная кабельная линия - бронированный кабель 55 метров;
o Электропроводка предусмотрена скрытым способом, в конструкции пола и стен помещений;
o Запроектировано 67 точек подключения розеток и выключателей освещения в доме;
o Предусмотрены слаботочные линии ЛВС и телевидения, общая протяженность - 200 метров.
Система резервного электропитания предусмотрена на базе однофазного инвертора CyberPower CPS 3500 PRO с АКБ.
Заказать проект электрики частного дома дистанционно.
Для этого дома в г. Жуков Калужской областивыполнен проект отопления.



















