Выполненные проекты
Проект отопления дома 123 м.кв. в д. Степаньково
Объект: трехэтажный дом из кирпича, площадью 123 м.кв., расположенный в д. Степаньково Пушкинского района Московской области
Цена проекта отопления, канализации и водоснабжения: 19 815 руб. со скидкой 10%, проект котельной - бесплатно.
Проект котельной, отопления, водоснабжения и канализации выполнен: 04.03.2024
Состав проекта котельной, отопления, канализации и водоснабжения дома в д. Степаньково:
1. Пояснительная записка проекта, общие данные по системам отопления, канализации и водоснабжения дома 123 м.кв. в д. Степаньково
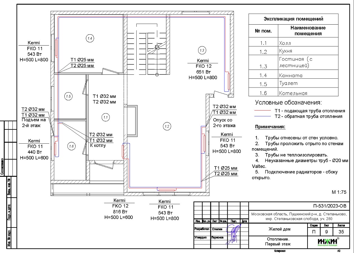
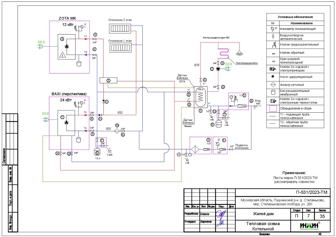
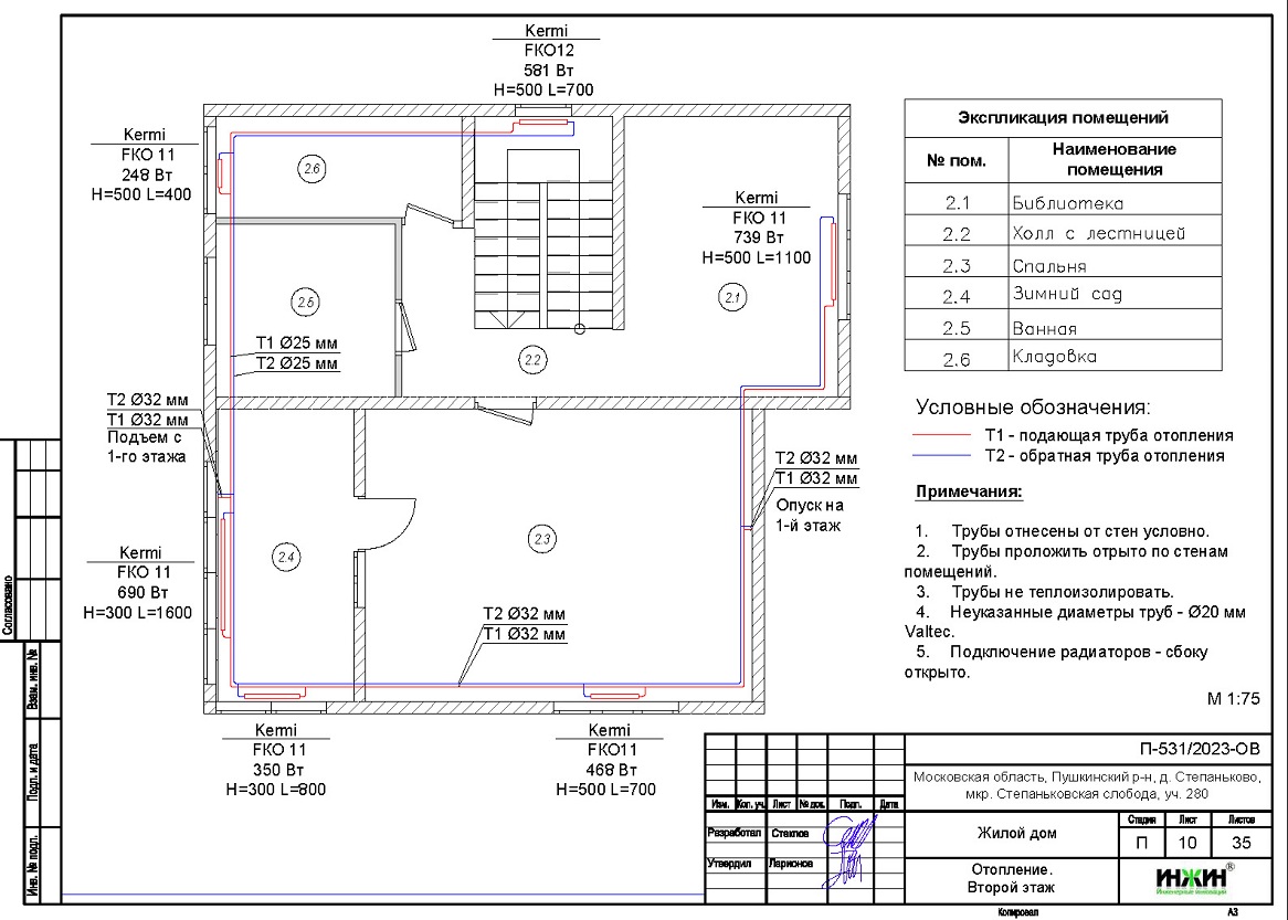
2. Тепломеханическая схема котельной с размещением оборудования (котла) в помещении кухни дома из кирпича.
3. Комплект поэтажных чертежей радиаторного отопления дома в д. Степаньково.
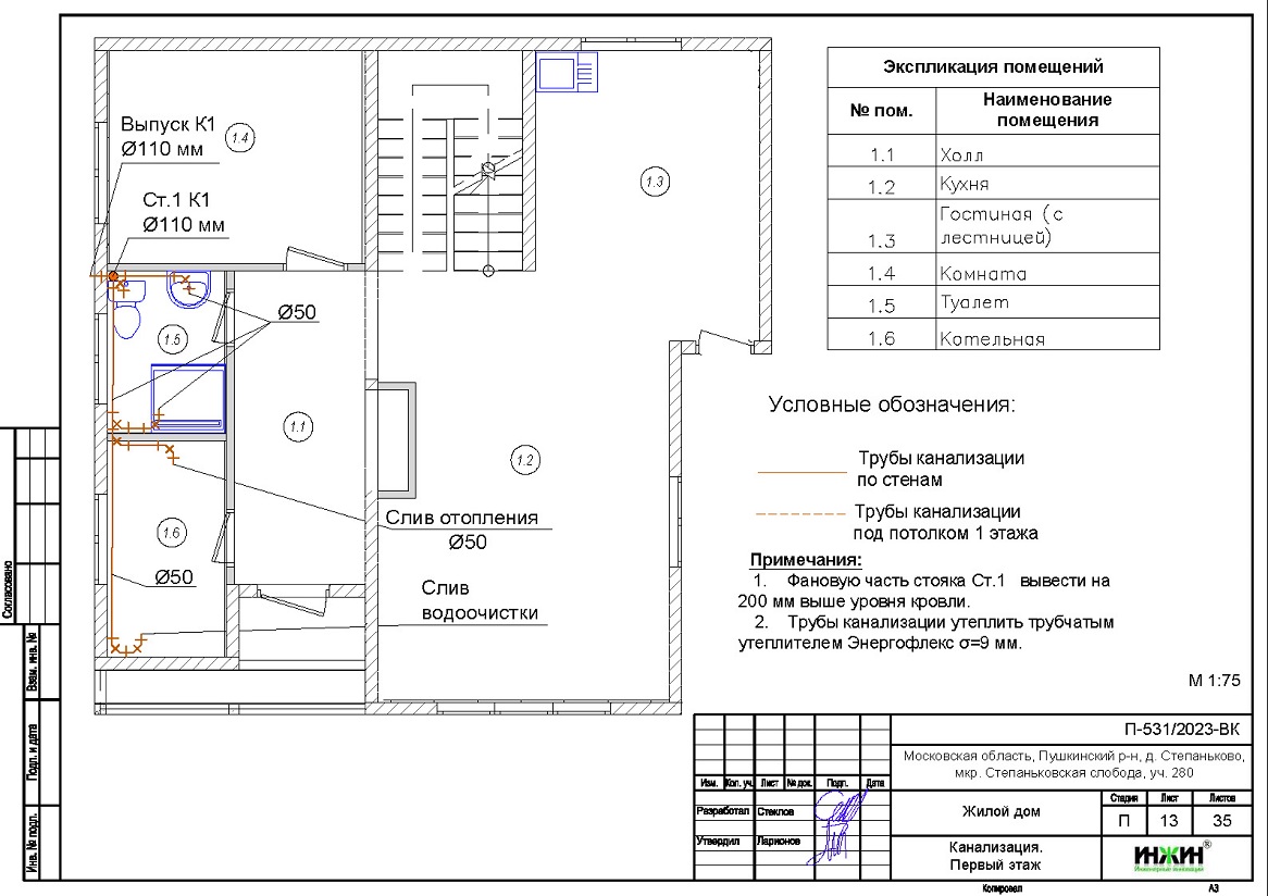
4. Комплект чертежей водоснабжения и канализации частного дома из кирпича в д. Степаньково.
5. Типовые схемы системы отопления канализации и водоснабжения дома 123 м.кв.
6. Теплотехнический расчет отопления дома из кирпича.
7. Спецификация материалов и оборудования по котельной, отоплению, канализации и водоснабжению дома в д. Степаньково.
Объем проекта отопления, канализации и водоснабжения дома в д. Степаньково: 35 листов.
Описание проекта отопления, котельной, канализации и водоснабжения частного дома 123 м.кв. в д. Степаньково.
Котельная частного дома в д. Степаньково(проект котельной бесплатно).
o Размещена в отдельном помещении дома 123 м.кв.;
o Теплогенератор - настенный электрический котел Zota MK, мощностью 12 кВт;
o Контуры теплоснабжения котельной – радиаторное отопление дома и горячее водоснабжение, для которого предусмотрен накопительный бойлер STOUT, объемом 150 литров (напольный);
o Расширительные баки отопления и бойлера Flamco, объемом 12 литров каждый;
o Дымоход не предусмотрен;
o Распределительный коллектор не предусмотрен;
o Автоматика котельной встроена в котел.
Отопление дома в д. Степаньково (проект отопления дома).
o Выполнен теплотехнический расчет отопления дома из кирпича (утеплитель кровли - минвата 100мм, стен - пенопласт 50мм) с учетом теплопотерь через ограждающие конструкции при наружной температуре -28°С для Московской области (по СП 131.13330.2012), расчетный расход тепла на отопление дома составил 10,56 кВт, удельные теплопотери 78,3 Вт/м.кв.;
o Подобраны приборы для отопления дома: стальные панельные радиаторы Kermiс боковым подключением;
o Схема радиаторного отопления дома двухтрубная, с принудительной циркуляцией теплоносителя и температурным графиком 80/60°С;
o Трубы отопления из полипропилена Valtec;
o Теплоизоляция трубопроводов отопления не предусмотрена;
o Теплоноситель в системе радиаторного отопления дома – подготовленная вода, предусмотрены средства защиты от образования накипи.
Водяной теплый пол в доме проектом не предусмотрен.
Внутренний водопровод дома в д. Степаньково (проект водоснабжения).
o Схема внутреннего водоснабжения дома – тройниковая тупиковая с рециркуляцией горячей воды через тройники, выполнен расчет 13-ти точек водоснабжения и полотенцесушителей;
o Трубопроводы системы водоснабжения – из полипропилена Valtec;
o Теплоизоляция трубопроводов не предусмотрена.
Внутренняя канализация (проект канализации) дома в д. Степаньково.
o Безнапорная, отвод стоков от санитарно-технических приборов предусмотрен в центральную сеть;
o Произведен расчет 9-ти точек бытовой канализации;
o Канализационные трубы Синикон, раструбные, из полипропилена.



















