Выполненные проекты
Проект электрики дома 179 м.кв. в Башкортостане
Объект: кирпичный дом общей площадью 179 м.кв., расположенный в . Зубово, Республика Башкортостан
Цена (стоимость) проекта электрики (электропроводки): 21 426 руб. со скидкой 10%, проект слаботочных кабельных линий - бесплатно.
Проект электрики выполнен: 27.05.2024
Состав проекта электрики дома в с. Зубово, Республика Башкортостан:
1. Пояснительная записка. Общие данные по электроснабжению и освещению частного дома в с. Зубово, Республика Башкортостан.
2. Однолинейные схемы вводного распределительного устройства и электрического распределительного щита дома 179 м.кв.
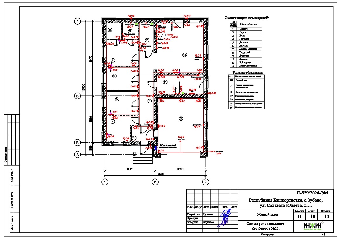
3. Чертежи электропроводки дома в с. Зубово, Республика Башкортостан.
4. Чертежи групповых осветительных сетей дома в с. Зубово, Республика Башкортостан.
5. Спецификация материалов и оборудования по электрике и электропроводке дома в с. Зубово, Республика Башкортостан.
Объем проекта электрики дома 179 м.кв.: 13 листов.
Проект электрики дома площадью 179 м.кв. в с. Зубово, Республика Башкортостан- подробное описание.
Расчетные показатели по электроснабжению и освещению дома в с. Зубово, Республика Башкортостан.
o Расчетная электрическая мощность дома составила 18,73 кВт, с учетом коэффициента спроса 0,55, принятого согласно СП 256.1325800.2016;
o При расчете учтено силовое оборудование: электроплита, электрический котел, скважинный насос, кондиционеры.
Распределительные электрические щиты дома площадью 179 м.кв.
o Проектом предусмотрен один распределительный электрический щит, расположенный в техническом помещении;
o Автоматические выключатели, дифференциальные автоматы, рубильники и УЗО в щите – ABB, в количестве 27 шт. размещены в пристраиваемом корпусе.
Силовая кабельная сеть (электропроводка) дома в с. Зубово, Республика Башкортостан.
o Электропроводка дома предусмотрена с использованием кабелей ВВГ нг -LS с медными жилами в ПВХ-оболочке (не поддерживает горение);
o Общая протяженность линий электроснабжения и освещения – 955 метров, вводная кабельная линия - бронированный кабель 30 метров;
o Электропроводка предусмотрена скрытым способом, в конструкции пола и стен помещений;
o Запроектировано 140 точек подключения розеток и выключателей освещения в доме;
o Предусмотрены слаботочные линии ЛВС и телевидения, общая протяженность - 140 метров.
Система резервного электропитания предусмотрена на базе однофазного инвертора CyberPower CPS 3500 PRO с АКБ.
















