Выполненные проекты
Проект электрики дома в Тишково (Пушкинский г.о.)
Объект: газобетонный дом общей площадью 155 м.кв., расположенный в с. Тишково Пушкинского района Московской области
Цена (стоимость) проекта электрики (электропроводки): 20 228 руб. со скидкой 10%, проект слаботочных кабельных линий - бесплатно.
Проект электрики выполнен: 14.10.2024
Состав проекта электрики дома в Тишково:
1. Пояснительная записка. Общие данные по электроснабжению и освещению частного дома в Тишково.
2. Однолинейные схемы вводного распределительного устройства и электрического распределительного щита дома 155 м.кв.
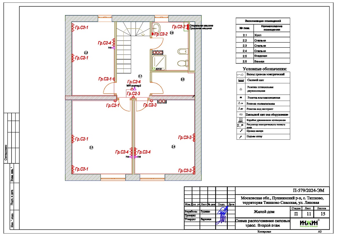
3. Чертежи электропроводки дома в Тишково.
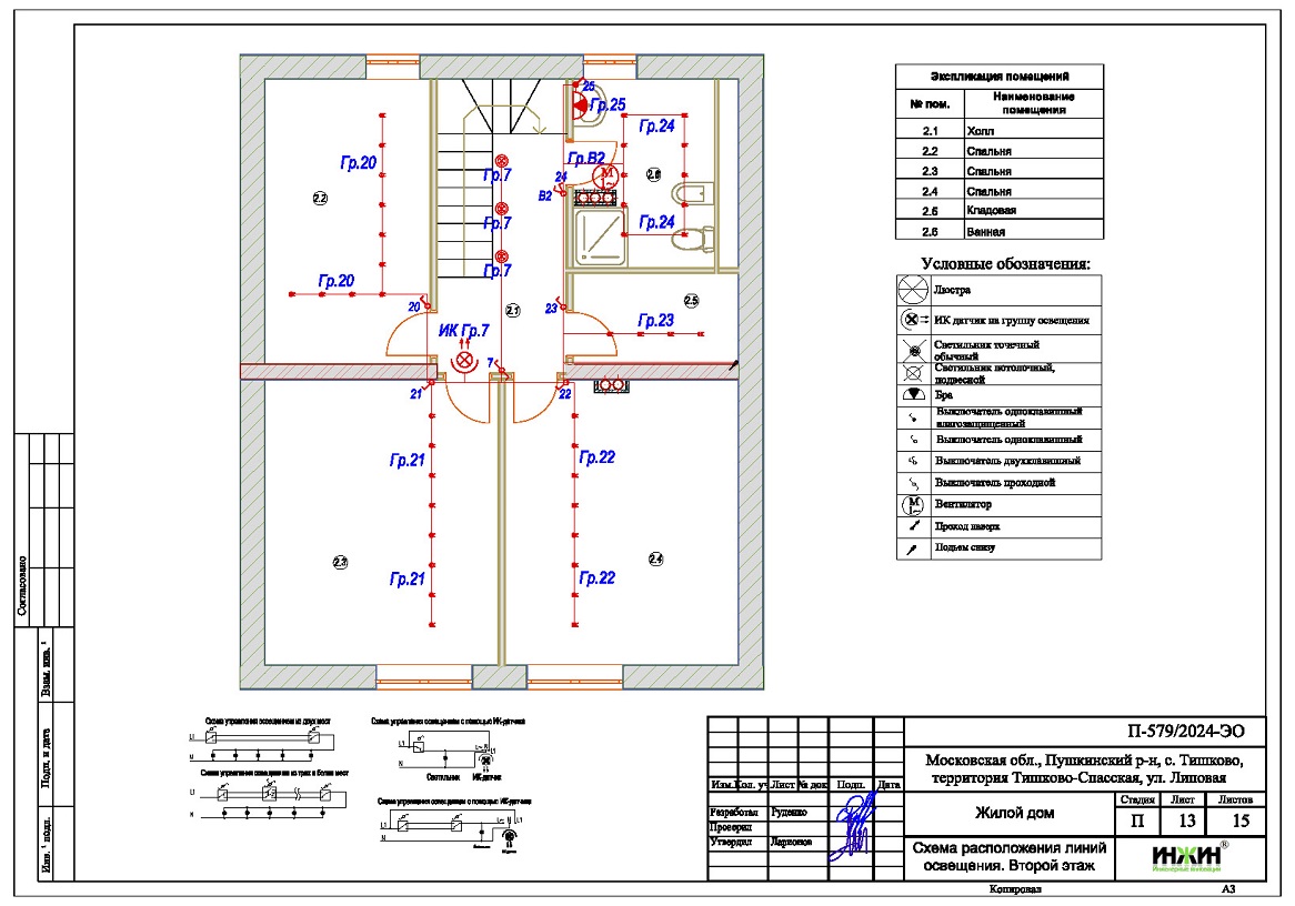
4. Чертежи групповых осветительных сетей дома в Тишково.
5. Спецификация материалов и оборудования по электрике и электропроводке дома в Тишково.
Объем проекта электрики дома 155 м.кв.: 15 листов.
Проект электрики дома площадью 155 м.кв. в Тишково- подробное описание.
Расчетные показатели по электроснабжению и освещению дома в Тишково.
o Расчетная электрическая мощность дома составила 20,31 кВт, с учетом коэффициента спроса 0,55, принятого согласно СП 256.1325800.2016;
o При расчете учтено силовое оборудование: септик, газовый котел, электрический котел, скважинный насос, кондиционеры.
Распределительные электрические щиты дома площадью 155 м.кв.
o Проектом предусмотрен один распределительный электрический щит, расположенный в прихожей;
o Автоматические выключатели, дифференциальные автоматы, рубильники и УЗО в щите – ABB, в количестве 27 шт. размещены в пристраиваемом корпусе.
Силовая кабельная сеть (электропроводка) дома в Тишково.
o Электропроводка дома предусмотрена с использованием кабелей ВВГ нг -LS с медными жилами в ПВХ-оболочке (не поддерживает горение);
o Общая протяженность линий электроснабжения и освещения – 770 метров, вводная кабельная линия - бронированный кабель 115 метров;
o Электропроводка предусмотрена скрытым способом, в конструкции пола и стен помещений;
o Запроектировано 105 точек подключения розеток и выключателей освещения в доме;
o Предусмотрены слаботочные линии телевидения, общая протяженность - 100 метров.
Система резервного электропитания предусмотрена на базе однофазного инвертора CyberPower CPS 1500 PRO с АКБ.
Заказать проект электрики частного дома дистанционно.
Для этого дома в Тишкововыполнен проект отопления.



















