Выполненные проекты
Электрика газобетонного дома 120 м.кв., проект
Объект: газобетонный общей площадью 120 м.кв., расположенный в КП “Новый Мир” Александровского района Владимирской области
Цена (стоимость) проекта электрики (электропроводки): 15 740 руб. со скидкой 10%, проект слаботочных кабельных линий - бесплатно.
Проект электрики выполнен: 01.11.2024
Состав проекта электрики дома в КП “Новый Мир” Владимирской области:
1. Пояснительная записка. Общие данные по электроснабжению и освещению частного дома в КП “Новый Мир” Владимирской области.
2. Однолинейные схемы вводного распределительного устройства и электрического распределительного щита дома 120 м.кв.
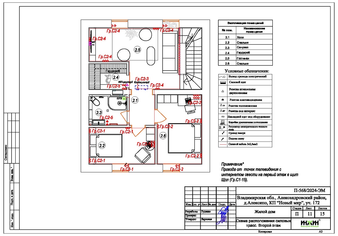
3. Чертежи электропроводки дома в КП “Новый Мир” Владимирской области.
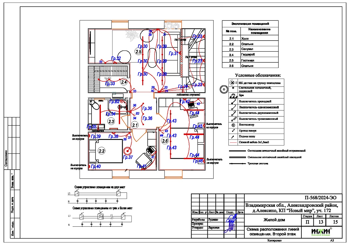
4. Чертежи групповых осветительных сетей дома в КП “Новый Мир” Владимирской области.
5. Спецификация материалов и оборудования по электрике и электропроводке дома в КП “Новый Мир” Владимирской области.
Объем проекта электрики дома 120 м.кв.: 15 листов.
Проект электрики дома площадью 120 м.кв. в КП “Новый Мир” Владимирской области- подробное описание.
Расчетные показатели по электроснабжению и освещению дома в КП “Новый Мир” Владимирской области.
o Расчетная электрическая мощность дома составила 15,00 кВт, с учетом коэффициента спроса 0,65, принятого согласно СП 256.1325800.2016;
o При расчете учтено силовое оборудование: септик, газовый котел, скважинный насос, кондиционер.
Распределительные электрические щиты дома площадью 120 м.кв.
o Проектом предусмотрен один распределительный электрический щит, расположенный в техническом помещении;
o Автоматические выключатели, дифференциальные автоматы, рубильники и УЗО в щите – ABB, в количестве 28 шт. размещены в пристраиваемом корпусе.
Силовая кабельная сеть (электропроводка) дома в КП “Новый Мир” Владимирской области.
o Электропроводка дома предусмотрена с использованием кабелей ВВГ нг -LS с медными жилами в ПВХ-оболочке (не поддерживает горение);
o Общая протяженность линий электроснабжения и освещения – 1015 метров, вводная кабельная линия - бронированный кабель 70 метров;
o Электропроводка предусмотрена скрытым способом, в конструкции пола и стен помещений;
o Запроектировано 163 точки подключения розеток и выключателей освещения в доме;
o Предусмотрены слаботочные линии телевидения, общая протяженность - 140 метров.
Система резервного электропитания - бензиновый однофазный генератор A-iPower 7000Ва/5600Вт.
Запроектировано применения технологии удобства - дистанционного открывания въездных ворот, калитки и включения освещения входной группы при помощи одного радиобрелка.
Заказать проект электрики частного дома дистанционно.
Для этого дома в КП “Новый Мир” Владимирской областивыполнен проект отопления.



















