Выполненные проекты
Электрика газобетонного дома 337 м.кв., проект
Объект: газобетонный дом общей площадью 337 м.кв., расположенный в ДНП «Северное» Истринского района Московской области
Цена (стоимость) проекта электрики (электропроводки): 43 979 руб. со скидкой 10%, проект слаботочных кабельных линий - бесплатно.
Проект электрики выполнен: 15.11.2024
Состав проекта электрики дома в ДНП «Северное»:
1. Пояснительная записка. Общие данные по электроснабжению и освещению частного дома в ДНП «Северное».
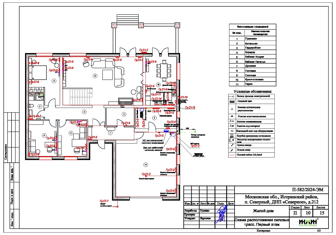
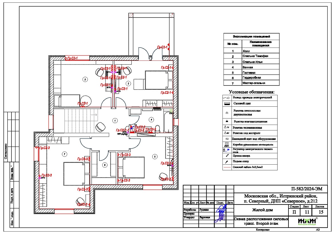
2. Однолинейные схемы вводного распределительного устройства и электрического распределительного щита дома 337 м.кв.
3. Чертежи электропроводки дома в ДНП «Северное».
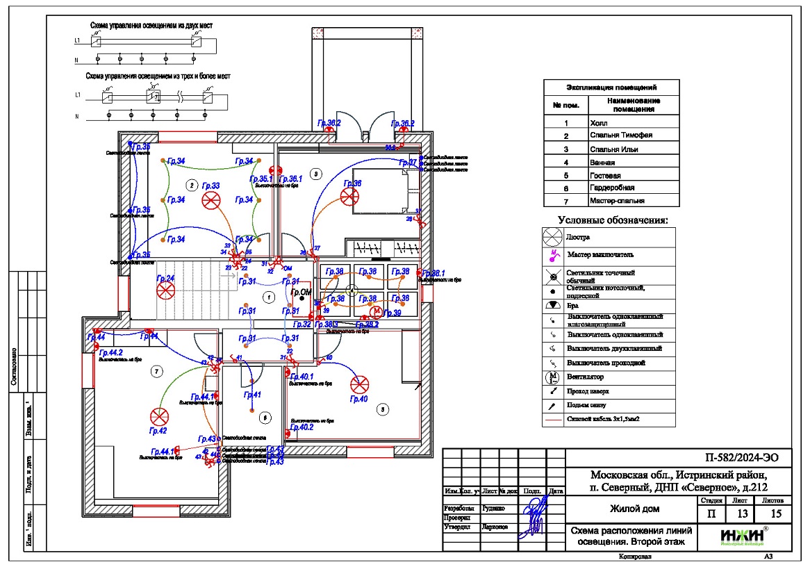
4. Чертежи групповых осветительных сетей дома в ДНП «Северное».
5. Спецификация материалов и оборудования по электрике и электропроводке дома в ДНП «Северное».
Объем проекта электрики дома 337 м.кв.: 15 листов.
Проект электрики дома площадью 337 м.кв. в ДНП «Северное»- подробное описание.
Расчетные показатели по электроснабжению и освещению дома в ДНП «Северное».
o Расчетная электрическая мощность дома составила 18,31 кВт, с учетом коэффициента спроса 0,5, принятого согласно СП 256.1325800.2016;
o При расчете учтено силовое оборудование: септик, газовый котел, скважинный насос, кондиционеры.
Распределительные электрические щиты дома площадью 337 м.кв.
o Проектом предусмотрен один распределительный электрический щит, расположенный в техническом помещении;
o Автоматические выключатели, дифференциальные автоматы, рубильники и УЗО в щите – ABB, в количестве 27 шт. размещены в пристраиваемом корпусе.
Силовая кабельная сеть (электропроводка) дома в ДНП «Северное».
o Электропроводка дома предусмотрена с использованием кабелей ВВГ нг -LS с медными жилами в ПВХ-оболочке (не поддерживает горение);
o Общая протяженность линий электроснабжения и освещения – 1450 метров, вводная кабельная линия - бронированный кабель 15 метров;
o Электропроводка предусмотрена скрытым способом, в конструкции пола и стен помещений;
o Запроектировано 175 точки подключения розеток и выключателей освещения в доме;
o Предусмотрены слаботочные линии ЛВС, общая протяженность - 305 метров.
Система резервного электропитания не предусмотрена.
Запроектировано применения технологии удобства - дистанционного открывания въездных ворот, калитки и включения освещения входной группы при помощи одного радиобрелка.
Заказать проект электрики частного дома дистанционно.
Для этого дома в ДНП «Северное»выполнен проект отопления.



















