Выполненные проекты
Проект отопления дома 240 м.кв. в Балашихе
Объект: частный дом (2 этажа) из блоков Porotherm, общей площадью 240 м.кв., расположенный в г. Балашиха Московской области
Вариант отопления: «Комфортный»
Цена проекта отопления, канализации и водоснабжения: 61 704 руб. со скидкой 10%, проект котельной - бесплатно.
Проект котельной, отопления, водоснабжения и канализации выполнен: 11.11.2024
Состав проекта котельной, отопления, канализации и водоснабжения дома в Балашихе:
1. Пояснительная записка проекта, общие данные по системам отопления и водоснабжения дома 240 м.кв. в Балашихе.
2. Тепломеханическая схема котельной с размещением оборудования в отдельном помещении дома из блоков Porotherm.
3. Комплект поэтажных чертежей радиаторного отопления дома в Балашихе.
4. Комплект чертежей теплого пола на площади 200 м.кв.
5. Комплект чертежей водоснабжения и канализации частного дома из блоков Porotherm в Балашихе.
6. Типовые схемы системы отопления канализации и водоснабжения дома 240 м.кв.
7. Теплотехнический расчет отопления дома из блоков Porotherm.
8. Спецификация материалов и оборудования по котельной, отоплению, канализации и водоснабжению дома в Балашихе.
Объем проекта отопления и водоснабжения дома в Балашихе: 42 листа.
Описание проекта отопления, котельной, канализации и водоснабжения частного дома 240 м.кв. в Балашихе.
Котельная частного дома в Балашихе(проект котельной бесплатно).
o Размещена в отдельном помещении дома 240 м.кв.;
o Теплогенераторы - настенный газовый котел Ariston CLAS X SYSTEM, мощностью 32 кВт (в наличии), резервный - электрический ЭВАН EXPERT PLUS, 6 кВт (в наличии);
o Контуры теплоснабжения котельной (5 шт.) – отопление дома, теплый пол 1 и 2 этажей, отопление гаража и горячее водоснабжение, для которого предусмотрен накопительный бойлер HAJDU, объемом 150 литров (подключение к коллектору);
o Расширительные баки отопления и бойлера Flamco, объемом 35 и 18 литров, соответственно;
o Дымоход коаксиальный, в исполнении "через стену";
o Распределительный коллектор STOUT, с насосно-смесительными группами;
o Автоматика котельной – контроллер ZONT Climatic 1.3 со встроенным GSM-модулем.
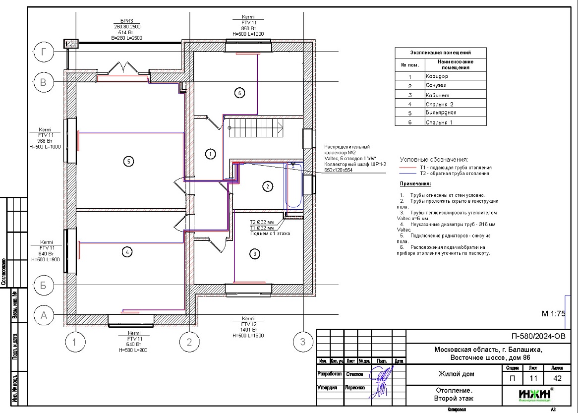
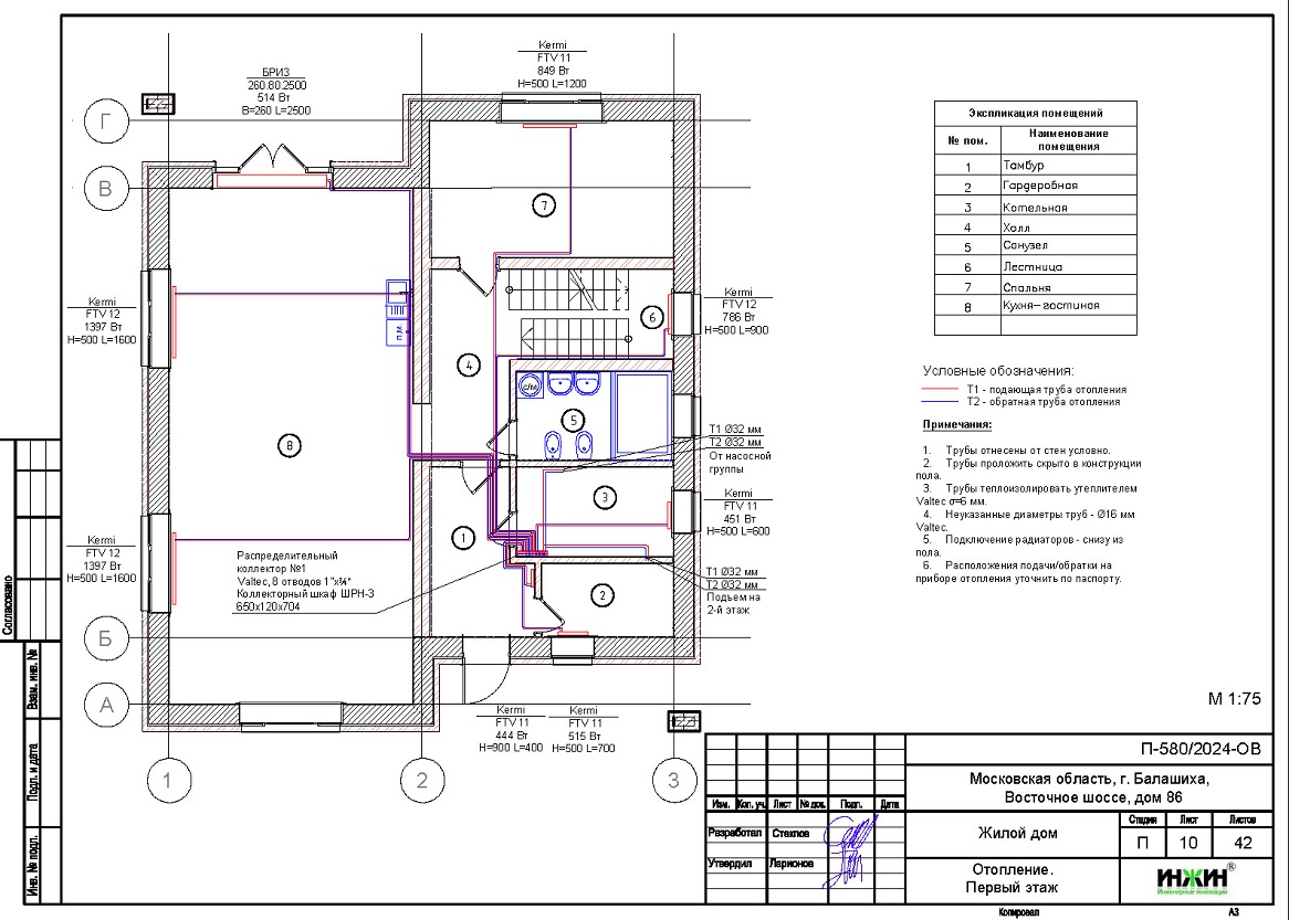
Отопление дома в Балашихе (проект отопления дома).
o Выполнен теплотехнический расчет отопления дома из блоков Porotherm (утеплитель кровли - минвата 250мм) с учетом теплопотерь через ограждающие конструкции при наружной температуре -26°С для Московской области (по СП 131.13330.2020), расчетный расход тепла на отопление дома составил 19,96 кВт, удельные теплопотери 80,6 Вт/м.кв.;
o Подобраны приборы для отопления дома: стальные панельные радиаторы Kermi с нижним подключением, а также встроенные в пол конвекторы "Бриз" (КЗТО);
o Схема радиаторного отопления дома двухтрубная, коллекторно-лучевая, с принудительной циркуляцией теплоносителя и температурным графиком 80/60°С;
o Трубы отопления из сшитого полиэтилена Valtec;
o Теплоизоляция трубопроводов отопления Valtec, толщиной 6мм;
o Теплоноситель в системе радиаторного отопления дома – подготовленная вода, предусмотрены средства защиты от образования накипи.
Водяной теплый пол дома в Балашихе (проект теплого пола).
o Водяной теплый пол в доме предусмотрен на площади 200 м.кв., коллекторы теплого пола Valtec на 8 и 9 отводов (всего 17 петель);
o Предусмотрен насосно-смесительный узел для теплоснабжения водяного теплого пола;
o Трубопроводы теплого пола – сшитый полиэтилен Valtec, основание - плиты пенополистирольные с покрытием и фиксирующими бобышками EasyFix L (Формат);
o Регулирование температуры теплого пола - общее, контуром котельной.
Внутренний водопровод дома в Балашихе (проект водоснабжения).
o Схема внутреннего водоснабжения дома – коллекторно-лучевая с рециркуляцией горячей воды через полотенцесушители, выполнен расчет 20-и точек водоснабжения и полотенцесушителей;
o Трубопроводы системы водоснабжения – из сшитого полиэтилена Valtec;
o Теплоизоляция трубопроводов Valtec, толщиной 6мм.
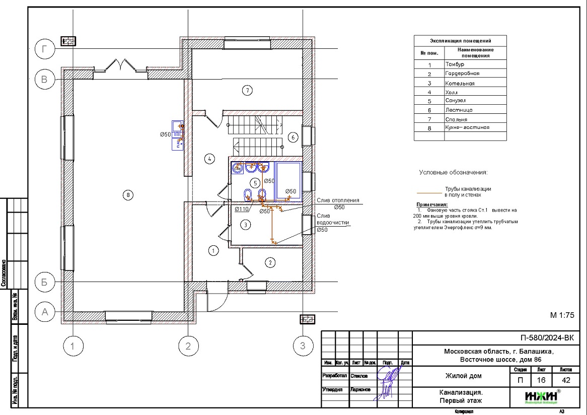
Внутренняя канализация (проект канализации) дома в Балашихе.
o Безнапорная, отвод стоков от санитарно-технических приборов предусмотрен в септик;
o Произведен расчет 14-ти точек бытовой канализации;
o Канализационные трубы Синикон, раструбные, из полипропилена.






















