Выполненные проекты
Проект отопления дома площадью 187 м.кв.
Объект: двухэтажный дом из газобетона, площадью площадью 187 м.кв., расположенный в дер. Алексеевка Чеховского района Московской области
Вариант отопления: «Комфортный»
Цена проекта отопления, канализации и водоснабжения: 31 989 руб. со скидкой 10%, проект котельной - бесплатно.
Проект котельной, отопления, водоснабжения и канализации выполнен: 04.09.2024
Состав проекта котельной, отопления, канализации и водоснабжения дома в дер. Алексеевка:
1. Пояснительная записка проекта, общие данные по системам отопления, канализации и водоснабжения дома 187 м.кв. в дер. Алексеевка.
2. Тепломеханическая схема котельной с размещением оборудования в отдельном помещении дома из газобетона.
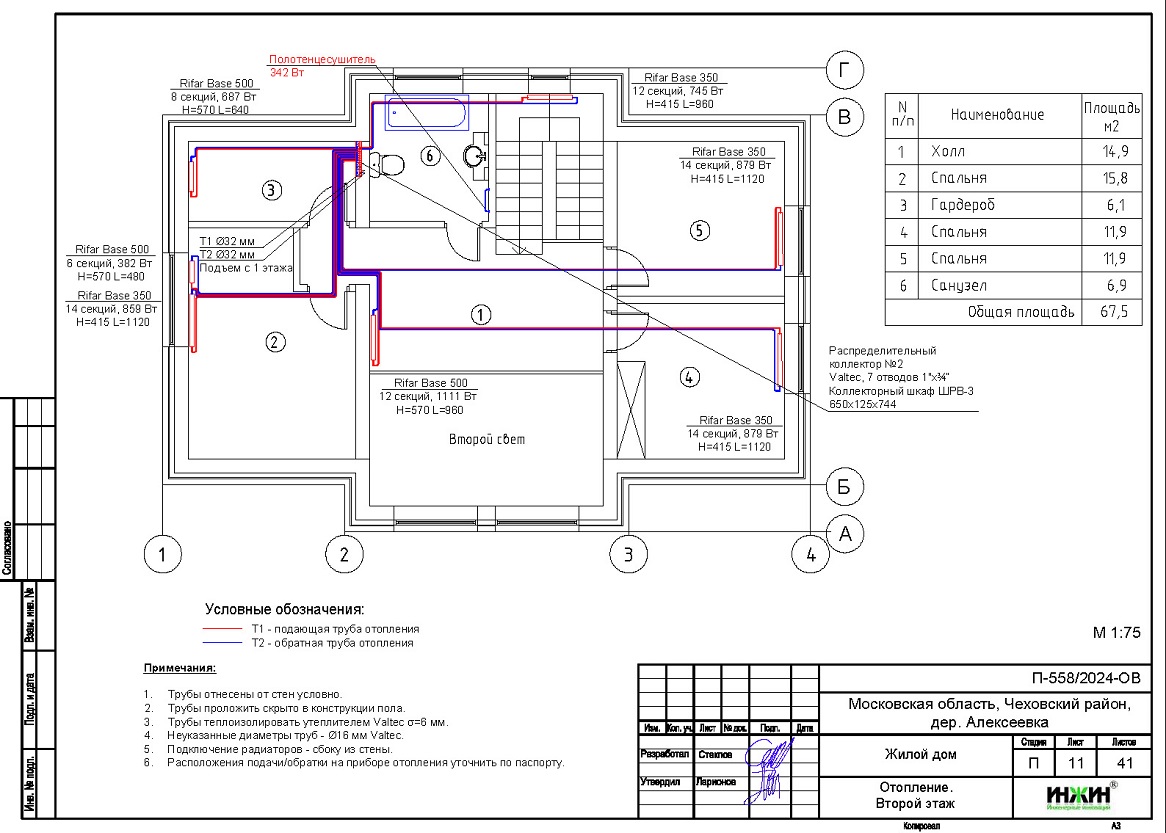
3. Комплект поэтажных чертежей радиаторного отопления дома в дер. Алексеевка.
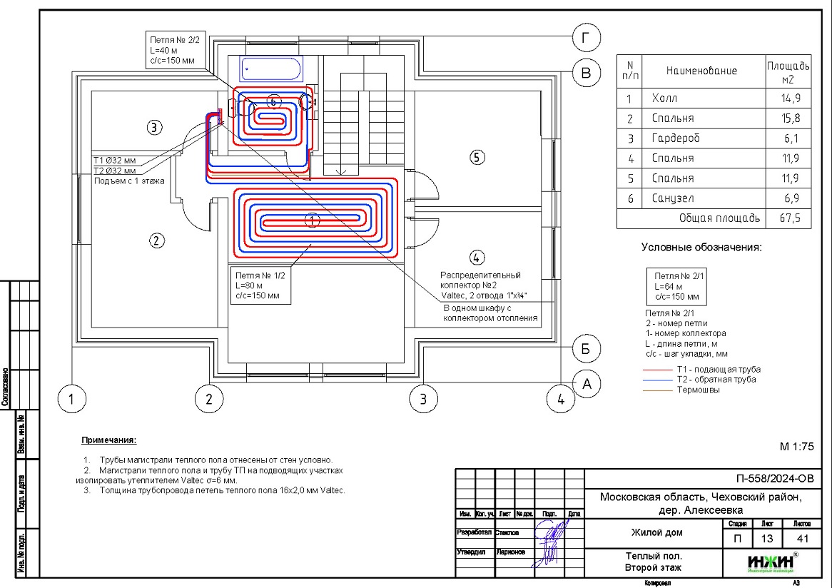
4. Комплект чертежей теплого пола на площади 30 м.кв.
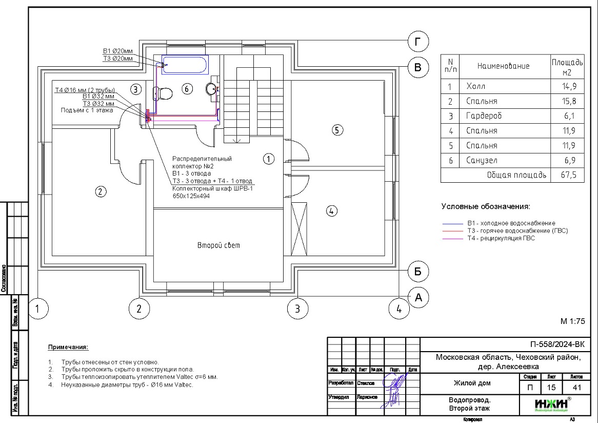
5. Комплект чертежей водоснабжения и канализации частного дома из полистиролбетона в дер. Алексеевка.
6. Типовые схемы системы отопления канализации и водоснабжения дома 187 м.кв.
7. Теплотехнический расчет отопления дома из газобетона.
8. Спецификация материалов и оборудования по котельной, отоплению, канализации и водоснабжению дома в дер. Алексеевка.
Объем проекта отопления, канализации и водоснабжения дома в дер. Алексеевка: 41 лист.
Описание проекта отопления, котельной, канализации и водоснабжения частного дома 187 м.кв. в дер. Алексеевка.
Котельная частного дома в дер. Алексеевка(проект котельной бесплатно).
o Размещена в отдельном помещении дома 187м.кв.;
o Теплогенератор - настенный газовый котел BAXI, мощностью 24 кВт;
o Контуры теплоснабжения котельной – радиаторное отопление дома, теплый пол и горячее водоснабжение, для которого предусмотрен накопительный бойлер STOUT, объемом 200 литров;
o Расширительные баки отопления и бойлера Flamco, объемом 25 и 18 литров, соответственно;
o Дымоудаление принудительное, дымоход коаксиальный, комплект для горизонтального прохода через стену, диаметр 60/100 мм;
o Распределительный коллектор - STOUT с насосными группами и встроенной гидрострелкой;
o Автоматика котельной – контроллер ZONT Climatic 1.2 со встроенным GSM-модулем.
Отопление дома в дер. Алексеевка (проект отопления дома).
o Выполнен теплотехнический расчет отопления дома из газобетона (утеплитель кровли - минвата 200мм) с учетом теплопотерь через ограждающие конструкции при наружной температуре -26°С для Московской области (по СП 131.13330.2020), расчетный расход тепла на отопление дома составил 13,86 кВт, удельные теплопотери 77,4 Вт/м.кв.;
o Подобраны приборы для отопления дома: секционные биметаллические радиаторы RIFAR BASE с боковым подключением и встроенные в пол конвектора Varmann с естественной конвекцией;
o Схема радиаторного отопления дома двухтрубная, коллекторно-лучевая, с принудительной циркуляцией теплоносителя и температурным графиком 80/60°С;
o Трубы отопления из металлопластика Valtec;
o Теплоизоляция трубопроводов отопления Valtec, толщиной 6мм;
o Теплоноситель в системе радиаторного отопления дома – подготовленная вода, предусмотрены средства защиты от образования накипи.
Водяной теплый пол дома в дер. Алексеевка(проект теплого пола).
o Водяной теплый пол в доме предусмотрен на площади 30 м.кв., коллекторы теплого пола Valtec на 2 и 5 отводов, всего 7 петель;
o Предусмотрен насосно-смесительный узел для теплоснабжения водяного теплого пола дома - в составе насосной группы;
o Трубопроводы теплого пола – сшитый полиэтилен Valtec;
o Регулирование температуры теплого пола - общее, регулятором на смесительной группе.
Внутренний водопровод дома в дер. Алексеевка(проект водоснабжения).
o Схема внутреннего водоснабжения дома – коллекторно-лучевая с рециркуляцией горячей воды через водяные полотенцесушители, выполнен расчет 22-х точек водоснабжения и полотенцесушителей;
o Трубопроводы системы водоснабжения – из металлопластика Valtec;
o Теплоизоляция трубопроводов Valtec, толщиной 6мм.
Внутренняя канализация (проект канализации) дома в дер. Алексеевка.
o Безнапорная, отвод стоков от санитарно-технических приборов предусмотрен в септик;
o Произведен расчет 11-ти точек бытовой канализации;
o Канализационные трубы Синикон, раструбные, из полипропилена.
Заказать в нашей компании проект отопления, водоснабжения и канализации загородного дома дистанционно со скидкой.
По этому проекту выполнен монтаж систем отопления, водоснабжения и канализации.






















