Выполненные проекты
Проект электрики дома 181 м.кв. в Балашихе
Объект: газобетонный общей площадью 181 м.кв., расположенный в г. Балашиха Московской области
Цена (стоимость) проекта электрики (электропроводки): 20 880 руб. со скидкой 10%, проект слаботочных кабельных линий - бесплатно.
Проект электрики выполнен: 18.10.2024
Состав проекта электрики дома в Балашихе:
1. Пояснительная записка. Общие данные по электроснабжению и освещению частного дома в Балашихе.
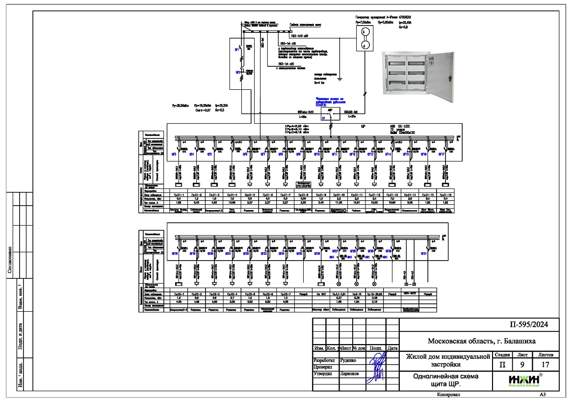
2. Однолинейные схемы вводного распределительного устройства и электрического распределительного щита дома 181 м.кв.
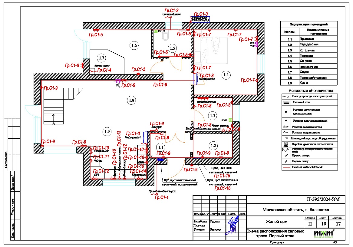
3. Чертежи электропроводки дома в Балашихе.
4. Чертежи групповых осветительных сетей дома в Балашихе.
5. Спецификация материалов и оборудования по электрике и электропроводке дома в Балашихе.
Объем проекта электрики дома 181 м.кв.: 17 листов.
Проект электрики дома площадью 181 м.кв. в Балашихе- подробное описание.
Расчетные показатели по электроснабжению и освещению дома в Балашихе.
o Расчетная электрическая мощность дома составила 19,28 кВт, с учетом коэффициента спроса 0,5, принятого согласно СП 256.1325800.2016;
o При расчете учтено силовое оборудование: септик, газовый котел, скважинный насос, кондиционеры.
Распределительные электрические щиты дома площадью 181 м.кв.
o Проектом предусмотрен один распределительный электрический щит, расположенный в прихожей;
o Автоматические выключатели, дифференциальные автоматы, рубильники и УЗО в щите – ABB, в количестве 31 шт. размещены во встраиваемом корпусе.
Силовая кабельная сеть (электропроводка) дома в Балашихе.
o Электропроводка дома предусмотрена с использованием кабелей ВВГ нг -LS с медными жилами в ПВХ-оболочке (не поддерживает горение);
o Общая протяженность линий электроснабжения и освещения – 990 метров, вводная кабельная линия - бронированный кабель 45 метров;
o Электропроводка предусмотрена скрытым способом, в конструкции пола и стен помещений;
o Запроектировано 135 точки подключения розеток и выключателей освещения в доме;
o Предусмотрены слаботочные линии телевидения и ЛВС, общая протяженность - 1300 метров.
Система резервного электропитания предусмотрена на базе однофазного инвертора CyberPower CPS 1000 PRO с АКБ.
Запроектировано применения технологии удобства - дистанционного открывания въездных ворот, калитки и включения освещения входной группы при помощи одного радиобрелка.



















