Выполненные проекты
Отопление дома в КП "Тишково Парк" (230 м.кв.), проект
Объект: двухэтажный дом из газобетона, площадью 230 м.кв., расположенный в КП "Тишково Парк", Пушкинского района Московской области
Вариант отопления: «Комфортный»
Цена проекта отопления, канализации и водоснабжения: 59 733 руб. со скидкой 10%, проект котельной - бесплатно.
Проект котельной, отопления, водоснабжения и канализации выполнен: 16.01.2025
Состав проекта котельной, отопления, канализации и водоснабжения дома в КП "Тишково Парк":
1. Пояснительная записка проекта, общие данные по системам отопления, канализации и водоснабжения дома 230 м.кв. в КП "Тишково Парк".
2. Тепломеханическая схема котельной с размещением оборудования в отдельном помещении дома из газобетона.
3. Комплект поэтажных чертежей радиаторного отопления дома в КП "Тишково Парк".
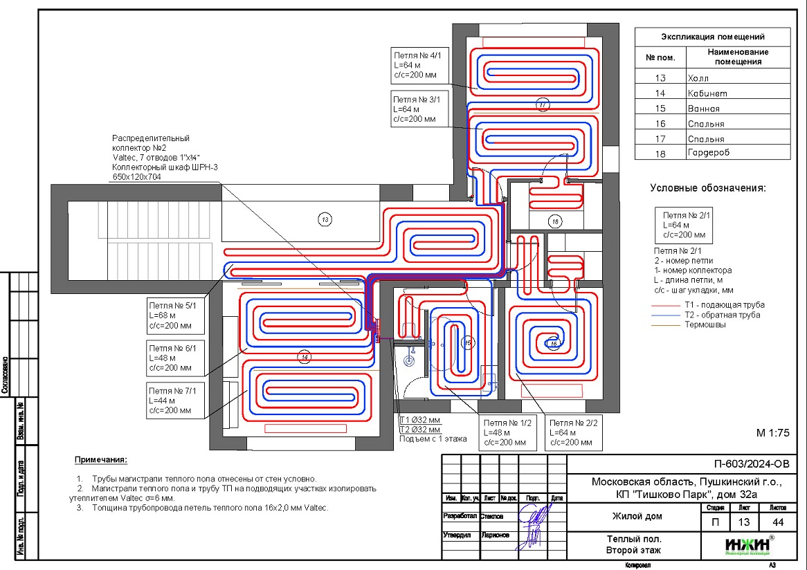
4. Комплект чертежей теплого пола на площади 200 м.кв.
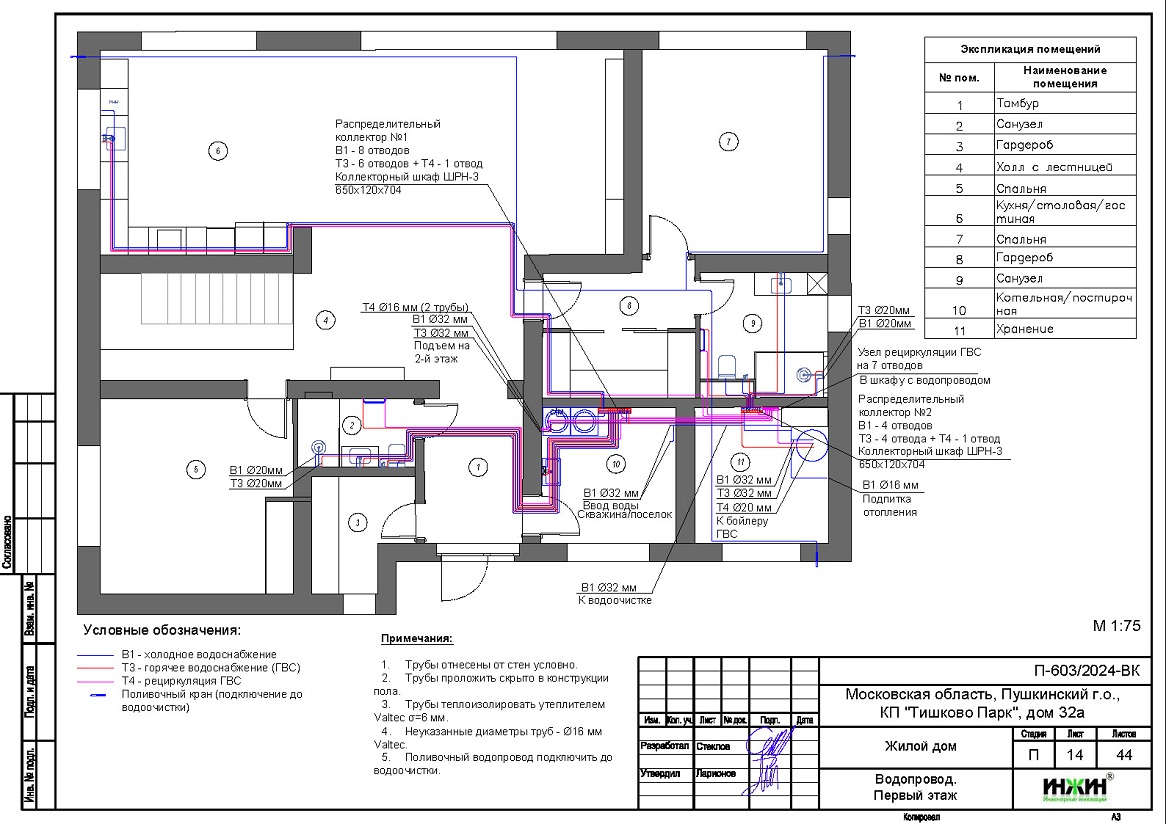
5. Комплект чертежей водоснабжения и канализации частного дома из газобетона в КП "Тишково Парк".
6. Типовые схемы системы отопления канализации и водоснабжения дома 230м.кв.
7. Теплотехнический расчет отопления дома из газобетона.
8. Спецификация материалов и оборудования по котельной, отоплению, канализации и водоснабжению дома в КП "Тишково Парк".
Объем проекта отопления, канализации и водоснабжения дома в КП "Тишково Парк": 44 листа.
Описание проекта отопления, котельной, канализации и водоснабжения частного дома 230 м.кв. в КП "Тишково Парк".
Котельная частного дома в КП "Тишково Парк"(проект котельной бесплатно).
o Размещена в отдельном помещении дома 230м.кв.;
o Теплогенератор - настенный газовый котел BAXI LUNA 3, мощностью 31 кВт;
o Контуры теплоснабжения котельной – радиаторное отопление дома, теплый пол (два контура) и горячее водоснабжение, для которого предусмотрен накопительный бойлер STOUT, объемом 300 литров;
o Расширительные баки отопления и бойлера Flamco, объемом 35 и 25 литров, соответственно;
o Дымоудаление естественное, дымоход коаксиальный, комплект горизонтального прохода через стену;
o Распределительный коллектор - STOUT с насосными группами и отдельной гидрострелкой;
o Автоматика котельной – контроллер ZONT Climatic 1.3 со встроенным GSM-модулем.
Отопление дома в КП "Тишково Парк" (проект отопления дома).
o Выполнен теплотехнический расчет отопления дома из газобетона (утеплитель кровли - ЭППС 150мм) с учетом теплопотерь через ограждающие конструкции при наружной температуре -26°С для Московской области (по СП 131.13330.2020), расчетный расход тепла на отопление дома составил 22,37 кВт, удельные теплопотери 90 Вт/м.кв.;
o Подобраны приборы для отопления дома: стальные панельные радиаторы Kermi и трубчатые дизайн-радиаторы RIFAR Tubog с нижним подключением, а также встроенные в пол конвекторы Varmann;
o Схема радиаторного отопления дома двухтрубная, коллекторно-лучевая, с принудительной циркуляцией теплоносителя и температурным графиком 80/60°С;
o Трубы отопления из сшитого полиэтилена Valtec;
o Теплоизоляция трубопроводов отопления Valtec, толщиной 6мм;
o Теплоноситель в системе радиаторного отопления дома – подготовленная вода, предусмотрены средства защиты от образования накипи.
Водяной теплый пол дома в КП "Тишково Парк"(проект теплого пола).
o Водяной теплый пол в доме предусмотрен на площади 200 м.кв., коллекторы теплого пола Valtec на 7 и 12 отводов, всего 19 петель;
o Предусмотрено два насосно-смесительных узла для теплоснабжения водяного теплого пола дома - в составе насосных групп котельной;
o Трубопроводы теплого пола – сшитый полиэтилен Valtec;
o Регулирование температуры теплого пола - общее, регулятором на смесительных группах.
Внутренний водопровод дома в КП "Тишково Парк"(проект водоснабжения).
o Схема внутреннего водоснабжения дома – коллекторно-лучевая с рециркуляцией горячей воды через водяные полотенцесушители, выполнен расчет 35-и точек водоснабжения и полотенцесушителей;
o Трубопроводы системы водоснабжения – из сшитого полиэтилена Valtec;
o Теплоизоляция трубопроводов Valtec, толщиной 6мм.
Внутренняя канализация (проект канализации) дома в КП "Тишково Парк".
o Безнапорная, отвод стоков от санитарно-технических приборов предусмотрен в поселковую сеть;
o Произведен расчет 15-ти точек бытовой канализации;
o Канализационные трубы Синикон, раструбные, из полипропилена.






















