Выполненные проекты
Проект электрики дома площадью 123 м.кв.
Объект: газобетонный общей площадью 123 м.кв., расположенный в КП «Андрейково Лайф», Дмитровского района Московской области
Цена (стоимость) проекта электрики (электропроводки): 16 052 руб. со скидкой 10%, проект слаботочных кабельных линий - бесплатно.
Проект электрики выполнен: 14.03.20254
Состав проекта электрики дома в КП «Андрейково Лайф»:
1. Пояснительная записка. Общие данные по электроснабжению и освещению частного дома в КП «Андрейково Лайф».
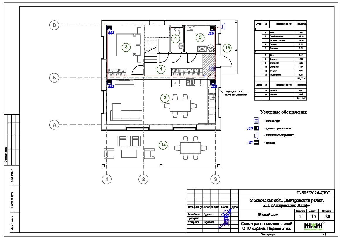
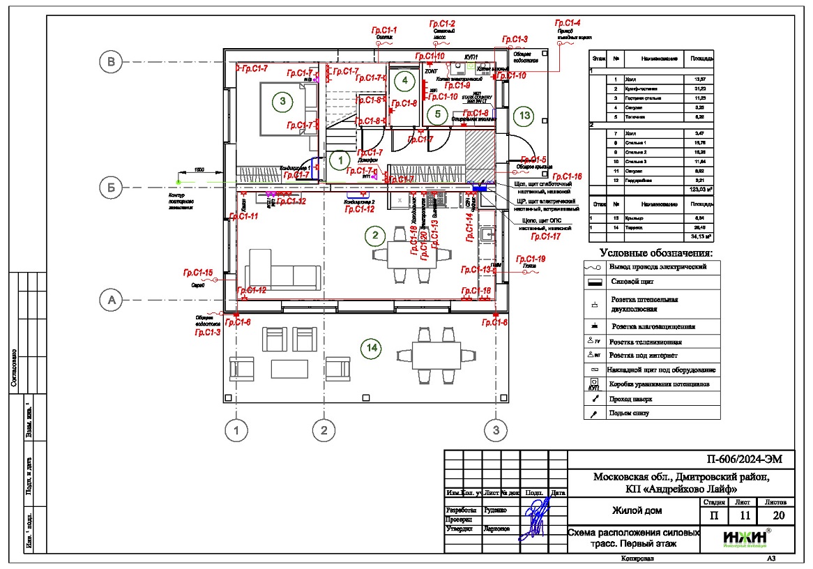
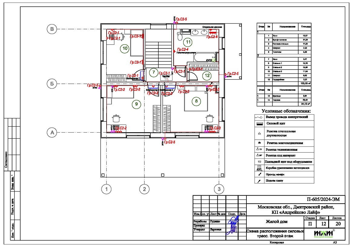
2. Однолинейные схемы вводного распределительного устройства и электрического распределительного щита дома 123 м.кв.
3. Чертежи электропроводки дома в КП «Андрейково Лайф».
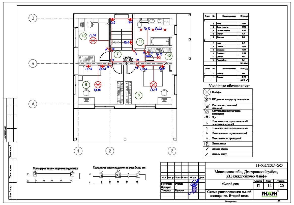
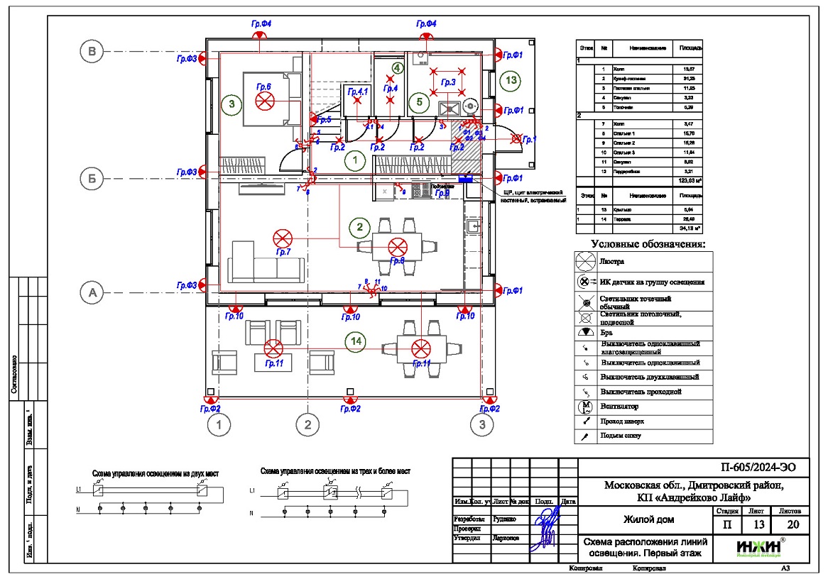
4. Чертежи групповых осветительных сетей дома в КП «Андрейково Лайф».
5. Спецификация материалов и оборудования по электрике и электропроводке дома в КП «Андрейково Лайф».
Объем проекта электрики дома 123 м.кв.: 20 листов.
Проект электрики дома площадью 123 м.кв. в КП «Андрейково Лайф»- подробное описание.
Расчетные показатели по электроснабжению и освещению дома в КП «Андрейково Лайф».
o Расчетная электрическая мощность дома составила 19,95 кВт, с учетом коэффициента спроса 0,48, принятого согласно СП 256.1325800.2016;
o При расчете учтено силовое оборудование: септик, газовый котел, электрический котел, скважинный насос, электрическая варочная поверхность.
Распределительные электрические щиты дома площадью 123 м.кв.
o Проектом предусмотрен один распределительный электрический щит, расположенный в прихожей;
o Автоматические выключатели, дифференциальные автоматы, рубильники и УЗО в щитах – ABB, в количестве 33 шт. размещены в пристраиваемом корпусе.
Силовая кабельная сеть (электропроводка) дома в КП «Андрейково Лайф».
o Электропроводка дома предусмотрена с использованием кабелей ВВГ нг -LS с медными жилами в ПВХ-оболочке (не поддерживает горение);
o Общая протяженность линий электроснабжения и освещения – 950 метров, вводная кабельная линия - бронированный кабель 95 метров;
o Электропроводка предусмотрена скрытым способом, в конструкции пола и стен помещений;
o Запроектировано 121 точки подключения розеток и выключателей освещения в доме;
o Предусмотрены слаботочные линии локальной вычислительной сети (ЛВС), общая протяженность - 750 метров.
Система резервного электропитания - с использованием инвертора CyberPower CPS 3500 PRO с АКБ.
Заказать проект электрики частного дома дистанционно.
Для этого дома в КП «Андрейково Лайф»выполнен проект отопления.



















