Выполненные проекты
Проект электрики дома из газобетона площадью 160 м.кв.
Объект: газобетонный дом общей площадью 160 м.кв., расположенный в КП «Еремеево Лайф», Истринского района Московской области
Цена (стоимость) проекта электрики (электропроводки): 20 880 руб. со скидкой 10%, проект слаботочных кабельных линий - бесплатно.
Проект электрики выполнен: 05.02.2025
Состав проекта электрики дома в КП «Еремеево Лайф»:
1. Пояснительная записка. Общие данные по электроснабжению и освещению частного дома в КП «Еремеево Лайф».
2. Однолинейные схемы вводного распределительного устройства и электрического распределительного щита дома 160 м.кв.
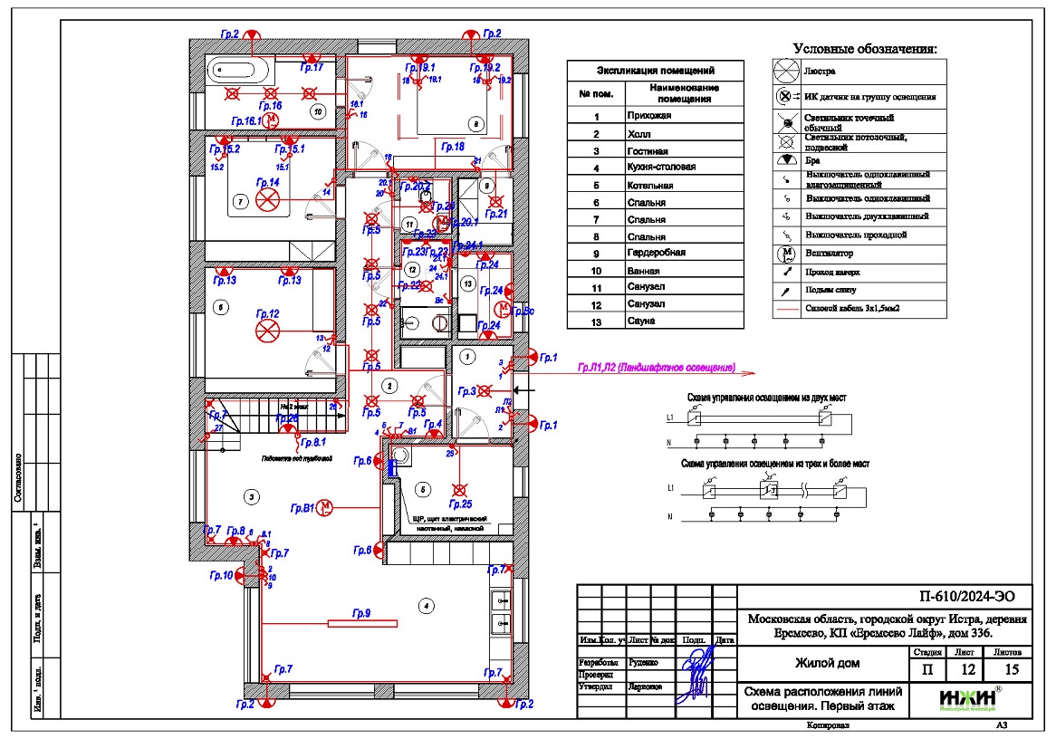
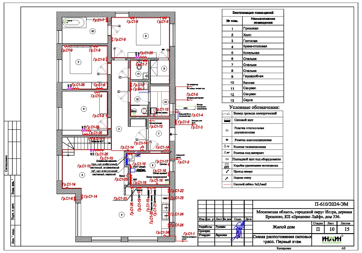
3. Чертежи электропроводки дома в КП «Еремеево Лайф».
4. Чертежи групповых осветительных сетей дома в КП «Еремеево Лайф».
5. Спецификация материалов и оборудования по электрике и электропроводке дома в КП «ЕремеевоЛайф».
Объем проекта электрики дома 160 м.кв.: 15 листов.
Проект электрики дома площадью 160 м.кв. в КП «ЕремеевоЛайф»- подробное описание.
Расчетные показатели по электроснабжению и освещению дома в КП «Еремеево Лайф».
o Расчетная электрическая мощность дома составила 28,16 кВт, с учетом коэффициента спроса 0,48, принятого согласно СП 256.1325800.2016;
o При расчете учтено силовое оборудование: септик, газовый котел, электрический котел, скважинный насос, электрическая варочная поверхность, зарядка электромобиля.
Распределительные электрические щиты дома площадью 160 м.кв.
o Проектом предусмотрен один распределительный электрический щит, расположенный в котельной;
o Автоматические выключатели, дифференциальные автоматы, рубильники и УЗО в щитах – ABB, в количестве 34 шт. размещены в пристраиваемом корпусе.
Силовая кабельная сеть (электропроводка) дома в КП «Еремеево Лайф».
o Электропроводка дома предусмотрена с использованием кабелей ВВГ нг -LS с медными жилами в ПВХ-оболочке (не поддерживает горение);
o Общая протяженность линий электроснабжения и освещения – 1 080 метров, вводная кабельная линия - бронированный кабель 55 метров;
o Электропроводка предусмотрена скрытым способом, в конструкции пола и стен помещений;
o Запроектировано 135 точки подключения розеток и выключателей освещения в доме;
o Предусмотрены слаботочные линии локальной вычислительной сети (ЛВС), общая протяженность - 290 метров.
Система резервного электропитания - с использованием инвертора CyberPower CPS 3500 PRO с АКБ.
Заказать проект электрики частного дома дистанционно.
Для этого дома в КП «Еремеево Лайф»выполнен проект отопления.



















