Выполненные проекты
Проект отопления дома 266 м.кв. в г.о. Истра
Объект: частный дом из газобетона, общей площадью 266 м.кв., расположенный в КП "Подмосковные просторы", г.о. Истра Московской области
Вариант отопления: «Комфортный»
Цена проекта отопления: 31 045 руб. со скидкой 10%, проект котельной - бесплатно.
Проект котельной, отопления выполнен: 31.01.2025
Состав проекта котельной, отопления дома в КП "Подмосковные просторы" (г.о. Истра):
1. Пояснительная записка проекта, общие данные по системам отопления и водоснабжения дома 266 м.кв. в КП "Подмосковные просторы" (г.о. Истра).
2. Тепломеханическая схема котельной с размещением оборудования в отдельном помещении дома из кирпича.
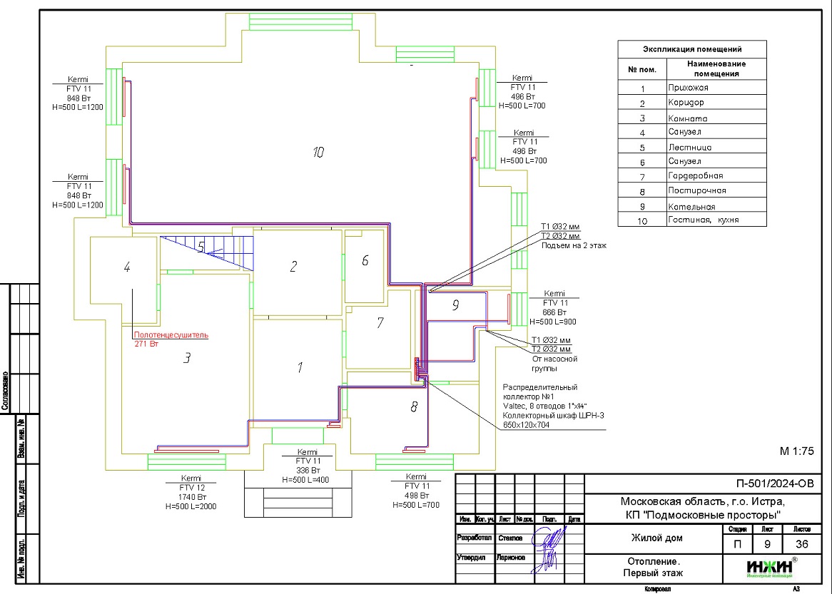
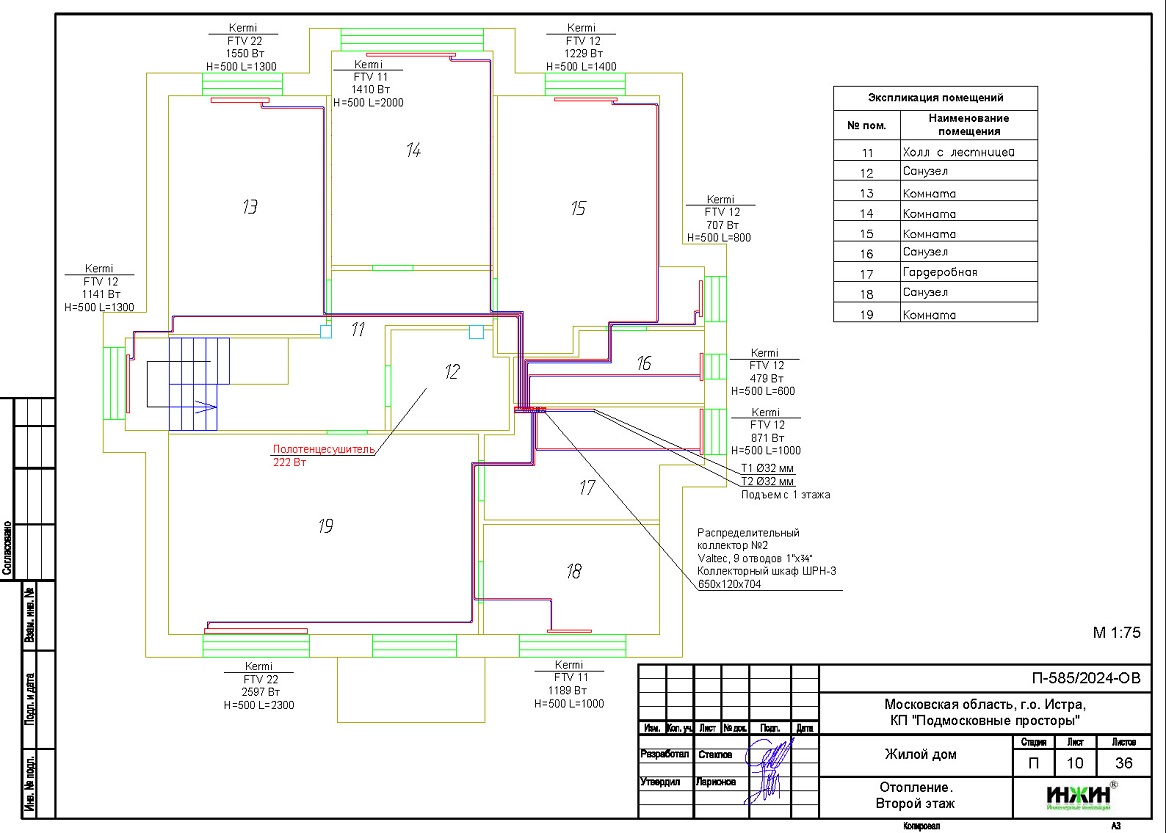
3. Комплект поэтажных чертежей радиаторного отопления дома в КП "Подмосковные просторы" (г.о. Истра).
4. Комплект чертежей теплого пола на площади 102 м.кв.
5. Типовые схемы системы отопления дома 266м.кв.
6. Теплотехнический расчет отопления дома из кирпича.
7. Спецификация материалов и оборудования по котельной и отоплению дома в КП "Подмосковные просторы" (г.о. Истра).
Объем проекта отопления дома в КП "Подмосковные просторы" (г.о. Истра): 37 листов.
Описание проекта отопления и котельной частного дома 266 м.кв. в КП "Подмосковные просторы" (г.о. Истра).
Котельная частного дома в КП "Подмосковные просторы" (г.о. Истра)(проект котельной бесплатно).
o Размещена в отдельном помещении дома 266м.кв.;
o Теплогенераторы - основной настенный газовый котел BAXI LUNA 3, мощностью 31 кВт, резервный - электрический котел Baxi Ampera, 9 кВт;
o Контуры теплоснабжения котельной – радиаторное отопление дома, теплый пол дома и горячее водоснабжение, для которого предусмотрен накопительный бойлер STOUT, объемом 200 литров;
o Расширительные баки отопления и бойлера Flamco, объемом 35 и 25 литров, соответственно;
o Дымоудаление принудительное (для основного котла), дымоход коаксиальный, через стену, диаметр 60/100 мм;
o Распределительный коллектор STOUT;
o Автоматика котельной – контроллер ZONT Climatic 1.2 со встроенным GSM-модулем.
Отопление дома в КП "Подмосковные просторы" (г.о. Истра) (проект отопления дома).
o Выполнен теплотехнический расчет отопления дома (утеплитель стен и кровли дома - каменная вата 100 и 200мм, соответственно) с учетом теплопотерь через ограждающие конструкции при наружной температуре -26°С для Москвы (по СП 131.13330.2012), расчетный расход тепла на отопление дома составил 22,78 кВт, удельные теплопотери 85,5 Вт/м.кв.;
o Подобраны приборы для отопления дома: стальные панельные радиаторы Kermi с нижним подключением;
o Схема радиаторного отопления дома двухтрубная, коллекторно-лучевая, с принудительной циркуляцией теплоносителя и температурным графиком 80/60°С;
o Трубы отопления из сшитого полиэтилена Valtec;
o Теплоизоляция трубопроводов отопления Valtec, толщиной 6мм;
o Теплоноситель в системе радиаторного отопления дома – подготовленная вода, предусмотрены средства защиты от образования накипи.
Водяной теплый пол дома в КП "Подмосковные просторы" (г.о. Истра) (проект теплого пола).
o Водяной теплый пол в доме предусмотрен на площади 102 м.кв., коллектор теплого пола Valtec на 12 отводов, всего 12 петель;
o Предусмотрен насосно-смесительный узел для теплоснабжения водяного теплого пола дома;
o Трубопроводы теплого пола из сшитого полиэтилена Valtec;
o Регулирование температуры теплого пола - общее, регулятором на смесительной группе.



















