Выполненные проекты
Проект электрики дома в Республике Башкортостан
Объект: газобетонный дом общей площадью 69 м.кв., расположенный в дер. Ибрагимово, Чишминского района, Республика Башкортостан
Цена (стоимость) проекта электрики (электропроводки): 9 005 руб. со скидкой 10%, проект слаботочных кабельных линий - бесплатно.
Проект электрики выполнен: 13.12.2024
Состав проекта электрики дома в дер. Ибрагимово (Республика Башкортостан):
1. Пояснительная записка. Общие данные по электроснабжению и освещению частного дома в дер. Ибрагимово (Республика Башкортостан).
2. Однолинейные схемы вводного распределительного устройства и электрического распределительного щита дома 69 м.кв.
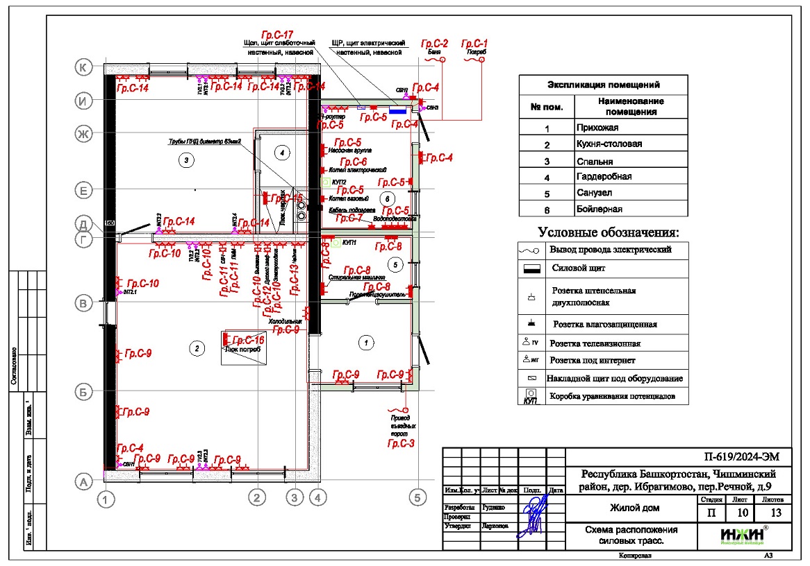
3. Чертежи электропроводки дома в дер. Ибрагимово (Республика Башкортостан).
4. Чертежи групповых осветительных сетей дома в дер. Ибрагимово (Республика Башкортостан).
5. Спецификация материалов и оборудования по электрике и электропроводке дома в дер. Ибрагимово (Республика Башкортостан).
Объем проекта электрики дома 69 м.кв.: 13 листов.
Проект электрики дома площадью 69 м.кв. в дер. Ибрагимово (Республика Башкортостан)- подробное описание.
Расчетные показатели по электроснабжению и освещению дома в д. Дятьково Брянской области.
o Расчетная электрическая мощность дома составила 22,78 кВт, с учетом коэффициента спроса 0,3, принятого согласно СП 256.1325800.2016;
o При расчете учтено силовое оборудование: септик, газовый котел, электрический котел.
Распределительные электрические щиты дома площадью 69 м.кв.
o Проектом предусмотрен один распределительный электрический щит, расположенный в техническом помещении котельной;
o Автоматические выключатели, дифференциальные автоматы, рубильники и УЗО в щите – ABB, в количестве 22 шт. размещены в пристраиваемом корпусе.
Силовая кабельная сеть (электропроводка) дома в дер. Ибрагимово (Республика Башкортостан).
o Электропроводка дома предусмотрена с использованием кабелей ВВГ нг -LS с медными жилами в ПВХ-оболочке (не поддерживает горение);
o Общая протяженность линий электроснабжения и освещения – 600 метров, вводная кабельная линия - бронированный кабель 130 метров;
o Электропроводка предусмотрена скрытым способом, в конструкции пола и стен помещений;
o Запроектировано 100 точек подключения розеток и выключателей освещения в доме;
o Предусмотрены слаботочные линии ЛВС и телевидения, общая протяженность - 280 метров.
Резервное электропитание не предусмотрено.
Заказать проект электрики частного дома дистанционно.
Для этого дома в Башкортостане выполнен проект отопления.
















