Выполненные проекты
Проект электрики газобетонного дома 121 м.кв.
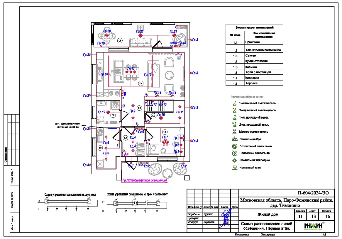
Объект: газобетонный дом общей площадью 121 м.кв., расположенный в дер. Тимонино Наро-Фоминского района Московской области
Цена (стоимость) проекта электрики (электропроводки): 15 790 руб. со скидкой 10%, проект слаботочных кабельных линий - бесплатно.
Проект электрики выполнен: 29.04.2025
Состав проекта электрики дома в дер. Тимонино:
1. Пояснительная записка. Общие данные по электроснабжению и освещению частного дома в дер. Тимонино.
2. Однолинейные схемы вводного распределительного устройства и электрического распределительного щита дома 121 м.кв.
3. Чертежи электропроводки дома в дер. Тимонино.
4. Чертежи групповых осветительных сетей дома в дер. Тимонино.
5. Спецификация материалов и оборудования по электрике и электропроводке дома в дер. Тимонино.
Объем проекта электрики дома 121 м.кв.: 16 листов.
Проект электрики дома площадью 121 м.кв. в дер. Тимонино- подробное описание.
Расчетные показатели по электроснабжению и освещению дома в дер. Тимонино.
o Расчетная электрическая мощность дома составила 15,08 кВт, с учетом коэффициента спроса 0,55, принятого согласно СП 256.1325800.2016;
o При расчете учтено силовое оборудование: септик, газовый котел, скважинный насос, кондиционеры.
Распределительные электрические щиты дома площадью 121 м.кв.
o Проектом предусмотрено два распределительных электрических щита, по одному на этаж;
o Автоматические выключатели, дифференциальные автоматы, рубильники и УЗО в щитах – ABB, в количестве 37 шт. размещены в пристраиваемом корпусе.
Силовая кабельная сеть (электропроводка) дома в дер. Тимонино.
o Электропроводка дома предусмотрена с использованием кабелей ВВГ нг -LS с медными жилами в ПВХ-оболочке (не поддерживает горение);
o Общая протяженность линий электроснабжения и освещения – 910 метров, вводная кабельная линия - бронированный кабель 60 метров;
o Электропроводка предусмотрена скрытым способом, в конструкции пола и стен помещений;
o Запроектировано 161 точка подключения розеток и выключателей освещения в доме;
o Предусмотрены слаботочные линии телевидения и ЛВС, общая протяженность - 220 метров.
Система резервного электропитания не предусмотрена.
Запроектировано применения технологии удобства - дистанционного открывания въездных ворот, калитки и включения освещения входной группы при помощи одного радиобрелка.
Заказать проект электрики частного дома дистанционно.
Для этого дома в дер. Тимониновыполнен проект отопления.



















