Выполненные проекты
Проект электрики таунхауса площадью 100 м.кв.
Объект: таунхаус (3 этажа) общей площадью 100 м.кв., расположенный в КП "Кембридж", г.о. Истра Московской области
Цена (стоимость) проекта электрики (электропроводки): 13 050 руб. со скидкой 10%, проект слаботочных кабельных линий - бесплатно.
Проект электрики таунхауса в КП "Кембридж" выполнен: 03.04.2025
Состав проекта электрики таунхаус в КП "Кембридж":
1. Пояснительная записка. Общие данные по электроснабжению и освещению таунхауса в КП "Кембридж".
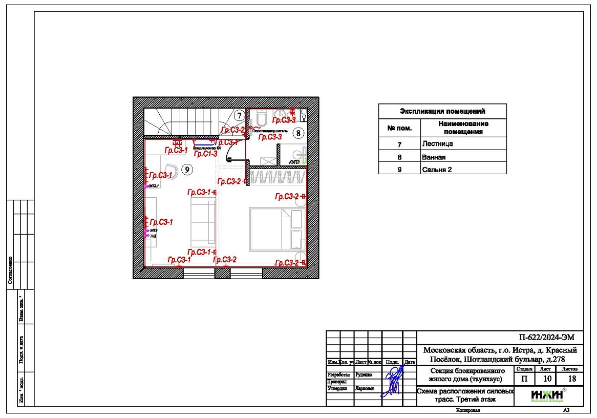
2. Однолинейные схемы вводного распределительного устройства и электрического распределительного щита таунхауса 100 м.кв.
3. Чертежи электропроводки таунхауса в КП "Кембридж".
4. Чертежи групповых осветительных сетей таунхауса в КП "Кембридж".
5. Спецификация материалов и оборудования по электрике и электропроводке таунхауса в КП "Кембридж".
Объем проекта электрики таунхауса 100 м.кв.: 18 листов.
Проект электрики таунхауса площадью 100 м.кв. в КП "Кембридж"- подробное описание.
Расчетные показатели по электроснабжению и освещению таунхауса в КП "Кембридж".
o Расчетная электрическая мощность дома составила 6,88 кВт, с учетом коэффициента спроса 0,35, принятого согласно СП 256.1325800.2016;
o При расчете учтено силовое оборудование: газовый котел, кондиционеры, электрические полотенцесушители.
Распределительные электрические щиты таунхауса площадью 100 м.кв.
o Проектом предусмотрен распределительный электрический щит, размещенный в прихожей;
o Автоматические выключатели, дифференциальные автоматы, рубильники и УЗО в щите – ABB, в количестве 19 шт. размещены во встраиваемом корпусе.
Силовая кабельная сеть (электропроводка) таунхауса в КП "Кембридж".
o Электропроводка таунхауса предусмотрена с использованием кабелей ВВГ нг -LS с медными жилами в ПВХ-оболочке (не поддерживает горение);
o Общая протяженность линий электроснабжения и освещения – 970 метров;
o Электропроводка предусмотрена скрытым способом, в защитной гофрированной ПВХ-трубе (усиленной конструкции) и металлорукаве в виниловой оболочке (в стропильной системе кровли);
o Запроектировано 105 точек подключения розеток и выключателей освещения в доме;
o Предусмотрены слаботочные телевидения, общая протяженность - 550 метров.
Система резервного электропитания не предусмотрена.
Заказать проект электрики таунхауса дистанционно.
Для этого таунхауса в КП "Кембридж" выполнен проект отопления, водоснабжения и канализации.



















