Выполненные проекты
Электрика каркасного дома в с. Тарасовка, проект
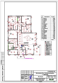
Объект: частный каркасный дом, площадью 167 м.кв., расположенный в с. Тарасовка Московской области
Цена (стоимость) проекта электрики (электропроводки): 21 794 руб. со скидкой 10%, проект слаботочных кабельных линий - бесплатно.
Проект электрики выполнен: 10.03.2025
Состав проекта электрики дома в Тарасовке:
1. Пояснительная записка. Общие данные по электроснабжению и освещению частного дома в Тарасовке.
2. Однолинейные схемы вводного распределительного устройства и электрического распределительного щита дома 167 м.кв.
3. Чертежи электропроводки дома в Тарасовке.
4. Чертежи групповых осветительных сетей дома в Тарасовке.
5. Спецификация материалов и оборудования по электрике и электропроводке дома в Тарасовке.
Объем проекта электрики дома 167 м.кв.: 13 листов.
Проект электрики дома площадью 167м.кв. в Тарасовке- подробное описание.
Расчетные показатели по электроснабжению и освещению дома в Тарасовке.
o Расчетная электрическая мощность дома составила 36,48 кВт, с учетом коэффициента спроса 0,5, принятого согласно СП 256.1325800.2016;
o При расчете учтено силовое оборудование: септик, газовый котел, электрический котёл, скважинный насос, кондиционеры, сауна, бассейн.
Распределительные электрические щиты дома площадью 167 м.кв.
o Проектом предусмотрен один распределительных электрический щит, расположенный в прихожей;
o Автоматические выключатели, дифференциальные автоматы, рубильники и УЗО в щите – ABB, в количестве 39 шт. размещены во встраиваемом корпусе.
Силовая кабельная сеть (электропроводка) дома в Тарасовке.
o Электропроводка дома предусмотрена с использованием кабелей ВВГ нг -LS с медными жилами в ПВХ-оболочке (не поддерживает горение);
o Общая протяженность линий электроснабжения и освещения – 1670 метров, вводная кабельная линия - бронированный кабель 160 метров;
o Электропроводка предусмотрена скрытым способом, в конструкции пола и стен помещений;
o Запроектировано 152 точки подключения розеток и выключателей освещения в доме;
o Предусмотрены слаботочные линии телевидения ЛВС, общая протяженность - 100 метров.
Система резервного электропитания предусмотрена с бензиновым генератором A-IPOWER A9000EAX.
Запроектировано применение технологии удобства - дистанционного открывания въездных ворот, калитки и включения освещения входной группы при помощи одного радиобрелка.
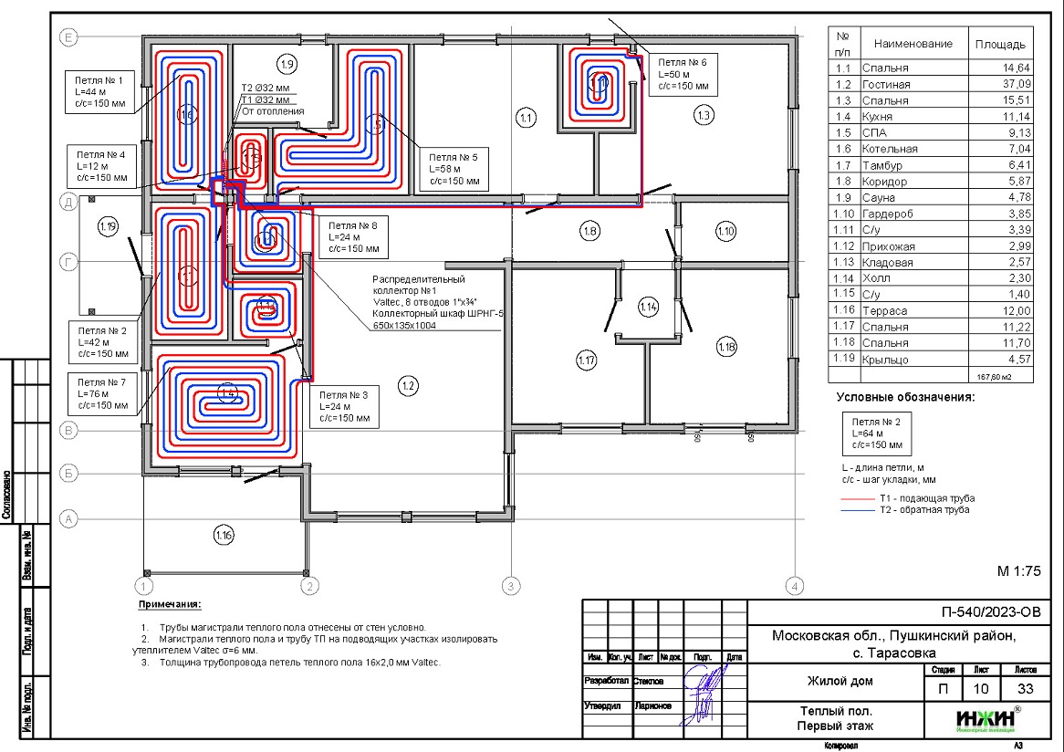
Для этого дома в Тарасовке выполнен проект отопления.
















