Выполненные проекты
Электрика газобетонного дома в Барвихе, проект (780 м.кв.)
Объект: газобетонный дом общей площадью 780 м.кв., расположенный в д. Барвиха, Одинцовского г.о, Московской области (ДПК "Новь")
Цена (стоимость) проекта электрики (электропроводки): 101 790 руб. со скидкой 10%, проект слаботочных кабельных линий - бесплатно.
Проект электрики выполнен: 28.07.2025
Состав проекта электрики дома в Барвихе:
1. Пояснительная записка. Общие данные по электроснабжению и освещению частного дома в Барвихе.
2. Однолинейные схемы вводного распределительного устройства и электрического распределительного щита дома 780 м.кв.
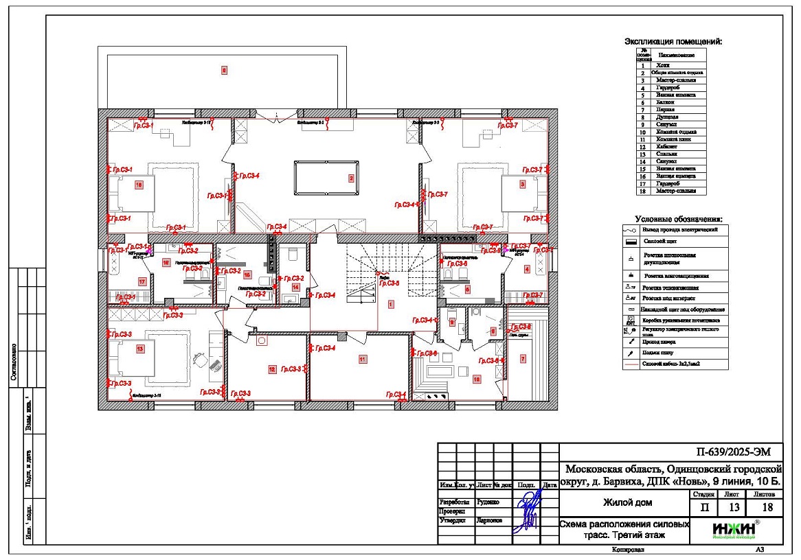
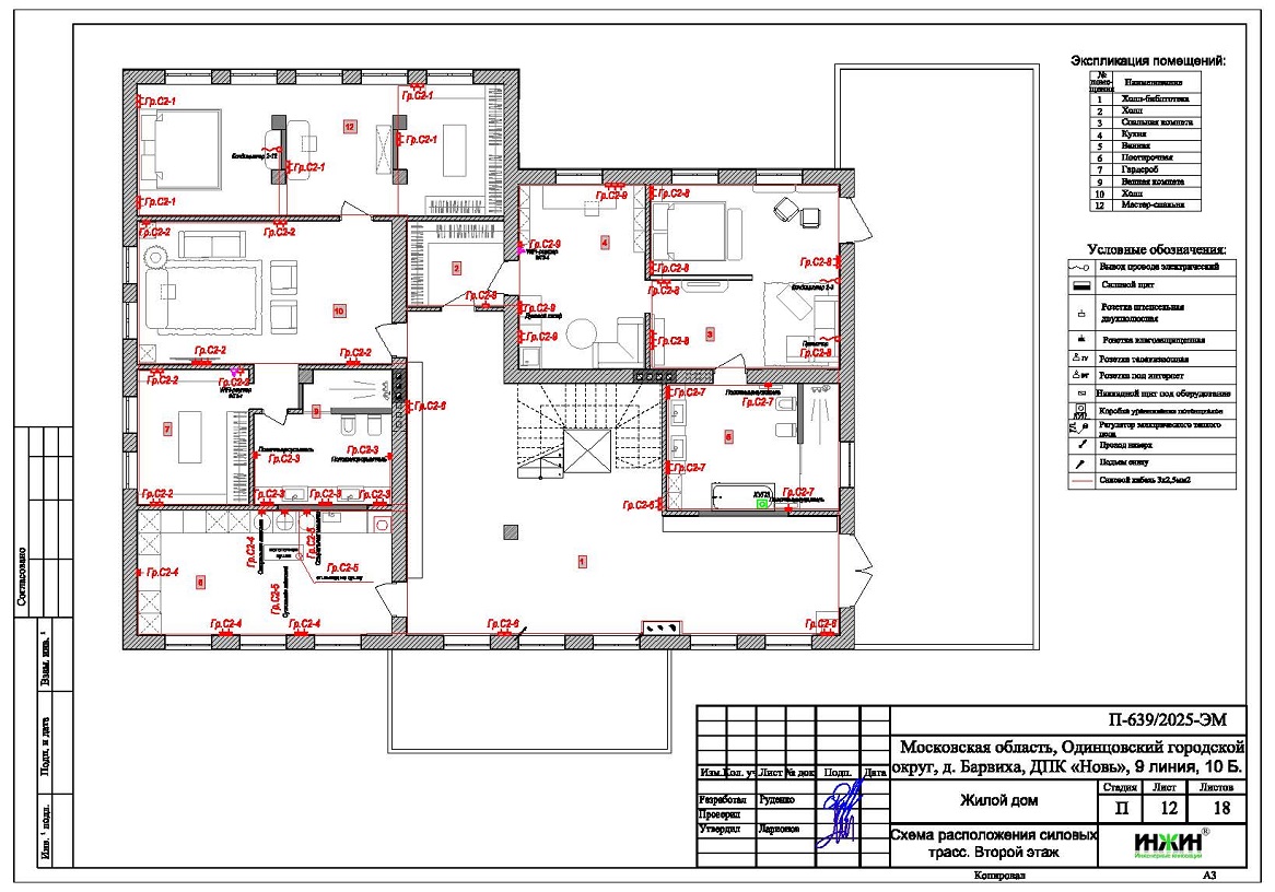
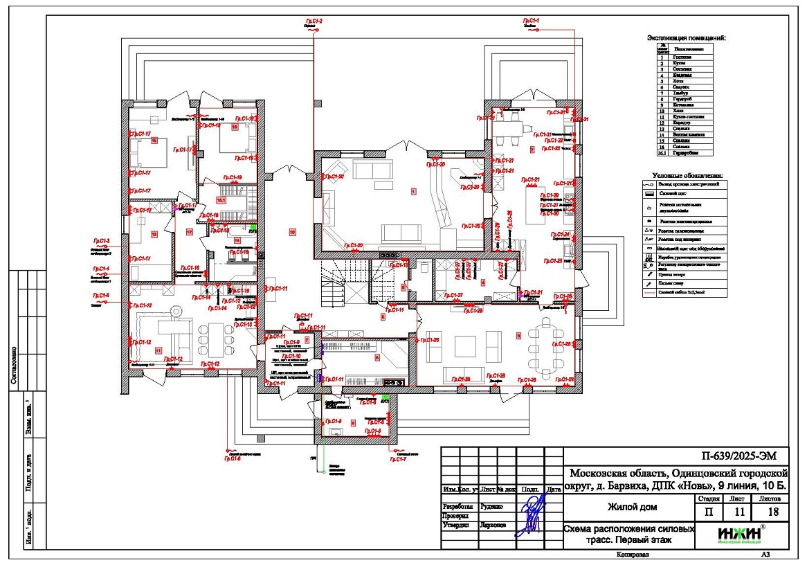
3. Чертежи электропроводки дома в Барвихе.
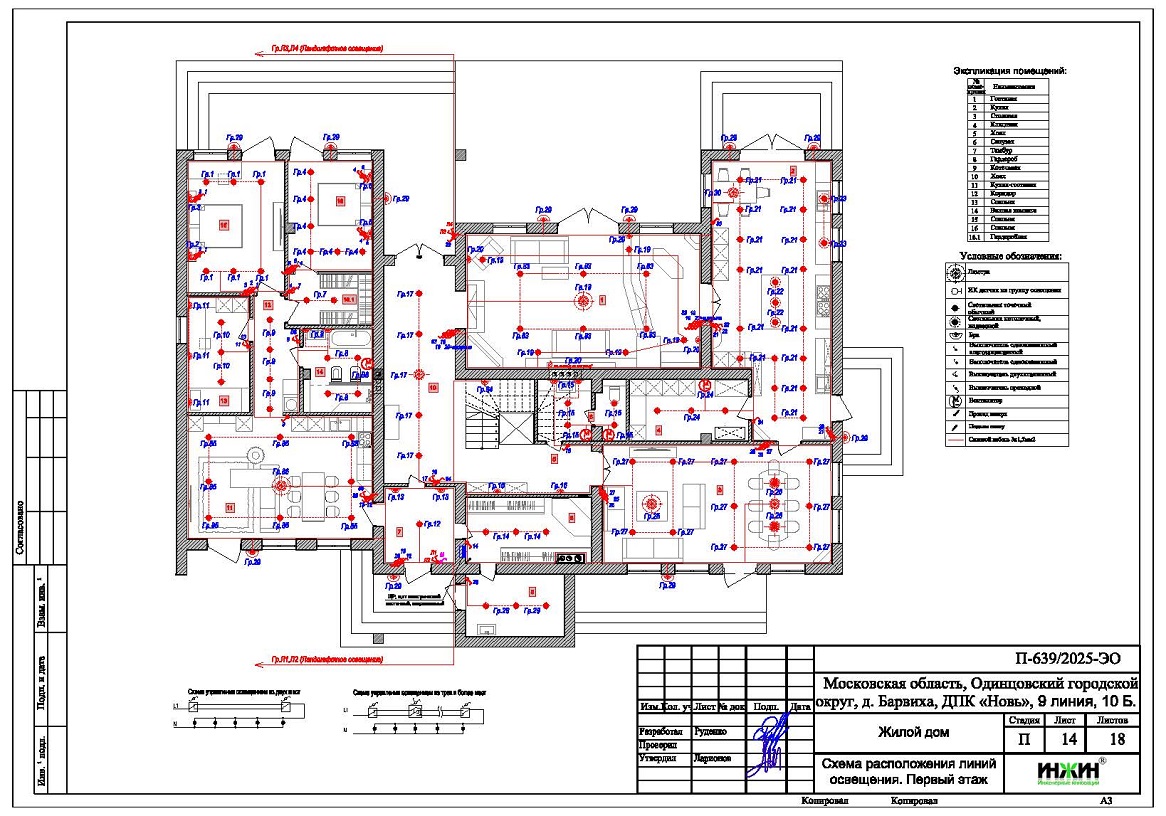
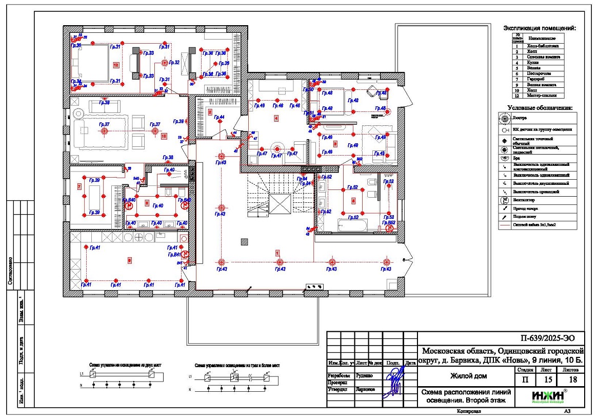
4. Чертежи групповых осветительных сетей дома в Барвихе.
5. Спецификация материалов и оборудования по электрике и электропроводке дома в Барвихе.
Объем проекта электрики дома 780 м.кв.: 18 листов.
Проект электрики дома площадью 780м.кв. в Барвихе- подробное описание.
Расчетные показатели по электроснабжению и освещению дома в Барвихе.
o Расчетная электрическая мощность дома составила 40,11 кВт, с учетом коэффициента спроса 0,45, принятого согласно СП 256.1325800.2016;
o При расчете учтено силовое оборудование: электроплита, септик, газовый котел, скважинный насос, кондиционеры, обогрев крыльца и дорожек.
Распределительные электрические щиты дома площадью 780 м.кв.
o Проектом предусмотрен один распределительный электрический щит, расположенный в прихожей;
o Автоматические выключатели, дифференциальные автоматы, рубильники и УЗО в щите – ABB, в количестве 64 шт. размещены во встраиваемом корпусе.
Силовая кабельная сеть (электропроводка) дома в Барвихе.
o Электропроводка дома предусмотрена с использованием кабелей ВВГ нг -LS с медными жилами в ПВХ-оболочке (не поддерживает горение);
o Общая протяженность линий электроснабжения и освещения – 3300 метров, вводная кабельная линия - бронированный кабель 130 метров;
o Электропроводка предусмотрена скрытым способом, в конструкции пола и стен помещений;
o Запроектировано 437 точек подключения розеток и выключателей освещения в доме;
o Предусмотрены слаботочные линии телевидения ЛВС, общая протяженность - 605 метров.
Система резервного электропитания предусмотрена с бензиновым генератором (по выбору Заказчика).



















