Выполненные проекты
Проект отопления частной бани в Дединово
Объект: частная баня из газобетона, общей площадью 220 м.кв., расположенная в с. Дединово Луховицкого района Московской области
Вариант отопления: «Комфортный»
Цена проекта отопления, канализации и водоснабжения: 47 898 руб. со скидкой 10%, проект котельной - бесплатно.
Проект котельной, отопления, водоснабжения и канализации выполнен: 04.08.2025
Состав проекта котельной, отопления, канализации и водоснабжения бани в с. Дединово:
1. Пояснительная записка проекта, общие данные по системам отопления, канализации и водоснабжения бани 220 м.кв. в с. Дединово.
2. Тепломеханическая схема котельной с размещением оборудования в отдельном помещении основного дома (модернизация существующей котельной).
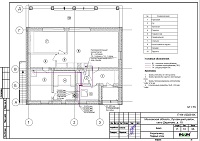
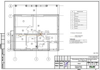
3. Комплект поэтажных чертежей радиаторного отопления бани в с. Дединово.
4. Комплект чертежей теплого пола на площади 63 м.кв.
5. Комплект чертежей водоснабжения и канализации бани из газобетона в с. Дединово.
6. Типовые схемы системы отопления канализации и водоснабжения бани 220 м.кв.
7. Теплотехнический расчет отопления дома из газобетона.
8. Спецификация материалов и оборудования по котельной, отоплению, канализации и водоснабжению бани в с. Дединово.
Объем проекта отопления, канализации и водоснабжения бани в с. Дединово: 36 листов.
Описание проекта отопления, котельной, канализации и водоснабжения бани 220 м.кв. в с. Дединово.
Котельная частной бани в с. Дединово(проект котельной бесплатно).
o Размещена в отдельном помещении основного дома, проект отопления которого выполнен в 2023 году;
o Предусмотрена модернизация существующей котельной - добавлен контур теплоснабжения бани;
o Автоматика котельной -существующий контроллер ZONT Climatic 1.3 дополнен блоком расширения EX-77.
Отопление бани в с. Дединово (проект отопления бани).
o Выполнен теплотехнический расчет отопления бани (утеплитель кровли - минеральная вата 150мм) с учетом теплопотерь через ограждающие конструкции при наружной температуре -26°С для Московской области (по СП 131.13330.2020), расчетный расход тепла на отопление бани составил 19,4 кВт, удельные теплопотери 92,2 Вт/м.кв.;
o Подобраны приборы для отопления бани: стальные панельные радиаторы Kermi с нижним подключением;
o Схема радиаторного отопления бани двухтрубная, коллекторно-лучевая, с принудительной циркуляцией теплоносителя и температурным графиком 80/60°С;
o Трубы отопления из сшитого полиэтилена Valtec;
o Теплоизоляция трубопроводов отопления Valtec, толщиной 6мм;
o Теплоноситель в системе радиаторного отопления бани – незамерзающая жидкость.
Водяной теплый пол бани в с. Дединово (проект теплого пола).
o Водяной теплый пол в бане предусмотрен на площади 63 м.кв., коллектор теплого пола Valtec на 8 отводов (всего 8 петель);
o Предусмотрен насосно-смесительный узел для теплоснабжения водяного теплого пола бани (на контуре отопления);
o Трубопроводы теплого пола – сшитый полиэтилен Valtec;
o Регулирование температуры теплого пола - общее, регулятором на смесительной группе.
Внутренний водопровод бани в с. Дединово (проект водоснабжения).
o Схема внутреннего водоснабжения бани – коллекторно-лучевая с рециркуляцией горячей воды через водяные полотенцесушители и коллекторы, выполнен расчет 14-и точек водоснабжения и полотенцесушителей;
o Трубопроводы системы водоснабжения – из сшитого полиэтилена Valtec;
o Теплоизоляция трубопроводов Valtec, толщиной 6мм.
Внутренняя канализация (проект канализации) бани в с. Дединово.
o Безнапорная, отвод стоков от санитарно-технических приборов предусмотрен в септик;
o Произведен расчет 8-и точек бытовой канализации;
o Канализационные трубы Синикон, раструбные.



















