Выполненные проекты
Проект электрики газоблочного дома в СНТ «Кубасово»
Объект: газобетонный дом общей площадью 153 м.кв., расположенный в СНТ «Кубасово» Ступинского района Московской области
Цена (стоимость) проекта электрики (электропроводки): 19 967 руб. со скидкой 10%, проект слаботочных кабельных линий - бесплатно.
Проект электрики выполнен: 15.04.2026
Состав проекта электрики дома в СНТ «Кубасово»:
1. Пояснительная записка. Общие данные по электроснабжению и освещению частного дома в СНТ «Кубасово».
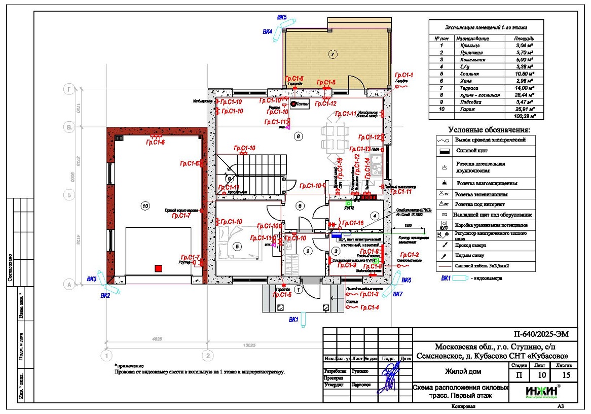
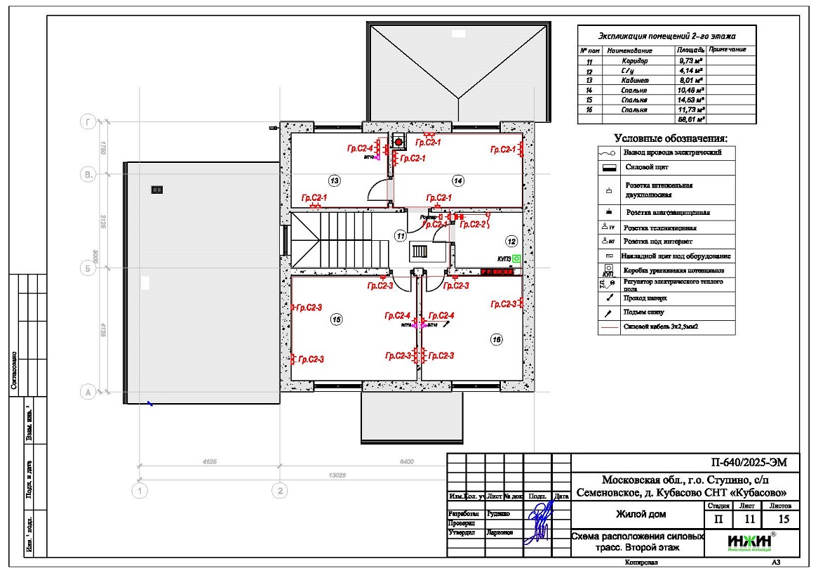
2. Однолинейные схемы вводного распределительного устройства и электрического распределительного щита дома 153 м.кв.
3. Чертежи электропроводки дома в СНТ «Кубасово».
4. Чертежи групповых осветительных сетей дома в СНТ «Кубасово».
5. Спецификация материалов и оборудования по электрике и электропроводке дома в СНТ «Кубасово».
Объем проекта электрики дома 153 м.кв.: 15 листов.
Проект электрики дома площадью 153 м.кв. в СНТ «Кубасово»- подробное описание.
Расчетные показатели по электроснабжению и освещению дома в СНТ «Кубасово».
o Расчетная электрическая мощность дома составила 14,49 кВт, с учетом коэффициента спроса 0,65, принятого согласно СП 256.1325800.2016;
o При расчете учтено силовое оборудование: септик, газовый котел, скважинный насос, кондиционеры.
Распределительные электрические щиты дома площадью 153 м.кв.
o Проектом предусмотрен один распределительный электрический щит, расположенный в техническом помещении;
o Автоматические выключатели, дифференциальные автоматы, рубильники и УЗО в щите – ABB, в количестве 34 шт. размещены в пристраиваемом корпусе.
Силовая кабельная сеть (электропроводка) дома в СНТ «Кубасово».
o Электропроводка дома предусмотрена с использованием кабелей ВВГ нг -LS с медными жилами в ПВХ-оболочке (не поддерживает горение);
o Общая протяженность линий электроснабжения и освещения – 1015 метров, вводная кабельная линия - бронированный кабель 100 метров;
o Электропроводка предусмотрена скрытым способом, в конструкции пола, потолка и стен помещений;
o Запроектировано 123 точки подключения розеток и выключателей освещения в доме;
o Предусмотрены слаботочные линии ЛВС, общая протяженность - 165 метров.
Система резервного электропитания предусмотрена, с использованием бензогенератора.



















