Выполненные проекты
Проект электрики бани из бруса в СНТ «Март»
Объект: баня из бруса общей площадью 100 м.кв., 150 м.кв., расположенная в СНТ «Март» Одинцовского района Московской области
Цена (стоимость) проекта электрики (электропроводки): 19 575 руб. со скидкой 10%, проект слаботочных кабельных линий - бесплатно.
Проект электрики выполнен: 20.10.2025
Состав проекта электрики бани в СНТ «Март»:
1. Пояснительная записка. Общие данные по электроснабжению и освещению частной бани в СНТ «Март».
2. Однолинейные схемы вводного распределительного устройства и электрического распределительного щита частной бани 150 м.кв.
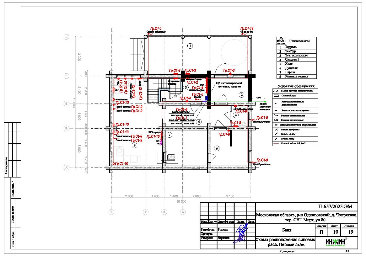
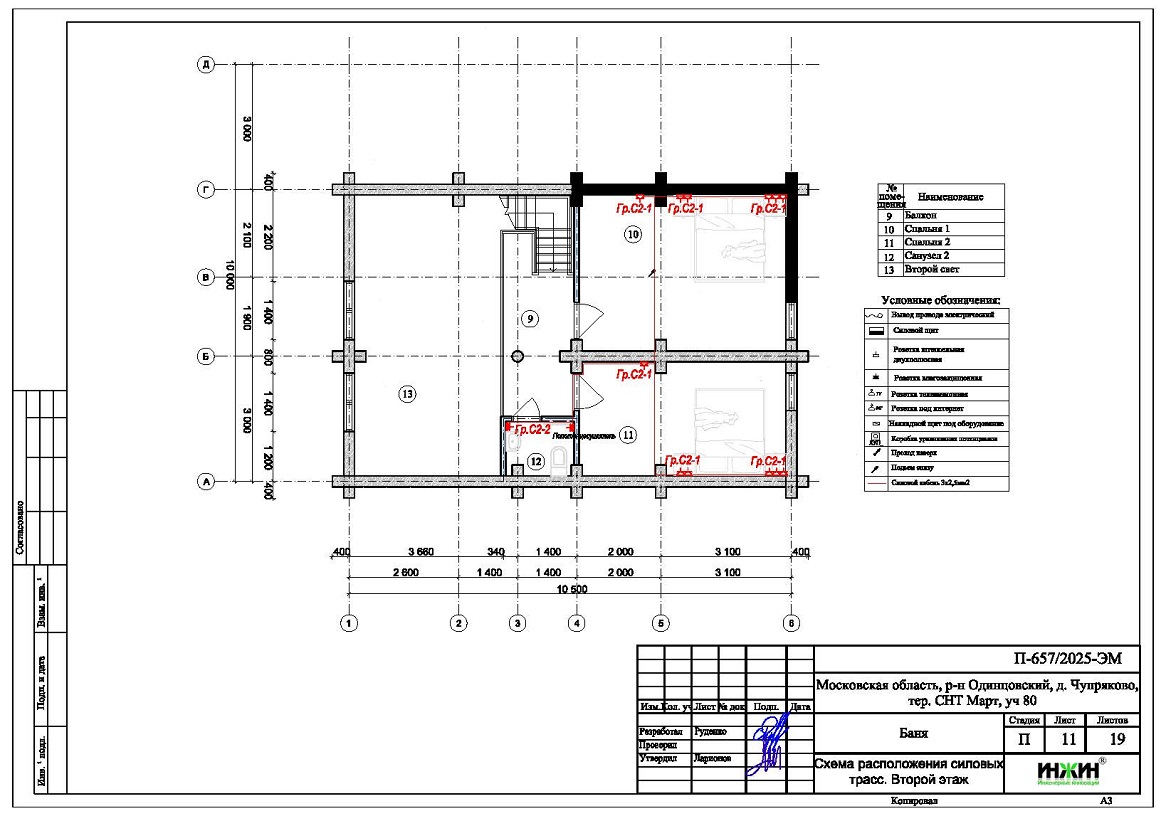
3. Чертежи электропроводки частной бани в СНТ «Март»».
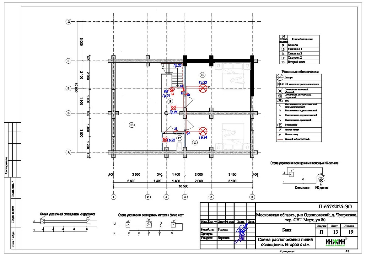
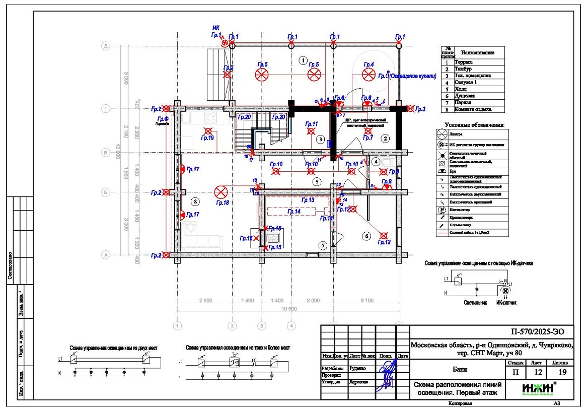
4. Чертежи групповых осветительных сетей бани в СНТ «Март».
5. Спецификация материалов и оборудования по электрике и электропроводке бани в СНТ «Март».
Объем проекта электрики бани 150 м.кв.: 19 листов.
Проект электрики баниплощадью 150 м.кв. в СНТ «Март»- подробное описание.
Расчетные показатели по электроснабжению и освещению бани в СНТ «Март».
o Расчетная электрическая мощность дома составила 10,27 кВт, с учетом коэффициента спроса 0,5, принятого согласно СП 256.1325800.2016;
o При расчете учтено силовое оборудование: септик, электроплита, скважинный насос.
Распределительные электрические щиты баниплощадью 150 м.кв.
o Проектом предусмотрен один распределительный электрический щит, расположенный в котельной;
o Автоматические выключатели, дифференциальные автоматы, рубильники и УЗО в щитах – ABB, в количестве 22 шт. размещены в пристраиваемом корпусе.
Силовая кабельная сеть (электропроводка) бани в СНТ «Март».
o Электропроводка дома предусмотрена с использованием декоративных кабелей Salvador с медными жилами;
o Общая протяженность линий электроснабжения и освещения – 510 метров, вводная кабельная линия - бронированный кабель 20 метров;
o Электропроводка предусмотрена открытым способом, по стенам помещений;
o Запроектировано 65 точек подключения розеток и выключателей освещения в доме;
o Предусмотрены слаботочные линии телевидения, общая протяженность - 325 метров.
Система резервного электропитания не предусмотрена.



















