Выполненные проекты
Проект отопления дома в Москве (269 м.кв.)
Объект: одноэтажный дом из газобетона, площадью 269 м.кв., расположенный в Москве
Вариант отопления: «Комфортный»
Цена проекта отопления, канализации и водоснабжения: 85 348 руб. со скидкой 10%, проект котельной - бесплатно.
Проект котельной, отопления, водоснабжения и канализации выполнен: 14.10.2025
Состав проекта котельной, отопления, канализации и водоснабжения дома в Москве:
1. Пояснительная записка проекта, общие данные по системам отопления, канализации и водоснабжения дома 269 м.кв. в Москве.
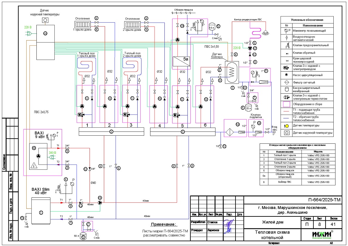
2. Тепломеханическая схема котельной с размещением оборудования в отдельном помещении дома из газобетона.
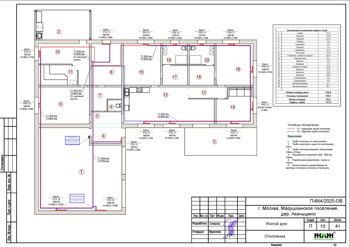
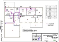
3. Комплект поэтажных чертежей радиаторного отопления дома в Москве.
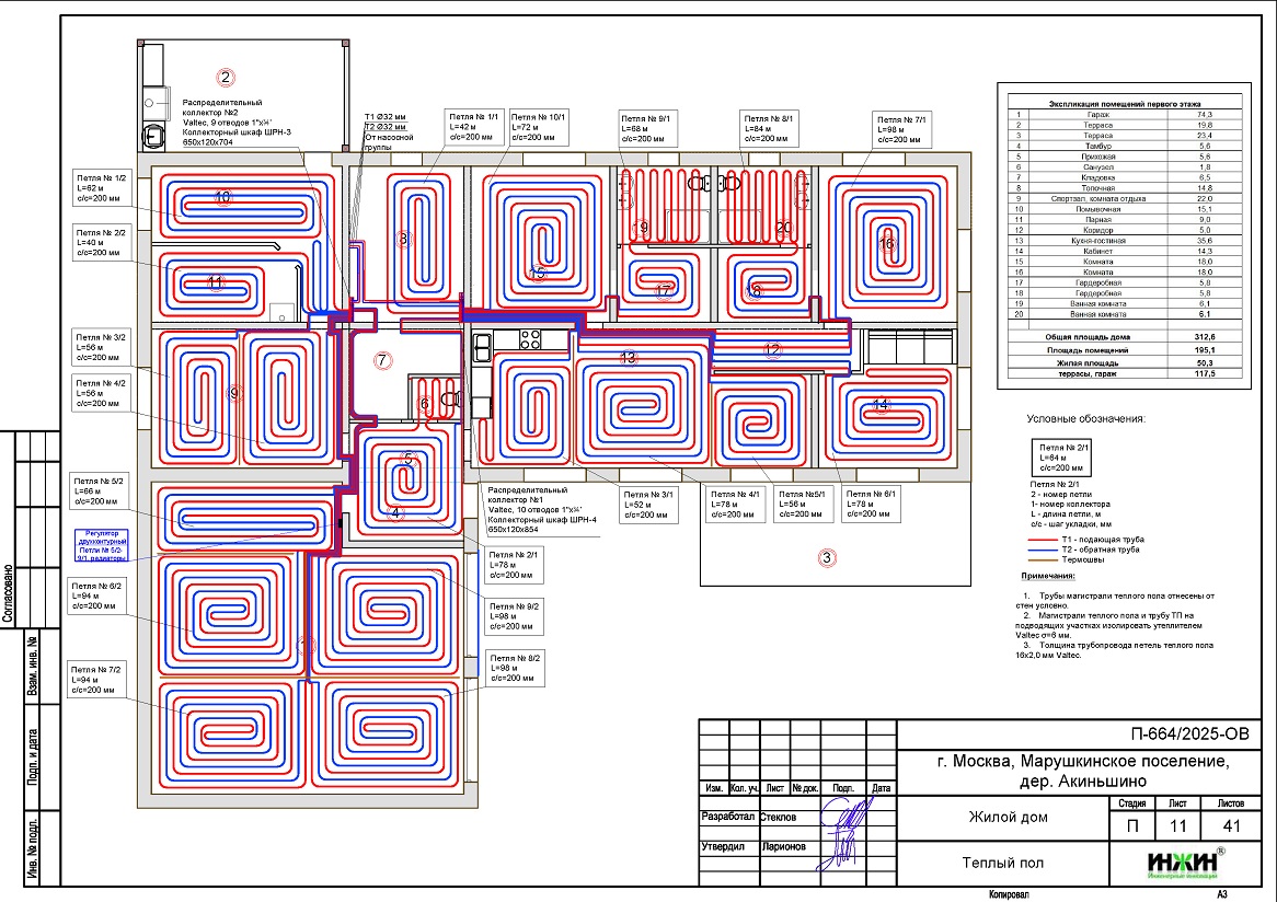
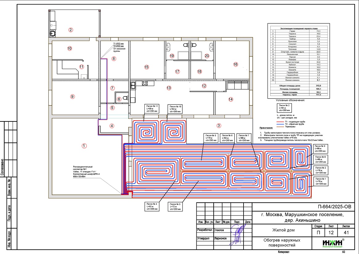
4. Комплект чертежей теплого пола и обогрева наружных поверхностей на площади 449 м.кв..
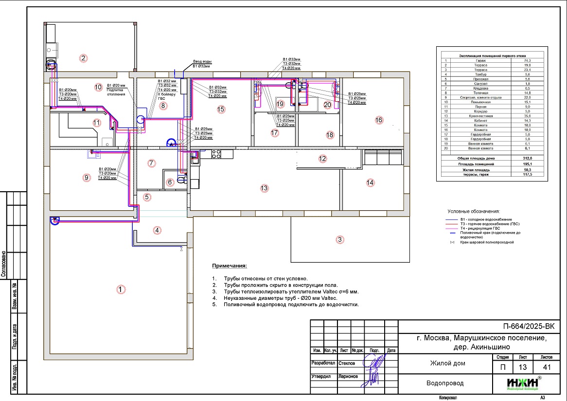
5. Комплект чертежей водоснабжения и канализации частного дома из газобетона в Москве.
6. Типовые схемы системы отопления канализации и водоснабжения дома 269м.кв.
7. Теплотехнический расчет отопления дома из газобетона.
8. Спецификация материалов и оборудования по котельной, отоплению, канализации и водоснабжению дома в Москве.
Объем проекта отопления, канализации и водоснабжения дома в Москве: 41 лист.
Описание проекта отопления, котельной, канализации и водоснабжения частного дома 269 м.кв. в Москве.
Котельная частного дома в Москве(проект котельной бесплатно).
o Размещена в отдельном помещении дома 269м.кв.;
o Теплогенераторы: основной - напольный газовый котел BAXI Slim, мощностью 40 кВт, резервный - электрический котел Baxi Ampera, 9 кВт;
o Контуры теплоснабжения котельной – радиаторное отопление дома (2 контура), теплый пол (2 контура), обогрев пандуса и горячее водоснабжение, для которого предусмотрен накопительный бойлер STOUT, объемом 200 литров;
o Расширительные баки отопления и бойлера Flamco, объемом 50 и 18 литров, соответственно;
o Дымоудаление естественное, дымоход из нержавеющей стали, в строительной шахте;
o Распределительный коллектор - STOUT с насосными группами и встроенной гидрострелкой;
o Автоматика котельной – контроллер ZONT Climatic 1.3 со встроенным GSM-модулем.
Отопление дома в Москве (проект отопления дома).
o Выполнен теплотехнический расчет отопления дома из газобетона (утеплитель стен и кровли - минвата 100мм и 300мм, соответственно) с учетом теплопотерь через ограждающие конструкции при наружной температуре -26°С для Москвы (по СП 131.13330.2020), расчетный расход тепла на отопление дома составил 23,64 кВт, удельные теплопотери 88 Вт/м.кв.;
o Подобраны приборы для отопления дома: стальные панельные радиаторы Kermi с нижним подключением;
o Схема радиаторного отопления дома двухтрубная с принудительной циркуляцией теплоносителя и температурным графиком 80/60°С;
o Трубы отопления из армированного полипропилена Valtec;
o Теплоизоляция трубопроводов отопления Valtec, толщиной 6мм;
o Теплоноситель в системе радиаторного отопления дома – подготовленная вода, предусмотрены средства защиты от образования накипи, в контуре обогрева наружных поверхностей - незамерзающая жидкость.
Водяной теплый пол дома в Москве(проект теплого пола).
o Водяной теплый пол в доме и обогрев наружных поверхностей предусмотрены на площади 449 м.кв., коллекторы теплого пола Valtec на 9, 10 и 11 отводов, всего 30 петель;
o Предусмотрен насосно-смесительный узел для теплоснабжения водяного теплого пола дома - в составе насосной группы котельной;
o Трубопроводы теплого пола – сшитый полиэтилен Valtec;
o Регулирование температуры теплого пола - общее, регулятором на смесительной группе.
Внутренний водопровод дома в Москве(проект водоснабжения).
o Схема внутреннего водоснабжения дома – тройниковая с рециркуляцией горячей воды через водяные полотенцесушители, выполнен расчет 43-х точек водоснабжения и полотенцесушителей;
o Трубопроводы системы водоснабжения – из армированного полипропилена Valtec;
o Теплоизоляция трубопроводов Valtec, толщиной 6мм.
Внутренняя канализация (проект канализации) дома в Москве.
o Безнапорная, отвод стоков от санитарно-технических приборов предусмотрен в септик;
o Произведен расчет 22-х точек бытовой канализации;
o Канализационные трубы Синикон, раструбные, из полипропилена.



















