Выполненные проекты
Электрика газобетонного дома в Ленинградской области, проект
Объект: газобетонный дом общей площадью 142 м.кв., расположенный в КП "Сувонтоярви 2" Ленинградской области
Цена (стоимость) проекта электрики (электропроводки): 18 531 руб. со скидкой 10%, проект слаботочных кабельных линий - бесплатно.
Проект электрики выполнен: 19.09.2025
Состав проекта электрики дома в КП "Сувонтоярви 2" Ленинградской области
1. Пояснительная записка. Общие данные по электроснабжению и освещению частного дома в КП "Сувонтоярви 2" Ленинградской области.
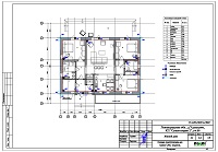
2. Однолинейные схемы вводного распределительного устройства и электрического распределительного щита дома 142 м.кв.
3. Чертежи электропроводки дома в КП "Сувонтоярви 2" Ленинградской области.
4. Чертежи групповых осветительных сетей дома в КП "Сувонтоярви 2" Ленинградской области.
5. Спецификация материалов и оборудования по электрике и электропроводке дома в КП "Сувонтоярви 2" Ленинградской области.
Объем проекта электрики дома 142 м.кв.: 15 листов.
Проект электрики дома площадью 142м.кв. в КП "Сувонтоярви 2" Ленинградской области- подробное описание.
Расчетные показатели по электроснабжению и освещению дома в КП "Сувонтоярви 2" Ленинградской области.
o Расчетная электрическая мощность дома составила 20,36 кВт, с учетом коэффициента спроса 0,38, принятого согласно СП 256.1325800.2016;
o При расчете учтено силовое оборудование: электроплита, септик, газовый и электрический котлы, скважинный насос, кондиционеры, электрические радиаторы и конвекторы.
Распределительные электрические щиты дома площадью 142 м.кв.
o Проектом предусмотрен один распределительный электрический щит, расположенный в прихожей;
o Автоматические выключатели, дифференциальные автоматы, рубильники и УЗО в щите – ABB, в количестве 34 шт. размещены во встраиваемом корпусе.
Силовая кабельная сеть (электропроводка) дома в КП "Сувонтоярви 2" Ленинградской области.
o Электропроводка дома предусмотрена с использованием кабелей ВВГ нг -LS с медными жилами в ПВХ-оболочке (не поддерживает горение);
o Общая протяженность линий электроснабжения и освещения – 1150 метров, вводная кабельная линия - бронированный кабель 160 метров;
o Электропроводка предусмотрена скрытым способом, в конструкции пола и стен помещений;
o Запроектировано 104 точек подключения розеток и выключателей освещения в доме;
o Предусмотрены слаботочные линии телевидения ЛВС, общая протяженность - 710 метров.
Система резервного электропитания предусмотрена с бензиновым генератором A-iPower A11000EAX (10 кВт).
Для этого дома в КП "Сувонтоярви 2" Ленинградской области выполнен проект отопления.



















