Выполненные проекты
Проект электрики дома в Домодедово
Объект: газобетонный дом общей площадью 126 м.кв., расположенный в городском округе Домодедово Московской области
Цена (стоимость) проекта электрики (электропроводки): 16 443 руб. со скидкой 10%, проект слаботочных кабельных линий - бесплатно.
Проект электрики выполнен: 11.02.2026
Состав проекта электрики дома в Домодедово:
1. Пояснительная записка. Общие данные по электроснабжению и освещению частного дома в Домодедово.
2. Однолинейные схемы вводного распределительного устройства и электрического распределительного щита дома 126 м.кв.
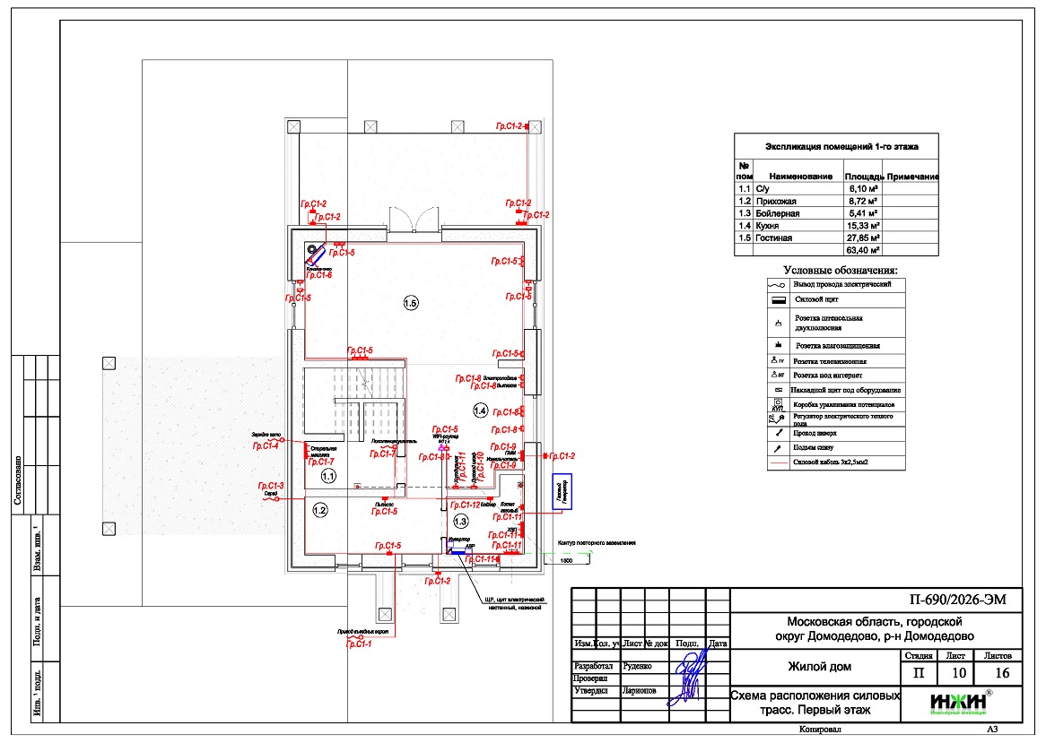
3. Чертежи электропроводки дома в Домодедово.
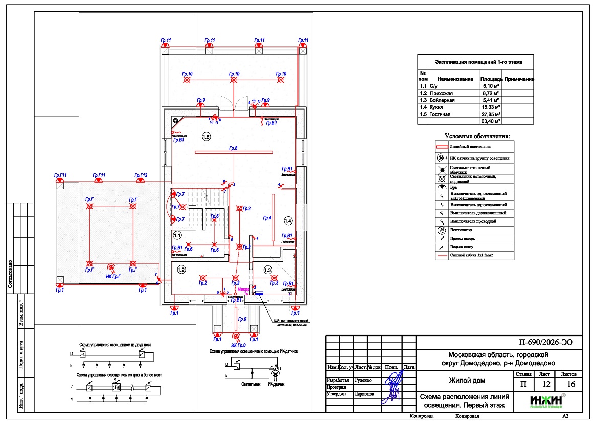
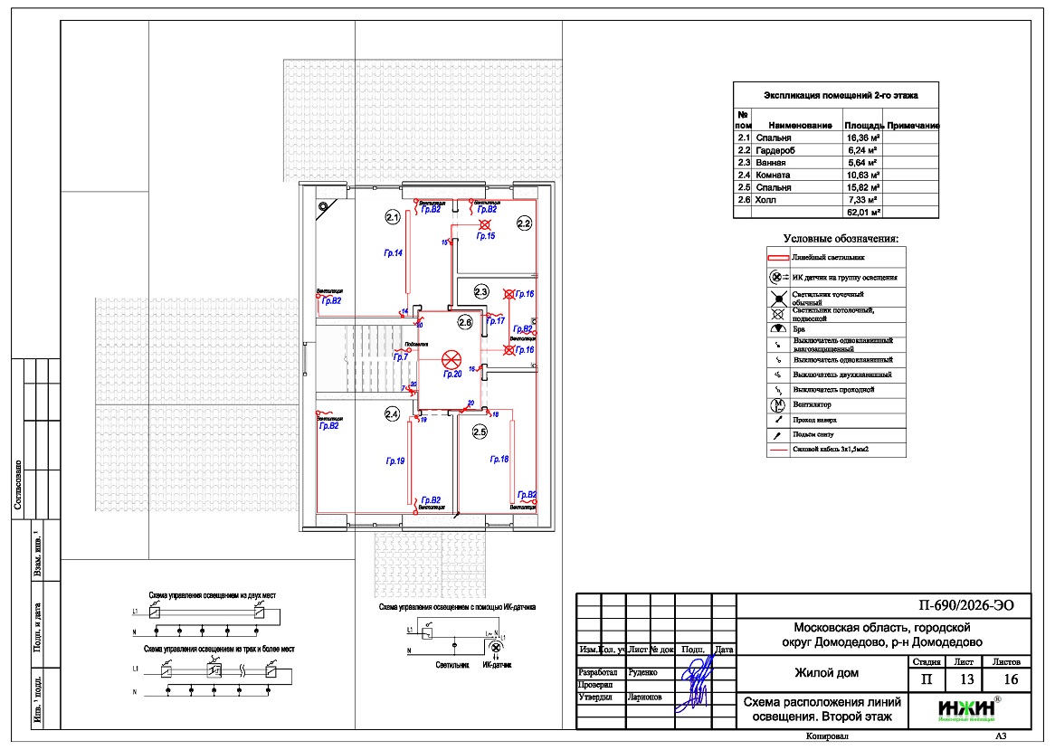
4. Чертежи групповых осветительных сетей дома в Домодедово.
5. Спецификация материалов и оборудования по электрике и электропроводке дома в Домодедово.
Объем проекта электрики дома 126 м.кв.: 17 листов.
Проект электрики дома площадью 126 м.кв. в Домодедово- подробное описание.
Расчетные показатели по электроснабжению и освещению дома в Домодедово.
o Расчетная электрическая мощность дома составила 14,35 кВт, с учетом коэффициента спроса 0,55, принятого согласно СП 256.1325800.2016;
o При расчете учтено силовое оборудование: газовый котел, электрические полотенцесушители, кондиционеры, зарядка для электромобиля.
Распределительные электрические щиты дома площадью 126 м.кв.
o Проектом предусмотрен один распределительный электрический щит, расположенный в техническом помещении;
o Автоматические выключатели, дифференциальные автоматы, рубильники и УЗО в щите – ABB, в количестве 29 шт. размещены в пристраиваемом корпусе.
Силовая кабельная сеть (электропроводка) дома в Домодедово.
o Электропроводка дома предусмотрена с использованием кабелей ВВГ нг -LS с медными жилами в ПВХ-оболочке (не поддерживает горение);
o Общая протяженность линий электроснабжения и освещения – 1035 метров, вводная кабельная линия - бронированный кабель 60 метров;
o Электропроводка предусмотрена скрытым способом, в конструкции пола, потолка и стен помещений;
o Запроектирована 107 точек подключения розеток и выключателей освещения в доме;
o Предусмотрены слаботочные линии ЛВС, общая протяженность - 150 метров.
Система резервного электропитания предусмотрена, с использованием однофазного инвертора CyberPower CPS 800 PRO с АКБ.



















