Выполненные проекты
Проект электрики дома в ДНТ "Лесная поляна"
Объект: газобетонный дом общей площадью 112 м.кв., расположенный в ДНТ "Лесная поляна" Тереньгульского района Ульяновской области
Цена (стоимость) проекта электрики (электропроводки): 14 616 руб. со скидкой 10%, проект слаботочных кабельных линий - бесплатно.
Проект электрики выполнен: 03.03.2026
Состав проекта электрики дома в ДНТ "Лесная поляна" Ульяновской области:
1. Пояснительная записка. Общие данные по электроснабжению и освещению частного дома в ДНТ "Лесная поляна" Ульяновской области.
2. Однолинейные схемы вводного распределительного устройства и электрического распределительного щита дома 112 м.кв.
3. Чертежи электропроводки дома в ДНТ "Лесная поляна" Ульяновской области.
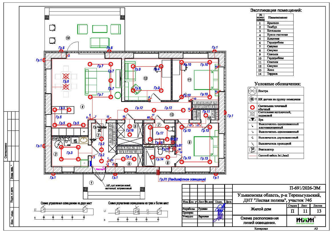
4. Чертежи групповых осветительных сетей дома в ДНТ "Лесная поляна" Ульяновской области.
5. Спецификация материалов и оборудования по электрике и электропроводке дома в ДНТ "Лесная поляна" Ульяновской области.
Объем проекта электрики дома 112 м.кв.: 13 листов.
Проект электрики дома площадью 112 м.кв. в ДНТ "Лесная поляна" Ульяновской области- подробное описание.
Расчетные показатели по электроснабжению и освещению дома в ДНТ "Лесная поляна" Ульяновской области.
o Расчетная электрическая мощность дома составила 15,27 кВт, с учетом коэффициента спроса 0,5, принятого согласно СП 256.1325800.2016;
o При расчете учтено силовое оборудование: газовый котел, электрический котёл, кондиционеры.
Распределительные электрические щиты дома площадью 112 м.кв.
o Проектом предусмотрен один распределительный электрический щит, расположенный в техническом помещении;
o Автоматические выключатели, дифференциальные автоматы, рубильники и УЗО в щите – ABB, в количестве 23 шт. размещены в пристраиваемом корпусе.
Силовая кабельная сеть (электропроводка) дома в ДНТ "Лесная поляна" Ульяновской области.
o Электропроводка дома предусмотрена с использованием кабелей ВВГ нг -LS с медными жилами в ПВХ-оболочке (не поддерживает горение);
o Общая протяженность линий электроснабжения и освещения – 750 метров, вводная кабельная линия - бронированный кабель 25 метров;
o Электропроводка предусмотрена скрытым способом, в конструкции пола, потолка и стен помещений;
o Запроектирована 88 точек подключения розеток и выключателей освещения в доме;
o Предусмотрены слаботочные линии ЛВС, общая протяженность - 70 метров.
Система резервного электропитания предусмотрена, с использованием однофазного инвертора CyberPower CPS 800 PRO с АКБ.
Заказать проект электрики частного дома дистанционно.
Для этого дома в Ульяновской области выполнен проект отопления.
















