Выполненные проекты
Проект электрики дома в Щёлково (152 м.кв.)
Объект: газобетонный дом общей площадью 152 м.кв., расположенный в городском округе Щёлково Московской области
Цена (стоимость) проекта электрики (электропроводки): 19 836 руб. со скидкой 10%, проект слаботочных кабельных линий - бесплатно.
Проект электрики выполнен: 02.04.2026
Состав проекта электрики дома в Щёлково:
1. Пояснительная записка. Общие данные по электроснабжению и освещению частного дома в Щёлково.
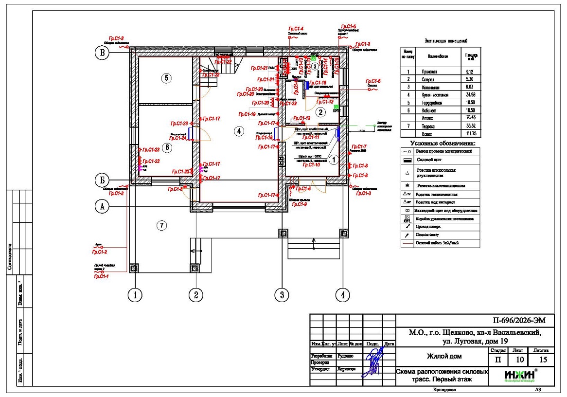
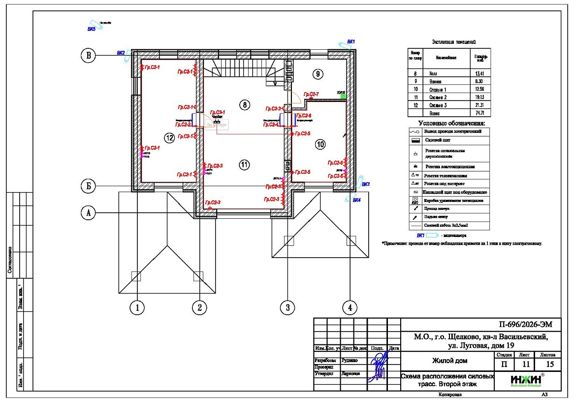
2. Однолинейные схемы вводного распределительного устройства и электрического распределительного щита дома 152 м.кв.
3. Чертежи электропроводки дома в Щёлково.
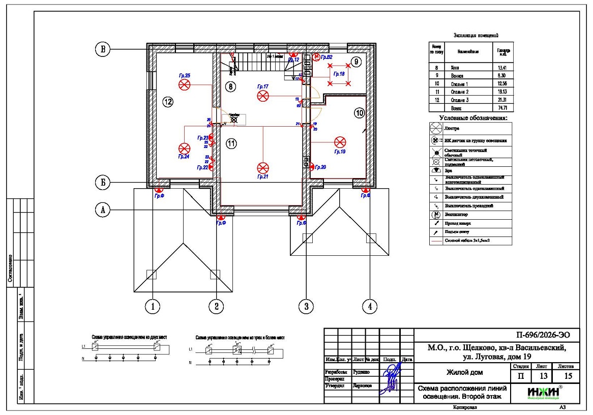
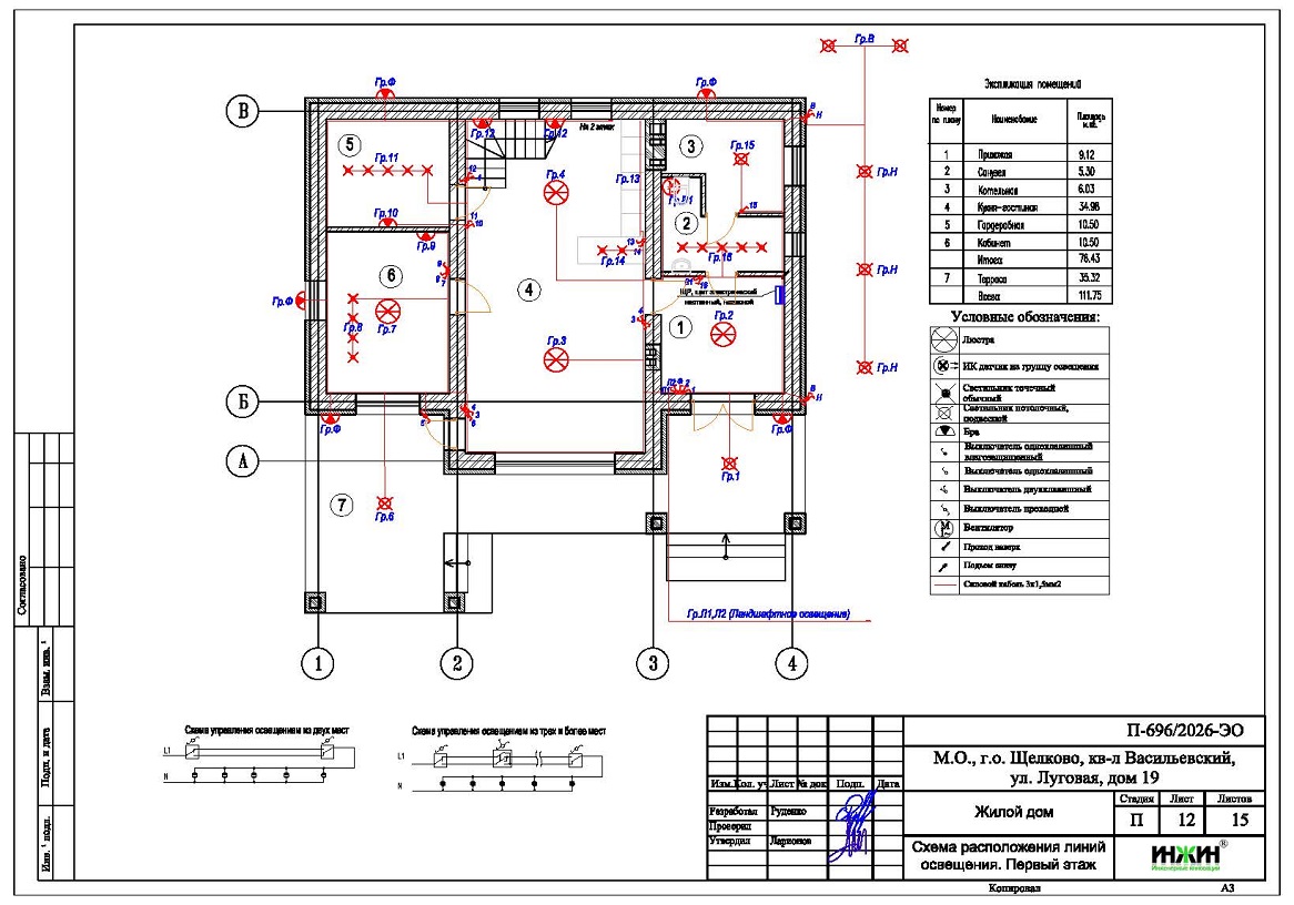
4. Чертежи групповых осветительных сетей дома в Щёлково.
5. Спецификация материалов и оборудования по электрике и электропроводке дома в Щёлково.
Объем проекта электрики дома 152 м.кв.: 15 листов.
Проект электрики дома площадью 152 м.кв. в Щёлково- подробное описание.
Расчетные показатели по электроснабжению и освещению дома в Щёлково.
o Расчетная электрическая мощность дома составила 15,51 кВт, с учетом коэффициента спроса 0,34, принятого согласно СП 256.1325800.2016;
o При расчете учтено силовое оборудование: газовый и электрический котлы, электрические полотенцесушители, кондиционеры, баня.
Распределительные электрические щиты дома площадью 152 м.кв.
o Проектом предусмотрен один распределительный электрический щит, расположенный в техническом помещении;
o Автоматические выключатели, дифференциальные автоматы, рубильники и УЗО в щите – ABB, в количестве 39 шт. размещены в пристраиваемом корпусе.
Силовая кабельная сеть (электропроводка) дома в Щёлково.
o Электропроводка дома предусмотрена с использованием кабелей ВВГ нг -LS с медными жилами в ПВХ-оболочке (не поддерживает горение);
o Общая протяженность линий электроснабжения и освещения – 1050 метров, вводная кабельная линия - бронированный кабель 140 метров;
o Электропроводка предусмотрена скрытым способом, в конструкции пола, потолка и стен помещений;
o Запроектирована 119 точек подключения розеток и выключателей освещения в доме;
o Предусмотрены слаботочные линии ЛВС и телевидения, общая протяженность - 250 метров.
Система резервного электропитания предусмотрена, с использованием однофазного бензинового генератора (по выбору Заказчика).



















