Новости компании
Выполнены проекты инженерных систем для дома 198 м.кв.
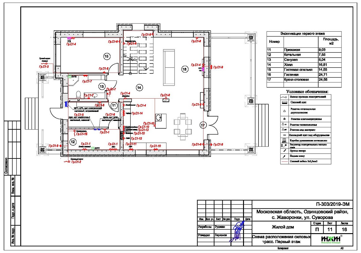
Для загородного дома со стенами из газосиликатных блоков (утеплитель пола - плиты из пенополистирола 100мм, кровли - минвата 250мм), общей площадью 198 м.кв., расположенного в с. Жаворонки Одинцовского района Московской области, разработаны проекты внутренних инженерных систем: электрики, котельной, отопления, водоснабжения и канализации.
В проекте отопления, водоснабжения и канализации, по заданию Заказчика, предусмотрены следующие основные технические решения:
- Вариант котельной и отопления «Базовый», с автоматикой, встроенной в основной котел и дополнительным GSM-модулем ZONT для контроля работы газового котла;
- Предусмотрен настенный газовый котел Viessmann, мощностью 30 кВт,который размещен в помещении котельной 1-го этажа дома;
- Предусмотрено два контура теплоснабжения – радиаторное отопление и накопительный бойлер Viessmann, которые подключены непосредственно котлу, без использования распределительного коллектора;
- Выполнен расчет отопления, расход тепла на отопление дома составил 19,43 кВт, удельные теплопотери 99,1 Вт/м.кв.;
- Отопление и водоснабжение дома в с. Жаворонки предусмотрены по коллекторно-лучевой схеме, с трубопроводами из металлопластика Valtec;
- Приборы для системы отопления дома - биметаллические секционные радиаторы Rifar SUPREMO Ventil с нижним подключением, а также стальные трубчатые радиаторы "Гармония" (КЗТО);
- Водяной теплый пол проектом не предусмотрен;
- Водоснабжение в доме предусмотрено с рециркуляцией горячей воды через водяные полотенцесушители, выполнен расчет 18-ти точек внутреннего водопровода;
- Внутренняя канализация безнапорная, отвод стоков от санитарно-технических приборов предусмотрен в септик, выполнен расчет 11-ти точек канализации.
Стоимость проекта отопления водоснабжения и канализации дома в с. Жаворонки- 27 540 руб. со скидкой 10%, проект котельной бесплатно, объем проекта отопления 38 листов.
Проект электрики дома в с. Жаворонки содержит следующие технические решения:
- Выполнен расчет схемы электроснабжения, электрическая мощность дома составила 15,7 кВт, с учетом коэффициента спроса 0,8, принятого согласно СП 256.1325800.2016;
- Автоматические выключатели (УЗО) в количестве 28 шт., которые размещены в двух распределительных щитах ABB (приставные корпусы);
- Электропроводка предусмотрена скрытым способом, в конструкции стен и пола дома;
- Общая протяженность электропроводки 1235 метров;
- Резервное электропитание проектом не предусмотрено.
Цена проекта электрики – 16 758 руб. со скидкой 10%. Объем проекта электрики – 16 листов.
Подробное описание выполненного проекта электрики дома в с. Жаворонки.

Заказать проект электрики загородного дома.
16 сентября 2019 года
- Информация о материале
- Просмотров: 2750















