Новости компании
Выполнен проект отопления деревянного дома 205 м.кв.
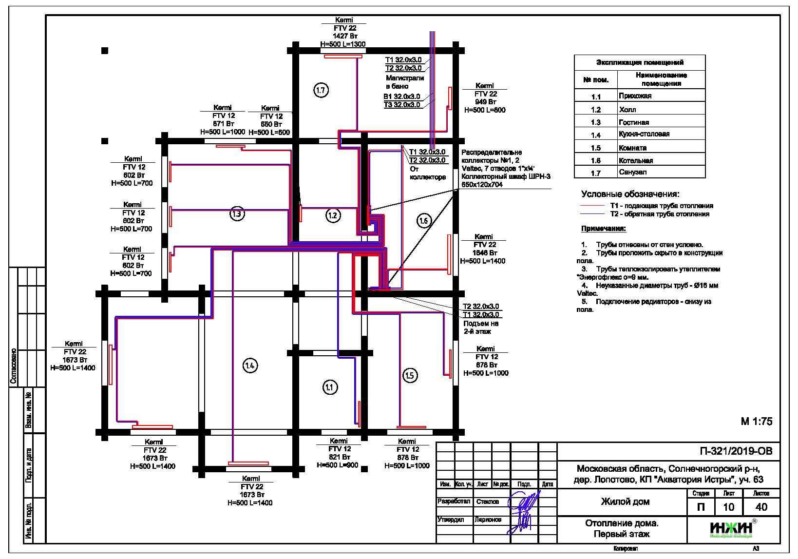
Для частного дома со стенами из дерева (брус) (утеплитель кровли дома - плиты из минваты 150мм), общей площадью 205 м.кв., расположенного в КП "Акватория Истры" Истринского района Московской области, разработан проект котельной, отопления, водоснабжения и канализации, в котором, по заданию Заказчика, предусмотрены следующие основные технические решения:
- Вариант котельной и отопления «Комфортный», с водяным теплым полом и автоматикой котельной, встроенной в газовый котел;
- Предусмотрен один теплогенератор - настенный газовый котел Vaillant, мощностью 32 кВт;
- Предусмотрено три контура теплоснабжения – радиаторное отопление дома, теплоснабжение гостевого дома (резерв) и горячее водоснабжение (подключение к котлу), коллектор котельной - компактный модуль Meibes Kombimix);
- Выполнен расчет отопления, расход тепла на отопление дома составил 24,5 кВт, удельные теплопотери 117,1 Вт/м.кв.;
- Отопление дома в КП "Акватория Истры" предусмотрено по двухтрубной коллекторно-лучевой схеме с трубопроводами из металлопластика Valtec;
- Приборы для системы отопления дома - стальные панельные радиаторы KERMIс нижним подключением;
- Водяной теплый пол в доме предусмотрен на площади 8 м.кв., 1 петля;
- Выполнен расчет 22-х точек внутреннего водоснабжения и 12-ти точек канализации с отводом стоков в септик..
Стоимость проекта отопления и водоснабжения дома в КП "Акватория Истры" - 28 251 руб. со скидкой 10%, проект котельной бесплатно, объем проекта отопления 40 листов.
Подробное описание выполненного проекта котельной, отопления, водоснабжения и канализации частного дома в КП "Акватория Истры".
Заказать проект отопления деревянного дома.
04 февраля 2020 года
- Информация о материале
- Просмотров: 2733














