Новости компании
Выполнены проекты инженерных систем для дома 110 м.кв.
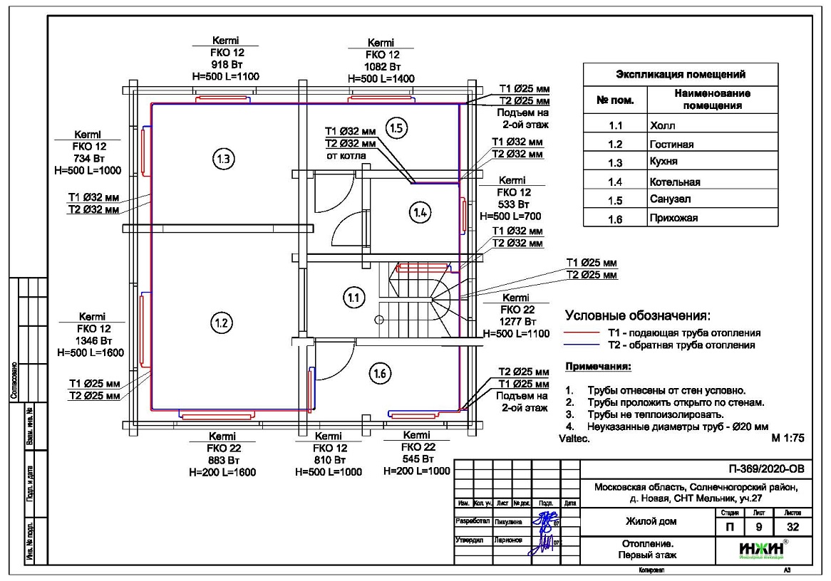
Для загородного дома со стенами из бруса (утеплитель кровли и пола - каменная вата Paroc extra plus, 200мм), площадью 110 м.кв., расположенного в СНТ "Мельник" Московской области, разработаны проекты внутренних инженерных систем: электрики, отопления, водоснабжения и канализации.
В проекте отопления, водоснабжения и канализации, по заданию Заказчика, предусмотрены следующие основные технические решения:
- Вариант отопления «Базовый», с термостатом котельнойсо встроенным GSM-модулем;
- Индивидуальная котельная с одним котлом: настенным электрическим Protherm Скат, мощностью 14 кВт;
- Контуры теплоснабжения дома – отопление дома и бойлер ГВС;
- Выполнен расчет отопления, расход тепла на отопление дома составил 14,02 кВт, удельные теплопотери 123,3 Вт/м.кв.;
- Отопление и водоснабжение дома предусмотрены по тройниковой схеме, с трубопроводами из армированного полипропилена Valtec PP ALUX;
- Приборы для системы отопления дома - стальные панельные радиаторы KERMI с боковым подключением;
- Водяной теплый пол проектом не предусмотрен;
- Водоснабжение предусмотрено без рециркуляции горячей воды, выполнен расчет 9-и точек внутреннего водопровода;
- Внутренняя канализация безнапорная, отвод стоков от санитарно-технических приборов предусмотрен в септик, выполнен расчет 7-и точек канализации.
Стоимость проекта отопления водоснабжения и канализации дома в СНТ "Мельник" - 14 850 руб. со скидкой 10%, проект котельной бесплатно, объем проекта 32 листа.

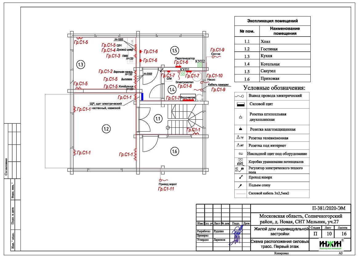
Проект электрики дома в СНТ "Мельник" содержит следующие технические решения:
- Выполнен расчет схемы электроснабжения, электрическая мощность дома составила 22,07 кВт, с учетом коэффициента спроса 0,6, принятого согласно СП 256.1325800.2016;
- Автоматические выключатели (УЗО) в количестве 24 шт., которые размещены в одном распределительном электрощите ABB (размещен в коридоре);
- Электропроводка предусмотрена скрытым способом, в конструкции стен и пола дома;
- Общая протяженность электропроводки 650 метров;
- Резервное электропитание дома при помощи дизельного генератора (по выбору Заказчика).
Цена проекта электрики – 9 405 руб. со скидкой 10%. Объем проекта электрики – 16 листов.
Подробное описание выполненного проекта электрики дома в СНТ "Мельник".

Заказать проект электрики дома в Московской области дистанционно.
18 февраля 2021 года
- Информация о материале
- Просмотров: 2144














