Выполненные проекты
Проект отопления дома 110 м.кв.
Объект: дом из бруса общей площадью 110 м.кв. в СНТ "Мельник" Солнечногорского района Московской области.
Цена проекта отопления, канализации и водоснабжения: 14 850 руб. со скидкой 10%, проект котельной - бесплатно.
Проект котельной, отопления, водоснабжения и канализации выполнен: 16.02.2021
Состав проекта котельной, отопления, канализации и водоснабжения дома в СНТ "Мельник":
1. Пояснительная записка проекта, общие данные по системам отопления, канализации и водоснабжения дома 110 м.кв. в СНТ "Мельник".
2. Тепломеханическая схема котельной с размещением оборудования в отдельном помещении дома из дерева.
3. Комплект поэтажных чертежей радиаторного отопления дома в СНТ "Мельник".
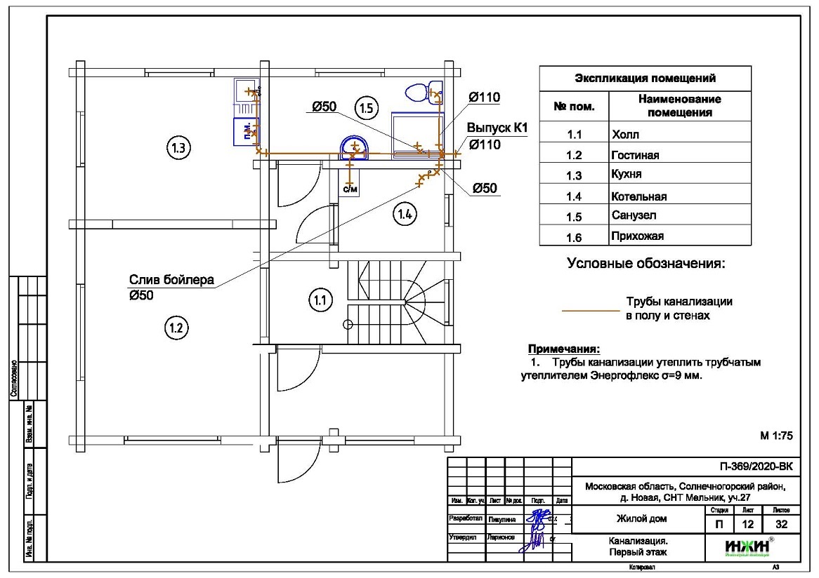
4. Комплект чертежей водоснабжения и канализации частного дома из бруса в СНТ "Мельник".
5. Типовые схемы системы отопления канализации и водоснабжения дома 110 м.кв.
6. Теплотехнический расчет отопления дома из бруса.
7. Спецификация материалов и оборудования по котельной, отоплению, канализации и водоснабжению дома в СНТ "Мельник".
Объем проекта отопления, канализации и водоснабжения дома в СНТ "Мельник": 32 листа.
Описание проекта отопления, котельной, канализации и водоснабжения частного дома 110 м.кв. в СНТ "Мельник".
Котельная частного дома в СНТ "Мельник"(проект котельной бесплатно).
o Размещена в отдельном помещении дома 110 м.кв.;
o Теплогенератор - настенный электрический котел Protherm Скат, мощностью 14 кВт;
o Контуры теплоснабжения котельной – радиаторное отопление дома и горячее водоснабжение, для которого предусмотрен накопительный бойлер Protherm, объемом 120 литров (подключение к котлу);
o Расширительные баки отопления и бойлера Flamco, объемом 12 литров каждый;
o Распределительный коллектор не предусмотрен;
o Автоматика котельной – встроена в котел с дополнительным GSM-модулем.
Отопление дома в СНТ "Мельник" (проект отопления дома).
o Выполнен теплотехнический расчет отопления дома из бруса (утеплитель кровли и пола - каменная вата Paroc extra plus, 200мм) с учетом теплопотерь через ограждающие конструкции при наружной температуре -28°С для Московской области (по СП 131.13330.2012), расчетный расход тепла на отопление дома составил 14,02 кВт, удельные теплопотери 123,3 Вт/м.кв.;
o Подобраны приборы для отопления дома: стальные панельные радиаторы KERMI с боковым подключением;
o Схема радиаторного отопления дома двухтрубная, с принудительной циркуляцией теплоносителя и температурным графиком 80/60°С;
o Трубы отопления из армированного полипропилена Valtec PP ALUX;
o Теплоизоляция трубопроводов отопления не предусмотрена;
o Теплоноситель в системе радиаторного отопления дома – антифриз.
Внутренний водопровод дома в СНТ "Мельник" (проект водоснабжения).
o Схема внутреннего водоснабжения дома – тройниковая, без рециркуляции горячей воды, выполнен расчет 9-ти точек водоснабжения;
o Трубопроводы системы водоснабжения – из армированного полипропилена Valtec PP ALUX;
o Теплоизоляция трубопроводов не предусмотрена.
Внутренняя канализация (проект канализации) дома в СНТ "Мельник".
o Безнапорная, отвод стоков от санитарно-технических приборов предусмотрен в септик;
o Произведен расчет 7-ми точек бытовой канализации;
o Канализационные трубы Синикон, раструбные, из полипропилена.
По этому проекту выполнен монтаж отопления, водоснабжения и канализации дома в СНТ "Мельник".
Для этого дома в СНТ "Мельник" выполнен проект электрики.




















