Новости компании
Выполнены проекты инженерных систем для дома 269 м.кв.
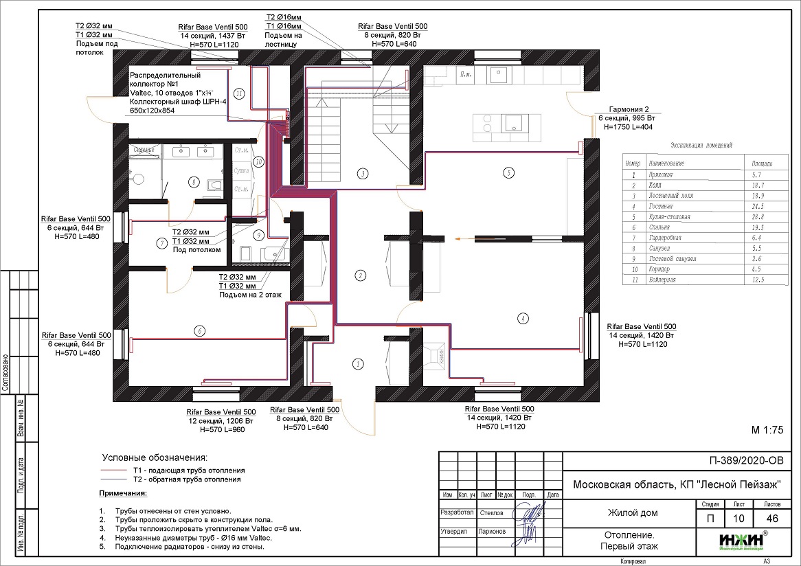
Для загородного дома со стенами из кирпича (утеплитель кровли - минеральная вата 150мм), площадью 269 м.кв., расположенного в КП «Лесной Пейзаж» Московской области, разработаны проекты внутренних инженерных систем: электрики, отопления и водоснабжения.
В проекте отопления, водоснабжения и канализации, по заданию Заказчика, предусмотрены следующие основные технические решения:
- Вариант отопления «Комфортный», с дополнительным GSM-модулем;
- Индивидуальная котельная с напольным газовым котлом Protherm Медведь 40KLOM, мощностью 35 кВт (в наличии);
- Контуры теплоснабжения дома – радиаторное отопление, теплый пол и горячее водоснабжение;
- Выполнен расчет отопления, расход тепла на отопление составил - 24,67 кВт, удельные теплопотери 85,9 Вт/м.кв.;
- Отопление и водоснабжение дома в Московской области предусмотрены по коллекторно-лучевой схеме, с трубопроводами из полиэтилена Rehau RAUTITAN flex;
- Приборы для системы отопления дома - биметаллические секционные радиаторы Rifar Ventil с нижним подключением (из стены);
- Водяной теплый пол проектом предусмотрен на площади 84 м.кв., 15 петель;
- Водоснабжение предусмотрено с рециркуляцией горячей воды через полотенцесушители, выполнен расчет 53-х точек внутреннего водопровода и 23-х точек бытовой канализации.
Стоимость проекта отопления, канализации и водоснабжения дома в КП «Лесной Пейзаж»- 42 363 руб. со скидкой 10%, проект котельной бесплатно, объем проекта 46 листов.

Проект электрики дома в КП «Лесной Пейзаж» содержит следующие технические решения:
- Выполнен расчет схемы электроснабжения, электрическая мощность дома составила 20,07 кВт, с учетом коэффициента спроса 0,55, принятого согласно СП 256.1325800.2016;
- Автоматические выключатели (УЗО) в количестве 34 шт., которые размещены в одном распределительном щите ABB (встраиваемый корпус);
- Электропроводка предусмотрена скрытым способом, в конструкции стен и пола дома;
- Общая протяженность электропроводки 1300 метров;
- Резервное электропитание дома с использованием однофазного инвертора CyberPower мощностью 1,5 кВт (для оборудования котельной).
Цена проекта электрики – 22 999 руб. со скидкой 10%. Объем проекта электрики – 17 листов.
Подробное описание выполненного проекта электрики дома в КП «Лесной Пейзаж».

Заказать проект электрики кирпичного дома дистанционно.
29 марта 2021 года
- Информация о материале
- Просмотров: 2039














