Новости компании
Проекты инженерных систем выполнены для дома 524 м.кв.
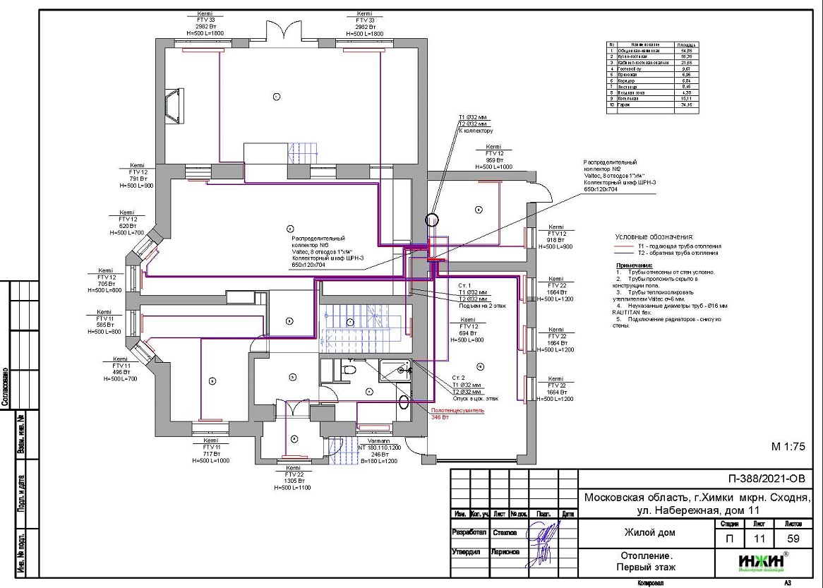
Для загородного дома со стенами из керамических блоков (утеплитель кровли - минеральная вата 150мм), площадью 524 м.кв., расположенного в мкр Сходня (г.Химки) Московской области, разработаны проекты внутренних инженерных систем: электрики, отопления и водоснабжения.
В проекте отопления, водоснабжения и канализации, по заданию Заказчика, предусмотрены следующие основные технические решения:
- Вариант отопления «Комфортный», с контроллером со встроенным GSM-модулем;
- Индивидуальная котельная с настенным газовым котлом Vaillant ecoTEС, мощностью 45 кВт;
- Контуры теплоснабжения дома – радиаторное отопление и горячее водоснабжение;
- Выполнен расчет отопления, расход тепла на отопление составил - 39,09 кВт, удельные теплопотери 74,5 Вт/м.кв.;
- Отопление и водоснабжение дома в Московской области предусмотрены по коллекторно-лучевой схеме, с трубопроводами из сшитого полиэтилена Rehau;
- Приборы для системы отопления дома - стальные панельные радиаторы KERMI с нижним подключением, в вентильном исполнении и встроенные в пол конвекторы Varmann;
- Водяной теплый пол проектом не предусмотрен;
- Водоснабжение предусмотрено с рециркуляцией горячей воды через полотенцесушители, выполнен расчет 46-и точек внутреннего водопровода и 25-и точек бытовой канализации.
Стоимость проекта отопления, канализации и водоснабжения дома в Сходне- 108 468 руб. со скидкой 10%, проект котельной бесплатно, объем проекта 59 листов.
Подробное описание выполненного проекта отопления и водоснабжения дома 524 м.кв. в Сходне.

Проект электрики дома в Сходне содержит следующие технические решения:
- Выполнен расчет схемы электроснабжения, электрическая мощность дома составила 29,56 кВт, с учетом коэффициента спроса 0,45, принятого согласно СП 256.1325800.2016;
- Автоматические выключатели (УЗО) в количестве 71 шт., которые размещены в распределительном щите ABB (встраиваемый корпус);
- Электропроводка предусмотрена скрытым способом, в конструкции стен и пола дома;
- Общая протяженность электропроводки 2280 метров;
- Резервное электропитание дома с использованием однофазного инвертора CyberPower мощностью 7,5 кВт.
Цена проекта электрики – 62 723 руб. со скидкой 10%. Объем проекта электрики – 21 лист.
Подробное описание выполненного проекта электрики дома в Сходне.

Заказать проект электрики частного дома дистанционно.
06 мая2021 года
- Информация о материале
- Просмотров: 2397














