Новости компании
Выполнен проект отопления дома в с. Игумново
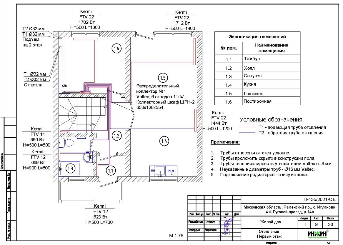
Для частного дома со стенами из газобетонных блоков (утеплитель кровли дома - плиты из минваты), общей площадью 110 м.кв., расположенного в с.Игумново Раменского района Московской области, разработан проект котельной и отопления, в котором, по заданию Заказчика, предусмотрены следующие основные технические решения:
- Вариант котельной и отопления «Комфортный», с водяным теплым полом и автоматикой котельной - встроенной в котел;
- Предусмотрен настенный электрический котел Proherm Скат мощностью 12 кВт;
- Предусмотрен один контур теплоснабжения – радиаторное отопление, теплый пол - на контуре отопления;
- Выполнен расчет отопления, расход тепла на отопление дома составил 15,11 кВт, удельные теплопотери 149,3 Вт/м.кв.;
- Отопление дома предусмотрено по двухтрубной коллекторно-лучевой схеме с трубопроводами из металлопластика Valtec;
- Приборы для системы отопления дома - стальные панельные радиаторы Kermi с нижним подключением;
- Водяной теплый пол в доме предусмотрен на площади 42 м.кв., 6 петель.
Стоимость проекта отопления и теплого пола дома в с. Игумново - 19 359 руб. со скидкой 10%, проект котельной бесплатно, объем проекта отопления 33 листа.
Подробное описание выполненного проекта котельной и отопления частного дома в с. Игумново.
Заказать проект отопления частного дома дистанционно.
27 октября 2021 года
- Информация о материале
- Просмотров: 1808














