Новости компании
Выполнен проект отопления для дома в Воронеже
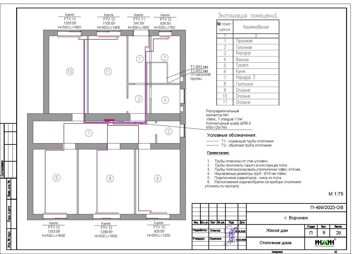
Для загородного дома со стенами из газобетона (утеплитель кровли - ЭППС 100мм), площадью 120 м.кв., расположенного в Воронеже, выполнены проекты отопления и теплого пола.
В проекте отопления, по заданию Заказчика, предусмотрены следующие основные технические решения:
- Вариант отопления «Комфортный», с системой управления котельной ZONT SMART 2.0 со встроенным GSM-модулем для удаленного управления при помощи мобильного приложения;
- Индивидуальная котельная с напольным газовым котлом Лемакс Престиж, мощностью 30 кВт (в наличии);
- Контуры теплоснабжения дома – 3 шт. (отопление дома, теплый пол и горячее водоснабжение);
- Выполнен расчет отопления, расход тепла на отопление составил - 9,48 кВт, удельные теплопотери 87,6 Вт/м.кв.;
- Отопление дома в Воронеже предусмотрено по коллекторно-лучевой схеме, с трубопроводами из металлопластика Valtec;
- Приборы для системы отопления дома - стальные панельные радиаторы Kermi с нижним подключением, в вентильном исполнении;
- Водяной теплый пол проектом предусмотрен на площади 50 м.кв., 6 петель.
Стоимость проекта отопления и теплого пола дома в Воронеже 15 480 руб. со скидкой 10%, проект котельной бесплатно, объем проекта 38 листов.
Подробное описание выполненного проекта отопления частного дома 120 м.кв. в г. Воронеж.

13 апреля 2023 года
- Информация о материале
- Просмотров: 4868














