Новости компании
Проект отопления выполнен для дома 244 м.кв.
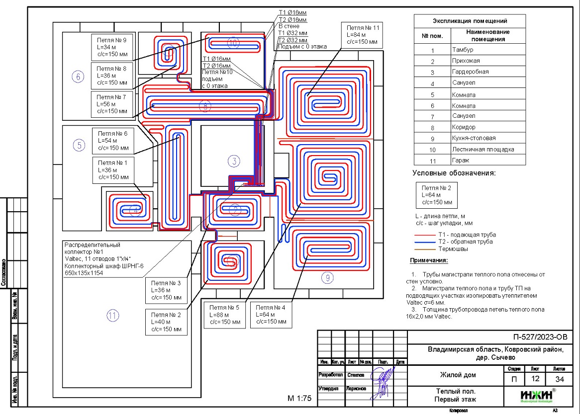
Для частного дома со стенами из кирпича (утеплитель кровли - арболит 150мм), площадью 244 м.кв., расположенного в дер. Сычево Ковровского района Владимирской области, выполнены проекты отопления и теплого пола.
В проекте отопления по заданию Заказчика, предусмотрены следующие основные технические решения:
- Вариант отопления «Базовый», с системой управления, встроенной в котел;
- Индивидуальная котельная с напольным газовым котлом Лемакс Clever, мощностью 20 кВт;
- Контуры теплоснабжения дома – 2 шт. (отопление дома и теплый пол);
- Выполнен расчет отопления, расход тепла на отопление составил - 19,09 кВт, удельные теплопотери 91,0 Вт/м.кв.;
- Отопление и водоснабжение дома предусмотрены по двухтрубной схеме, с трубопроводами из полипропиленаValtec;
- Приборы для системы отопления дома - алюминиевые радиаторы Rifar ALUM с боковым подключением;
- Водяной теплый пол проектом предусмотрен на площади 78 м.кв., 11 петель.
Стоимость проекта отопления и теплого пола дома в дер. Сычево- 23 510 руб. со скидкой 10%, проект котельной бесплатно, объем проекта 34 листа.

28 ноября 2023 года
- Информация о материале
- Просмотров: 4426














