Новости компании
Разработаны проекты инженерных систем для дома 150 м.кв.
Для загородного дома со стенами из газобетона (утеплитель кровли и стен - минвата 200мм и 100мм, соответственно), площадью 150 м.кв., расположенного в СНТ "Лесное" Химкинского района Московской области, разработаны проекты внутренних инженерных систем: электрики, слаботочки и отопления.
В проекте отопления, по заданию Заказчика, предусмотрены следующие основные технические решения:
- Вариант отопления «Комфортный», с контроллером ZONT Climatic 1.2со встроенным GSM-модулем;
- Индивидуальная котельная с двумя настенными котлами - основным газовым BAXI ECO-4S, мощностью 24 кВт (перспектива) и резервным - электрическим ZOTA MK, мощностью 6 кВт;
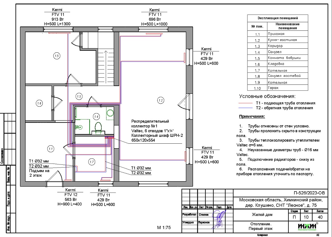
- Контур теплоснабжения дома – радиаторное отопление дома, теплый пол дома и горячее водоснабжение, для которого предусмотрен накопительный бойлер STOUT, объемом 150 литров;
- Выполнен расчет отопления, расход тепла на отопление составил - 10,5 кВт, удельные теплопотери 64,4 Вт/м.кв.;
- Отопление и водоснабжение дома в Московской области предусмотрены по двухтрубной схеме, с трубопроводами из металлопластика Valtec;
- Приборы для системы отопления дома - стальные панельные радиаторы Kermi с нижним подключением.
Стоимость проекта отопления дома в СНТ "Лесное"- 27 270 руб. со скидкой 10%, проект котельной бесплатно, объем проекта 40 листов.
Подробное описание выполненного проекта отопления частного дома 150 м.кв. в СНТ "Лесное".

Проект электрики дома в СНТ "Лесное"содержит следующие технические решения:
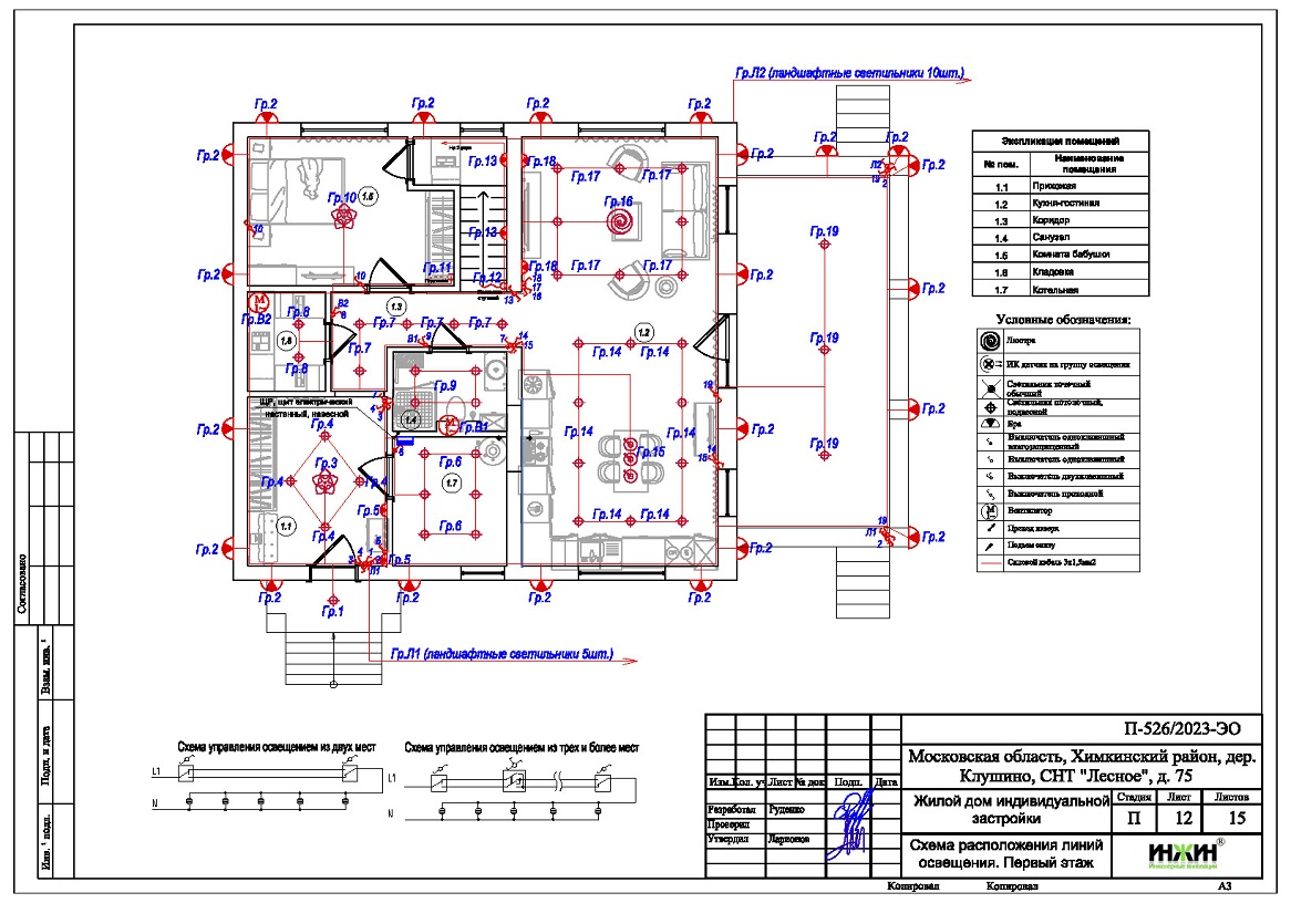
- Выполнен расчет схемы электроснабжения, электрическая мощность дома составила 24,53 кВт, с учетом коэффициента спроса 0,48, принятого согласно СП 256.1325800.2016;
- Автоматические выключатели (УЗО) в количестве 46 шт., которые размещены в распределительном щите ABB;
- Электропроводка предусмотрена скрытым способом, в полу и стенах дома;
- Общая протяженность электропроводки 712 метров;
- Резервное электропитание дома не предусмотрено.
Цена проекта электрики – 17 955 руб. со скидкой 10%. Объем проекта электрики – 15 листов.
Подробное описание выполненного проекта электрики дома в СНТ "Лесное".

Заказать проект электрики частного дома дистанционно.
29 декабря 2023 года
- Информация о материале
- Просмотров: 4973














