Новости компании
Выполнены проекты инженерных систем дома 130 м.кв. из бруса
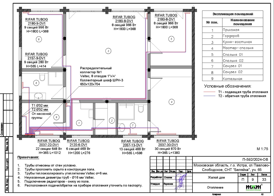
Для загородного дома со стенами из бруса (утеплитель кровли - базвата 150 мм), площадью 130 м.кв., расположенного в СНТ "Беляйка" Истринского района Московской области, разработаны проекты внутренних инженерных систем: электрики, котельной и отопления.
В проекте отопления, по заданию Заказчика, предусмотрены следующие основные технические решения:
- Вариант отопления «Базовый», с контроллером ZONT Climatic 1.3со встроенным GSM-модулем;
- Индивидуальная котельная с настенным электрическим котлом BAXI ECO-4S, мощностью 12 кВт;
- Контуры теплоснабжения дома – радиаторное отопление дома;
- Выполнен расчет отопления, расход тепла на отопление составил - 10,67 кВт, удельные теплопотери 105,6 Вт/м.кв.;
- Отопление дома в СНТ "Беляйка" предусмотрены по коллекторно-лучевой схеме, с трубопроводами из металлопластика Valtec;
- Приборы для системы отопления дома - секционные трубчатые радиаторы RIFAR Tubog, водяной теплый пол предусмотрен на площади 92 м.кв., 10 петель.
Стоимость проекта отопления дома в СНТ "Беляйка"- 32 247 руб. со скидкой 10%, проект котельной бесплатно, объем проекта 33 листа.
Подробное описание выполненного проекта отопления частного дома 130 м.кв. в СНТ "Беляйка".

Проект электрики дома в СНТ "Беляйка"содержит следующие технические решения:
- Выполнен расчет схемы электроснабжения, электрическая мощность дома составила 14,39 кВт, с учетом коэффициента спроса 0,8, принятого согласно СП 256.1325800.2016;
- Автоматические выключатели (УЗО) в количестве 21 шт., которые размещены в распределительном щите ABB;
- Электропроводка предусмотрена открытым способом - в кабель-каналах;
- Общая протяженность электропроводки 800 метров;
- Резервное электропитание дома предусмотрено на базе однофазного инвертора CyberPower CPS 1000 PRO с АКБ.
Цена проекта электрики – 16 965 руб. со скидкой 10%. Объем проекта электрики – 14 листов.
Подробное описание выполненного проекта электрики дома в СНТ "Беляйка".

Заказать проект электрики частного дома дистанционно.
26 сентября 2024 года
- Информация о материале
- Просмотров: 4089














