Выполненные проекты
Проект отопления дома из бруса 130 м.кв.
Объект: одноэтажный частный дом из бруса, площадью 130 м.кв., расположенный в СНТ "Беляйка" Истринского района Московской области
Вариант отопления: «Комфортный»
Цена проекта отопления: 32 247 руб. со скидкой 10%, проект котельной - бесплатно.
Проект котельной и отопления выполнен: 25.09.2024
Состав проекта котельной, отопления и теплого пола дома в СНТ "Беляйка":
1. Пояснительная записка проекта, общие данные по системе отопления дома 130 м.кв. в СНТ "Беляйка".
2. Тепломеханическая схема котельной с размещением оборудования в отдельном помещении дома из бруса.
3. Комплект поэтажных чертежей радиаторного отопления дома в СНТ "Беляйка".
4. Комплект чертежей теплого пола на площади 92 м.кв.
5. Типовые схемы системы отопления, канализации и водоснабжения дома 130 м.кв.
6. Теплотехнический расчет отопления дома из бруса.
7. Спецификация материалов и оборудования по котельной и отоплению дома в СНТ "Беляйка".
Объем проекта отопления дома в СНТ "Беляйка": 33 листа.
Описание проекта отопления, котельной и теплого пола частного дома 130 м.кв. в СНТ "Беляйка".
Котельная частного дома в СНТ "Беляйка"(проект котельной бесплатно).
o Размещена в отдельном помещении дома 130 м.кв.;
o Теплогенератор - настенный газовый котел BAXI ECO-4S, мощностью 24 кВт;
o Контуры теплоснабжения котельной – радиаторное отопление дома, теплый пол и горячее водоснабжение, для которого предусмотрен накопительный бойлер Royal Thermo, объемом 150 литров (подключение к коллектору);
o Расширительные баки отопления и бойлера Flamco, объемом 18 литров каждый;
o Дымоудаление принудительное, дымоход коаксиальный, диаметр 60/100 мм, размещение - через стену;
o Распределительный коллектор - STOUT с насосными группами;
o Автоматика котельной – контроллер ZONT Climatic 1.2 со встроенным GSM-модулем.
Отопление дома в СНТ "Беляйка" (проект отопления дома).
o Выполнен теплотехнический расчет отопления дома из бруса (утеплитель кровли - базальтовая вата 200мм) с учетом теплопотерь через ограждающие конструкции при наружной температуре -26°С для Московской области (по СП 131.13330.2012), расчетный расход тепла на отопление дома составил 10,67 кВт, удельные теплопотери 105,6 Вт/м.кв.;
o Подобраны приборы для отопления дома: секционные трубчатые радиаторы RIFAR Tubog с нижним подключением, в вентильном исполнении;
o Схема радиаторного отопления дома двухтрубная, коллекторно-лучевая, с принудительной циркуляцией теплоносителя и температурным графиком 80/60°С;
o Трубы отопления из металлопластика Valtec;
o Теплоизоляция трубопроводов отопления Valtec, толщиной 6мм;
o Теплоноситель в системе радиаторного отопления дома – подготовленная вода, предусмотрены средства защиты от образования накипи.
Водяной теплый пол дома в СНТ "Беляйка"(проект теплого пола).
o Водяной теплый пол в доме предусмотрен на площади 92 м.кв., коллектор теплого пола Valtec на 10 отводов;
o Предусмотрен отдельный контур котельной для теплоснабжения водяного теплого пола дома;
o Трубопроводы теплого пола – сшитый полиэтилен Valtec;
o Регулирование температуры теплого пола - общее, регулятором на смесительной группе.
Внутренний водопровод дома в СНТ "Беляйка" (проект водоснабжения).
o Схема внутреннего водоснабжения дома – коллекторно-лучевая с рециркуляцией горячей воды через полотенцесушители, выполнен расчет 14-ти точек водоснабжения и полотенцесушителей;
o Трубопроводы системы водоснабжения – из металлопластика Valtec;
o Теплоизоляция трубопроводов Valtec, толщиной 6мм.
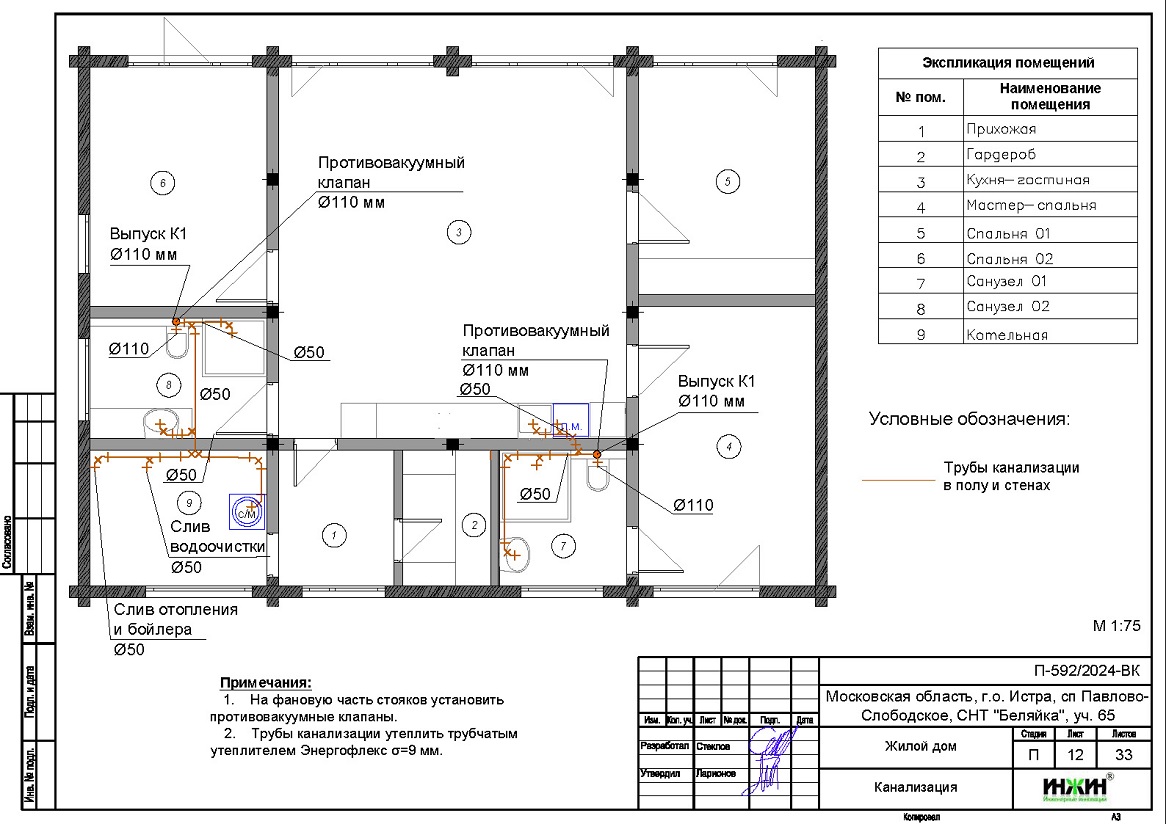
Внутренняя канализация (проект канализации) дома в СНТ "Беляйка".
o Безнапорная, отвод стоков от санитарно-технических приборов предусмотрен в септик;
o Произведен расчет 10-ти точек бытовой канализации;
o Канализационные трубы Синикон, раструбные, из полипропилена.
Заказать в нашей компании проект отопления, водоснабжения и канализации загородного дома дистанционно со скидкой.
Для этого дома в СНТ "Беляйка" выполнен проект электрики.



















