Новости компании
Разработан проект электрики для дома 258 м.кв.
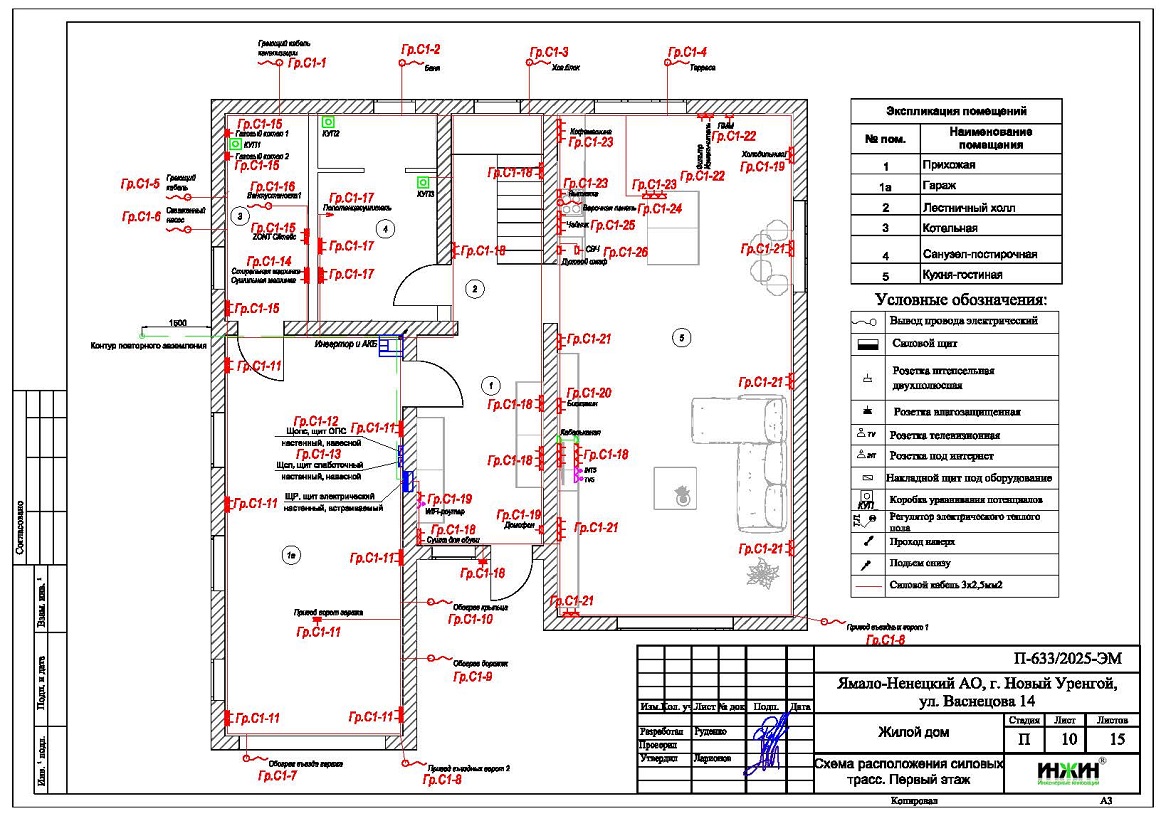
Разработан проект электрики (электропроводки) для газобетонного дома площадью 258м.кв., расположенного в г. Новый Уренгой Ямало-Ненецкого АОсодержит следующие технические решения:
- Выполнен расчет схемы электроснабжения, электрическая мощность дома составила 14,57 кВт, с учетом коэффициента спроса 0,3 принятого согласно СП 256.1325800.2016;
- Автоматические выключатели (УЗО) в количестве 42 шт., которые размещены в одном распределительном щите ABB;
- Электропроводка предусмотрена скрытым способом на стенах и стяжке пола;
- Общая протяженность электропроводки 1450 метров, слаботочных линий - 200 метров.
Цена проекта электрики – 33 669руб. со скидкой 10%, объем проекта – 15 листов.
Подробное описание выполненного проекта электрики дома в г. Новый Уренгой.
Заказать проект электрики частного дома в Новом Уренгое дистанционно.
17 июня 2025 года
- Информация о материале
- Просмотров: 4617
Поделиться :















