Новости компании
Выполнен проект отопления дома 138 м.кв. в г.о. Щёлково
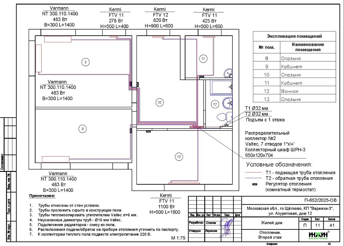
Для загородного дома со стенами из газоблоков (утеплитель кровли и стен -минвата 100мм и 75мм, соответственно), площадью 138 м.кв., расположенного в КП "Варежки-3", Щёлковского района Московской области, разработаны проекты отопления и водоснабжения.
В проекте отопления и водоснабжения, по заданию Заказчика, предусмотрены следующие основные технические решения:
- Вариант отопления «Комфортный+», с системой водяного теплого пола и контроллером дистанционного управления ZONT Climatic 1.2;
- Индивидуальная котельная с настенным газовым котлом Arderia d24, мощностью 24 кВт (в наличии);
- Контуры теплоснабжения дома – 3 шт. (радиаторное отопление дома, теплый пол и горячее водоснабжение);
- Выполнен расчет отопления, расход тепла на отопление составил - 12,48 кВт, удельные теплопотери 98,7 Вт/м.кв.;
- Отопление и водоснабжение дома в КП "Варежки-3" Московской области предусмотрены по коллекторно-лучевой схеме, с трубопроводами из сшитого полиэтилена Valtec;
- Приборы для системы отопления дома - стальные панельные радиаторы Kermi с нижним подключением, а также встроенные в пол конвекторы Varmann c естественной конвекцией;
- Водяной теплый пол проектом предусмотрен на площади 120 м.кв., 13 петель;
- Выполнен расчёт 24-х точек водоснабжения и 11-ти точек бытовой канализации.
Стоимость проекта отопления дома в КП "Варежки-3" - 35 984 руб. со скидкой 10%, проект котельной бесплатно, объем проекта 41 лист.

11 июня 2025 года
- Информация о материале
- Просмотров: 4405














