Новости компании
Выполнен проект отопления дома 166 м.кв. (газоблок)
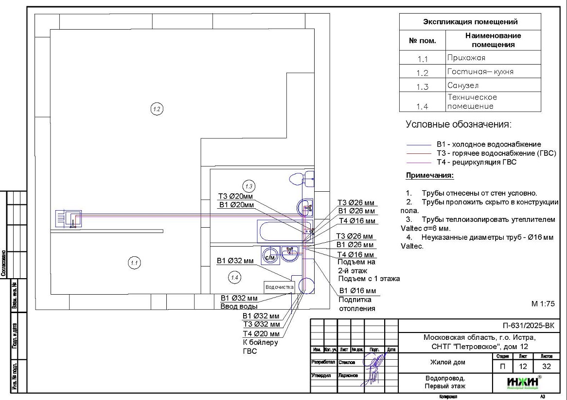
Для загородного дома со стенами из газоблоков (утеплитель стен и кровли дома - каменная вата 100 и 400мм, соответственно), площадью 166 м.кв., расположенного в СНТГ "Петровское" Московской области, разработаны проекты отопления и водоснабжения.
В проекте отопления и водоснабжения, по заданию Заказчика, предусмотрены следующие основные технические решения:
- Вариант отопления «Комфортный», с системой водяного теплого пола;
- Индивидуальная котельная с двумя котлами - настенным газовым Baxi ECOLife, мощностью 24 кВт (основной) и настенным электрическим Baxi Ampera, мощностью 9 кВт (резервный);
- Контуры теплоснабжения дома – 3 шт. (радиаторное отопление дома, теплый пол и горячее водоснабжение);
- Выполнен расчет отопления, расход тепла на отопление составил - 8,47 кВт, удельные теплопотери 59,1 Вт/м.кв.;
- Отопление и водоснабжение дома в СНТГ "Петровское" Московской области предусмотрены по коллекторно-лучевой схеме, с трубопроводами из сшитого полиэтилена Valtec;
- Приборы для системы отопления дома - стальные панельные радиаторы Kermi с нижним подключением;
- Водяной теплый пол проектом предусмотрен на площади 80 м.кв., 7 петель.
Стоимость проекта отопления дома в СНТГ "Петровское" - 28 768 руб. со скидкой 10%, проект котельной бесплатно, объем проекта 32 листа.

23 июня 2025 года
- Информация о материале
- Просмотров: 4365














