Выполненные проекты
Электрика газобетонного дома в Новом Уренгое, проект
Объект: газобетонный дом общей площадью 258 м.кв., расположенный в г. Новый Уренгой Ямало-Ненецкого АО.
Цена (стоимость) проекта электрики (электропроводки): 33 669 руб. со скидкой 10%, проект слаботочных кабельных линий - бесплатно.
Проект электрики выполнен: 16.06.2025
Состав проекта электрики дома в Новом Уренгое:
1. Пояснительная записка. Общие данные по электроснабжению и освещению частного дома в Новом Уренгое.
2. Однолинейные схемы вводного распределительного устройства и электрического распределительного щита дома 258 м.кв.
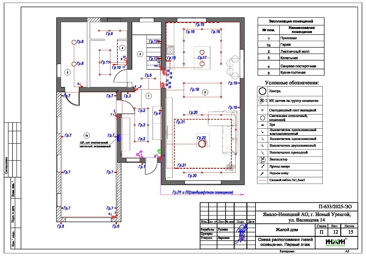
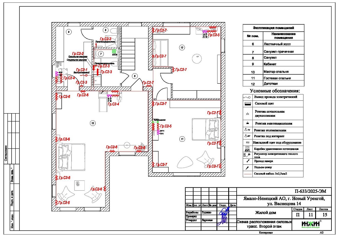
3. Чертежи электропроводки дома в Новом Уренгое.
4. Чертежи групповых осветительных сетей дома в Новом Уренгое.
5. Спецификация материалов и оборудования по электрике и электропроводке дома в Новом Уренгое.
Объем проекта электрики дома 258 м.кв.: 15 листов.
Проект электрики дома площадью 258м.кв. в Новом Уренгое- подробное описание.
Расчетные показатели по электроснабжению и освещению дома в Новом Уренгое.
o Расчетная электрическая мощность дома составила 14,57 кВт, с учетом коэффициента спроса 0,3, принятого согласно СП 256.1325800.2016;
o При расчете учтено силовое оборудование: электроплита, септик, газовый котел, скважинный насос, кондиционеры, обогрев крыльца и дорожек.
Распределительные электрические щиты дома площадью 258 м.кв.
o Проектом предусмотрен один распределительный электрический щит, расположенный в прихожей;
o Автоматические выключатели, дифференциальные автоматы, рубильники и УЗО в щите – ABB, в количестве 42 шт. размещены во встраиваемом корпусе.
Силовая кабельная сеть (электропроводка) дома в Новом Уренгое.
o Электропроводка дома предусмотрена с использованием кабелей ВВГ нг -LS с медными жилами в ПВХ-оболочке (не поддерживает горение);
o Общая протяженность линий электроснабжения и освещения – 1450 метров, вводная кабельная линия - бронированный кабель 145 метров;
o Электропроводка предусмотрена скрытым способом, в конструкции пола и стен помещений;
o Запроектировано 217 точек подключения розеток и выключателей освещения в доме;
o Предусмотрены слаботочные линии телевидения ЛВС, общая протяженность - 200 метров.
Система резервного электропитания предусмотрена с бензиновым генератором (по выбору Заказчика).
Для этого дома в Новом Уренгое выполнен проект отопления.



















