Новости компании
Выполнен проект отопления бани 220 м.кв.
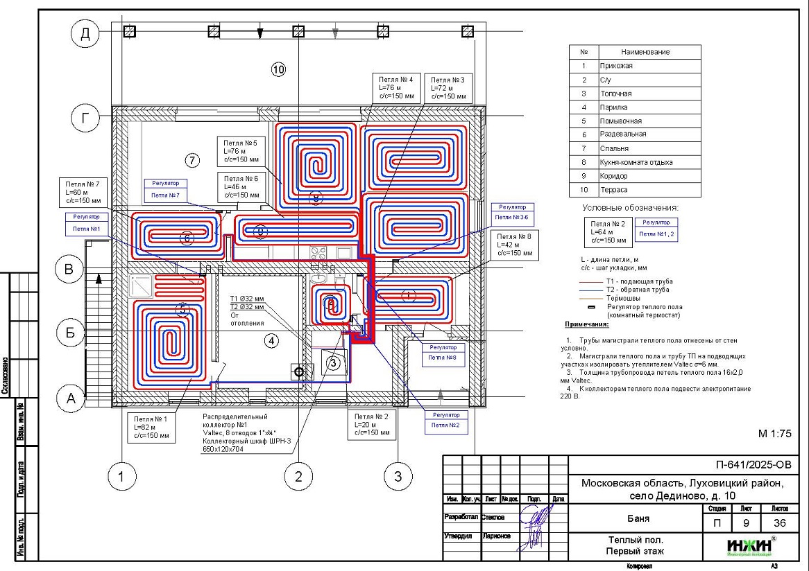
Для частной бани со стенами из газоблоков (утеплитель кровли - минеральная вата 150мм), площадью 220 м.кв., расположенной в с. ДединовоМосковской области, разработаны проекты отопления и водоснабжения.
В проекте отопления и водоснабжения, по заданию Заказчика, предусмотрены следующие основные технические решения:
- Вариант отопления «Комфортный», с системой водяного теплого пола;
- Индивидуальная котельная размещена в основном доме, предусмотрена её модернизация - добавлен контур теплоснабжения бани, автоматика котельной (контроллер ZONT Climatic 1.3) дополнена блоком расширения EX-77;
- Выполнен расчет отопления, расход тепла на отопление составил - 19,4 кВт, удельные теплопотери 92,2 Вт/м.кв.;
- Отопление и водоснабжение бани в с. Дединово Московской области предусмотрены по коллекторно-лучевой схеме, с трубопроводами из сшитого полиэтилена Valtec;
- Приборы для системы отопления дома - стальные панельные радиаторы Kermi с нижним подключением;
- Водяной теплый пол проектом предусмотрен на площади 63 м.кв., 8 петель;
- Выполнен расчёт 14-и точек водоснабжения и 8-и точек бытовой канализации.
Стоимость проекта отопления бани в с. Дединово - 47 898 руб. со скидкой 10%, проект котельной бесплатно, объем проекта 36 листов.

05 августа 2025 года
- Информация о материале
- Просмотров: 4937














