Новости компании
Разработан проект отопления для дома 236 м.кв.
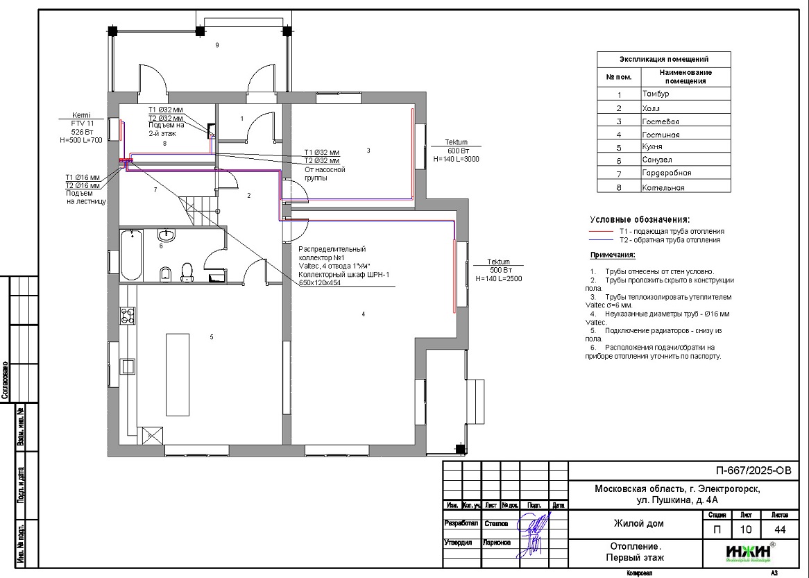
Для загородного дома со стенами из газобетона (утеплитель кровли - минвата 200 мм), площадью 236 м.кв., расположенного в г. Электрогорск Московской области, выполнены проекты отопления и водоснабжения.
В проекте отопления и водоснабжения, по заданию Заказчика, предусмотрены следующие основные технические решения:
- Вариант отопления «Комфортный+», с системой управления котельной ZONT Climatic 1.2 со встроенным GSM-модулем для удаленного управления при помощи мобильного приложения;
- Индивидуальная котельная с настенным газовым котлом BAXI Eco Nova, мощностью 24 кВт;
- Контуры теплоснабжения дома – 3 шт. (радиаторное отопление дома, теплый поли горячее водоснабжение);
- Выполнен расчет отопления, расход тепла на отопление составил - 16,98 кВт, удельные теплопотери 70,7 Вт/м.кв.;
- Отопление и водоснабжение дома в г. Электрогорскпредусмотрены по коллекторно-лучевой схеме, с трубопроводами из сшитого полиэтиленаValtec;
- Приборы для системы отопления дома - стальные панельные радиаторы Kermi с нижним подключением, а также водный тёплый плинтус Mr. Tektum;
- Водяной теплый пол проектом предусмотрен на площади 131 м.кв., 14 петель;
- Водоснабжение предусмотрено с рециркуляцией горячей воды через проходные водорозетки, выполнен расчет 34-х точек внутреннего водопровода и 14-ти точек бытовой канализации.
Стоимость проекта отопления и водоснабжения дома в г. Электрогорск- 55 948 руб. со скидкой 10%, проект котельной бесплатно, объем проекта 44 листа.

28 апреля 2026 года
- Информация о материале
- Просмотров: 11














